Как превратить маленькую кухню в хрущевке в уютное пространство
- Как превратить маленькую кухню в хрущевке в уютное пространство
- Связанные вопросы и ответы
- Какие планировочные решения лучше всего подходят для малогабаритных кухонь в хрущевках
- Как выбрать подходящие материалы для ремонта кухни в хрущевке
- Какие особенности демонтажа стен в хрущевке при ремонте кухни
- Какие современные стили дизайна кухни подходят для хрущевки
- Как увеличить полезное пространство на кухне в хрущевке
- Какие бюджетные варианты ремонта кухни в хрущевке существуют
- Сколько времени занимает ремонт кухни в хрущевке
Как превратить маленькую кухню в хрущевке в уютное пространство
Для кухни в хрущевке есть несколько вариантов гарнитуров, главное – правильно и четко просчитывать все размеры, чтобы не оставалось бесполезных или нефункциональных отступов и щелей. Помни о рациональности!
Линейный кухонный гарнитур
Линейная однорядная планировка вписывается в любую площадь кухни. Если в квартире живет несколько человек, обрати внимание именно на нее. Гарнитур устанавливается строго вдоль одной стены. Сюда не удастся вписать большое количество техники, и лучше выбирать максимально встраиваемые решения.
Рабочая поверхность будет немного меньше, но зато места на самой кухне остается больше. Это нужно, чтобы члены семьи могли нормально разминуться в комнате. Обеденная зона – напротив гарнитура. Но если места слишком мало, можешь вынести ее в гостиную.

Угловой гарнитур
Г-образная планировка кухни подойдет для хрущевок, в которых живет один человек или пара. Здесь можно выгодно задействовать угол помещения. Обычно это линия вдоль стены с окном и смежная с ней. В углу можно удобно расположить мойку. А под ней – вместительный шкаф.
Также такая планировка позволяет легче вписать нужную технику. Останется место для работы посуды, микроволновки. Угловые гарнитуры оптимальны для квадратных кухонь. В прямоугольных из-за них остается слишком мало места, а использовать его неудобно.


П-образный гарнитур
Такие кухонные гарнитуры слишком массивны, поэтому редко используются в хрущевках. Но если тебе не нужна отдельная обеденная зона или ты предпочитаешь формат барной стойки с табуретом, подумай над таким вариантом.

Обеденная зона для кухни в хрущевке
Если тебе нужен отдельный стол со стульями, не пожалей времени на поиск подходящих моделей. Интересный вариант – раскладные или столы, которые подвешиваются на стену. Когда столешницы не нужна, ее можно просто поднять либо опустить.
Избегай крупногабаритной мебели. В частности – массивной деревянной, свойственной классическим интерьерам, она требует больше пространства.
Стулья выбирай так же: максимально легкие и компактные. Хорошо смотрится тонкое светлое дерево, бамбук, прочный пластик, стальные конструкции. Интересный вариант – стулья, которые можно складывать один в один.


Связанные вопросы и ответы:
Вопрос 1: Какие особенности планировки хрущевки нужно учитывать при ремонте кухни
При ремонте кухни в хрущевке важно учитывать, что такие квартиры имеют небольшую площадь, обычно около 6-8 квадратных метров. Это требует тщательного планирования пространства для максимального удобства. Также стоит обратить внимание на расположение окон, дверей и коммуникаций, так как их перемещение может быть сложным и дорогостоящим. Еще одним моментом является высота потолков, которая в хрущевках обычно ниже, чем в современных квартирах, что влияет на выбор осветительных приборов и дизайна. Учитывая все эти факторы, можно создать функциональное и комфортное пространство.
Вопрос 2: Какие современные дизайны подходят для кухни в хрущевке
Для кухни в хрущевке идеально подходят современные дизайны, которые акцентируют внимание на функциональности и минимализме. Стиль "модерн" или "хай-тек" с гладкими фасадами и современными материалами будет выглядеть современно и не загружать пространство. Также популярностью пользуются дизайны в скандинавском стиле, которые сочетают простоту и эстетическую привлекательность. Использование светлых тонов и зеркальных поверхностей поможет визуально увеличить пространство. Кроме того, можно добавить акценты в виде яркой мебели или декора, чтобы сделать кухню более индивидуальной.
Вопрос 3: Как выбрать материалы для ремонта кухни в хрущевке
Выбор материалов для ремонта кухни в хрущевке должен быть основан на их прочности, функциональности и эстетической привлекательности. Для стен можно использовать влагостойкие обои или краску, а для пола – качественную плитку, которая легко моется и выдерживает нагрузки. Фасады шкафов и столешницы лучше выбирать из материалов, устойчивых к влаге и высоким температурам, таких как ламинат или кварц. Также важно обратить внимание на энергосберегающие варианты освещения, такие как светодиодные лампы, которые экономят электроэнергию и имеют долгий срок службы. Все материалы должны быть экологичными и соответствовать современным стандартам безопасности.
Вопрос 4: Как увеличить функциональность кухни в хрущевке
Увеличить функциональность кухни в хрущевке можно с помощью рационального использования пространства. Установка встроенной бытовой техники, такой как холодильник, плита и посудомоечная машина, поможет сэкономить место. Использование навесных шкафов и полок позволяет максимально использовать вертикальное пространство. Также можно установить трансформируемую мебель, например, откидной стол или выдвижные ящики, которые делают кухню более удобной. Еще одним полезным решением является организация зоны хранения, например, с помощью корзин или контейнеров, которые помогут поддерживать порядок.
Вопрос 5: Как обновить сантехнику и электрику на кухне в хрущевке
Обновление сантехники и электрики на кухне в хрущевке требует тщательного планирования и профессионального подхода. Сначала необходимо оценить состояние существующих коммуникаций и определить, что можно модернизировать, а что требует полной замены. Установка современных смесителей, раковин и труб поможет избежать протечек и повысить комфорт. В электрике важно увеличить количество розеток и установить современные автоматические выключатели, чтобы обеспечить безопасность и удобство. Также стоит рассмотреть возможность установки системы водоочистки или фильтрации воды. Все работы должны выполняться квалифицированными специалистами, чтобы избежать неприятностей в будущем.
Вопрос 6: Какие современные технологии можно использовать для кухни в хрущевке
В наше время есть множество современных технологий, которые можно использовать для кухни в хрущевке, чтобы сделать ее более удобной и современной. Умные бытовые приборы, такие как холодильники с функцией управления через смартфон или кофеварки с автоматическим приготовлением кофе, могут значительно упростить жизнь. Также можно установить системы умного дома, которые позволяют управлять освещением, температурой и другими параметрами кухни дистанционно. Использование энергосберегающих технологий, таких как светодиодное освещение и термостаты, поможет снизить расходы на электроэнергию. Кроме того, современные системы вентиляции и вытяжки могут улучшить качество воздуха на кухне.
Вопрос 7: Как спланировать бюджет для ремонта кухни в хрущевке
Планирование бюджета для ремонта кухни в хрущевке требует тщательного расчета всех расходов. Сначала необходимо определить, какие работы и материалы потребуются, и составить подробный список сметы. Важно учитывать не только стоимость материалов, но и оплату труда специалистов, если вы не планируете делать ремонт своими руками. Также стоит предусмотреть резервный фонд на непредвиденные расходы, которые могут возникнуть в процессе ремонта. Для экономии средств можно выбрать более доступные материалы или выполнять часть работ самостоятельно. В целом, бюджет на ремонт кухни в хрущевке может варьироваться от 50 000 до 200 000 рублей и более, в зависимости от масштаба работ и выбора материалов.
Вопрос 8: Какие ошибки нужно избегать при ремонте кухни в хрущевке
При ремонте кухни в хрущевке важно избегать распространенных ошибок, которые могут привести к дополнительным расходам и недовольству результатом. Одна из главных ошибок – это отсутствие четкого плана и сметы, что может привести к перерасходу средств и времени. Также не стоит экономить на качестве материалов и работ, так как это может повлиять на долговечность ремонта. Еще одной ошибкой является игнорирование коммуникаций, таких как электрика и сантехника, которые могут требовать модернизации. Нельзя забывать о функциональности и удобстве, поэтому важно тщательно продумать планировку и расположение всех элементов кухни. Наконец, не стоит пренебрегать помощью профессионалов, если вы не уверены в своих силах.
Какие планировочные решения лучше всего подходят для малогабаритных кухонь в хрущевках
Вы располагаете чётким планом будущей кухни и, значит, знаете, хотя бы примерно, какую купить. Маленькое пространство диктует расстановку мебели по правилам эргономики.
Есть несколько способов:
- Линейный – все шкафы и тумбы расставляются вдоль одной стены. Тогда возле другой остаётся место для обеденной зоны. Хороший вариант для маленькой кухни.
- Угловой . Позволяет задействовать место в углу, где можно расположить мойку.
- Параллельный – если кухня квадратная, то можно расположить мебель по двум противоположным стенам. Место для стола останется у окна.
- П-образная. Увеличивает количество мест для хранения, а вот обеденную зону в этом случае придётся перенести в гостиную. Для малогабаритной кухни в хрущёвке не самый удачный вариант.
При расстановке мебели помним о функциональности: распашные дверцы должны свободно открываться, ящики выдвигаться, для экономии места откажитесь от ручек. Где возможно, используйте рольставни или раздвижные двери. Мебель для небольшой кухни имеет свои особенности.
Оптимальная расстановка мебели на кухне в хрущевке
Правильной расстановкой мебели задача решается процентов на 70%. Кухня стала удобной и функциональной. Сделать её уютной помогут несколько удачных идей дизайна кухни.
Соблюдаем несколько правил:
- Светлые тона визуально увеличивают пространство – отдаём им предпочтение. Оформляя кухню в светлых пастельных тонах, мы наполняем её воздухом и лёгкостью.
- Используем только 2 цвета. Излишняя пестрота не слишком хороша и в больших помещениях, а для небольшой кухни – абсолютное табу.
- Используйте больше глянцевых поверхностей: они тоже работают на увеличение площади.
- Избегайте узоров и всяких декоративных излишеств – это не тот случай.
- Как можно меньше предметов оставляйте на поверхности.
- Используйте всё пространство: пеналы и навесные шкафы – до самого потолка.
- Если вы очень хотите оставить на кухне какие-то яркие акценты, то делайте это очень осторожно. Допустим, например, яркий фартук или яркая.
Не подойдут для такой кухни ни тяжёлые шторы, ни тёмные фасады гарнитура, ни громоздкая мебель. Дверь на кухне также ворует пространство, лучше от неё избавиться.

Как выбрать подходящие материалы для ремонта кухни в хрущевке
Ваш репост изменит интернет :)
Ремонт кухни в хрущевке – задача непростая. И основная причина тому – очень маленькая площадь. Как на 5-6 кв.м сделать функциональное и удобное рабочее пространство и расскажем в этой статье.

- представить, как в реальности будет выглядеть интерьер после ремонта;
- поэкспериментировать с расстановкой мебели и конфигурацией кухонного гарнитура;
- прикинуть разные варианты отделочных материалов и определиться с цветовой гаммой.
С чего начать?
Ремонт можно назвать успешно завершенным, если вы довольны результатом и уложились в бюджет. Чтобы стало возможно и то, и другое необходим четкий план. Посмотрим, какие основные этапы необходимо пройти до того, как начать ремонт.
1. Выбираем стиль
Наиболее удачными для маленькой кухни в хрущевке можно считать– минимализм, скандинавский стиль, эко, хай-тек, лофт с элементами сканди.

Преимущественно светлая цветовая гамма, сдержанность, технологичность будут служить только во благо небольшой площади.


с ее массивностью и торжественностью, как бы вы ни хотели, вряд можно представить в интерьере хрущевской кухни. Но можно найти компромисс – гармонично разбавить классику современными элементами.


О кухнях в стиле современной классики читайте в нашем отдельном материале –.
Возможно оформить маленькуюили кантри. Правда и здесь стоит соблюдать некоторые рекомендации: умеренность в аксессуарах и в использовании текстиля. Например, вместо многослойных и пышных занавесок на окнах можно выбрать более лаконичные римские шторы, простые хлопковые гардины, одиночный ламбрекен или шторы-кафе.


2. Рисуем дизайн-проект
Чтобы сделать дизайн проект с 3D-визуализацией, не обязательно прибегать к услугам профессиональных дизайнеров. Сделать это можно самостоятельно с домашнего компьютера в бесплатных онлайн-программах.
Простой бесплатный онлайн-конструктор с подробный инструкцией есть на нашем сайте –.
Готовый дизайн проект поможет вам:

3. Определяемся с отделочными материалами
Так как кухонное пространство небольшое, и расстояние от рабочей зоны до окружающих предметов минимальное, то стоит отдать предпочтение практичным отделочным вариантам – износостойким в условиях повышенной влажности, перепада температур и частой загрязняемости. Для отделки стен лучше использовать моющиеся обои или матовую краску. Для отделки пола подойдет керамическая плитка, керамогранит, линолеум илиПВХ.


Не стоит делать подвесные потолки в маленькой кухне. Они сильно скрадывают высоту потолков, а в хрущевках она и без того ниже стандарта.

Самый быстрый, бюджетный и беспроигрышный вариант отделки потолка – белый матовый.

В выборе отделочных материалов действуют общие правила для всех кухонь. О том, чем лучше отделать фартук, читайте в нашем отдельном материале –.
4. Выбираем производителя гарнитура
Наилучший вариант кухонного гарнитура для хрущевски – изготовленный на заказ. Готовые и модульные гарнитуры с типовыми размерами шкафов редко бывают функциональными, но выигрывают в стоимости.

Единственная проблема покупки мебели по индивидуальному проекту – долгое ожидание изготовления и надежность производителей и продавцов. Избежать ошибок при заказе и проектировании кухни вам поможет эта статья –.
Красивый и бюджетный ремонт в хрущевке с самой недорогой кухней ИКЕА в следующем
5. Определяем смету
От того, какой бюджет заложен на ремонт, зависит многое: выбор отделочных материалов, мебели, планировка. Стоит иметь в виду, что затраты также зависят и от выбранного стиля. Интерьер с классическими элементами будет стоить дороже, чем дизайн в скандинавском стиле или в стиле лофт.
Какие особенности демонтажа стен в хрущевке при ремонте кухни
Самым главным недостатком современных хрущевок является, пожалуй, их возраст и обуславливающие экономию материалов во время строительства «проблемные» зоны, которые и следует устранить во время капитального ремонта. Так, устранению подлежит:
Прежняя планировка. Решить вопрос неудобства и тесноты поможет перепланировка всего жилья, включающая в себя снос стен и перегородок, на замену которым придут визуально зонирующие пространство декоративные элементы декора. Имейте ввиду, что снос отдельных стен и перегородок требует одобрения жилищной инспекции, потому перед началом ремонтных работ лучше осведомиться о существующих нюансах;
Устаревшие канализация, водопровод и электропроводка, которые по прошествии стольких лет пришли в негодность, из-за чего в квартирах постоянно прорывает трубы и выбивает пробки. Решением проблемы станет замена всех труб, сифонов, смесителей, электропроводки и сантехники;
Тонкие стены, следствием чего становятся пронизывающий холод зимой, невыносимая жара летом и вынужденная необходимость постоянно слышать своих соседей. Решить данную проблему поможет шумоизоляция стен, пола и потолка + замена окон и дверей;
Еще одной особенностью хрущевок является неприятный затхлый шлейф, сопровождающий жильцов на протяжении всего времянахождении в доме, причиной которого становится разросшийся за много лет грибок и плесень. Устранить проблему поможет капитальный ремонт хрущевки, включающий в себя полный демонтаж пола, стен и потолка, новая стяжка, установка вентиляции, декоративная отделка пола, стен и потолка.
Какие современные стили дизайна кухни подходят для хрущевки
С того момента как наши сограждане, проживающие в хрущевках и не имеющие возможности переехать в квартиру с кухней большей площади, задумались о возможности расширения пространства, прошло уже много лет. За это время дизайнеры интерьеров разработали тысячи возможных вариантов обустройства малогабаритных кухонь с целью оптимизации и увеличения площади и некоторые их наработки мы представим ниже.

Как разместить кухонную мебель в маленьких помещении в хрущевке
Обеденный стол можно переместить из кухни в гостиную, либо установить на лоджии. Тем самым освободится дополнительное пространство для организации рабочей зоны. Можно соорудить откидной либо выдвигающийся стол, который убирается, когда в нем отпадает необходимость.

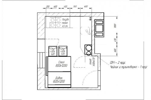
Традиционно мойка, плита и холодильник располагаются в виде треугольника, такое размещение является оптимальным для перемещений по кухне.

Мебель лучше планировать встроенную или модульную, выполненную на заказ по вашему эскизному проекту. Навесные шкафчики выбирают размерами под самый потолок. Кухонный гарнитур, который состоит из множества компактных шкафчиков, будет казаться больше, чем на самом деле. Хорошо, если дверцы будут со стеклянными или зеркальными вставками. Оригинально смотрится мебель, украшенная панорамными стеклянными картинами.

Рекомендуется меблировка с рольставнями вместо распахивающихся дверок. При открывании рольставни сматываются в короб, совершенно не занимая места.

Удобные рольставни вместо распашных дверок
Не пригодны для малогабаритных кухонь массивные ручки на дверцах гарнитура, которые мешают и то и дело цепляются за одежду. Лучше решение – фурнитура заподлицо с поверхностью дверцы.

Хорошо в маленьких кухнях использовать различные вращающиеся секции.

Желательно максимально задействовать все углы и пространство под подоконником. Если заменить подоконник столешницей, то получится рабочее или обеденное место. Вообще, окно и подоконник и пространство под ним — это обширная тема, позволяющая реализовать массу идей, способствующих оптимизации пространства на кухне, поэтому предлагаем вам ознакомиться со следующей статьей, после прочтения этой.
Как увеличить полезное пространство на кухне в хрущевке

Ремонт в хрущевке, а тем более – перепланировка, мероприятие затратное, требующее тщательной проработки всех нюансов. Из-за небольшой площади дизайнерам приходится ограничивать себя во всем – от выбора материалов для отделки до цвета мебели и декора. В скромное пространство нужно вместить кухонный гарнитур, бытовую технику, оставив место для обеденной зоны и передвижения.
Важно: Никогда не начинайте работу, не имея детального плана и плохо представляя, что должно быть по итогу.
Начинаем ремонт
Если вы задумали капитальный ремонт, воспользуйтесь пошаговым алгоритмом.
- Определите, понадобится ли перепланировка помещения, какие стены / перегородки нужно убрать, а какие – возвести, останутся ли на месте дверные проемы, какова будет их конфигурация.

- Ответьте на вопросы по отделочным материалам для пола, потолка, стен (плитка, линолеум, обои под покраску, натяжные потолки и т.д.).

- Оцените размеры будущего кухонного гарнитура. На этом же этапе следует продумать примерное наполнение тумб, ящиков, шкафов, механизмы открывания.

- Подберите оптимальное расположение крупной бытовой техники.

- Продумайте варианты освещения и выберите наиболее подходящий с точки зрения стиля и удобства.

- Разработайте схему расстановки мебели для обеденной зоны (если она остается в кухне).

- Определите места для электрических розеток (пусть лучше их будет больше, чем потом не хватит).

Если эти пункты не выполнить в самом начале ремонта, то в последующем вас ждут постоянные переделки, увеличение сроков ремонта, изменение сметы (конечно, не в меньшую сторону), необходимость искать компромисс между тем, что «хочется» и тем, что «получается». В результате: вместо радости от обретения «кухни мечты» — раздражение, испорченные нервы, а то и долги из-за непомерно увеличившихся расходов.
Особенности проектирования кухни в хрущевке
У дизайнеров есть принцип проектирования кухонь – правило рабочего треугольника. Оно гласит, что путь между тремя элементами кухни – холодильником, мойкой и плитой – должен быть кратчайшим и максимально удобным. В идеале эти три важнейшие точки должны соединяться в треугольник с равными сторонами.

Если есть возможность, лучше убрать стену между кухней и прилегающей к ней комнатой. Но в большинстве хрущевок установлены газовые плиты (кое-где – и газовые колонки), а в таких случаях запрещено демонтировать перегородку между кухней и комнатой. Можно поменять газовую плиту на электрическую. Но это весьма трудозатратно, да и электрические сети домов, построенных более полувека назад, не рассчитаны на мощности современных бытовых приборов. Выходом из ситуации может стать отделение кухни от комнаты раздвижной перегородкой. Такую перепланировку можно согласовать, но только если в квартире две и более комнаты.
Нельзя спроектировать кухню без окна – в ней обязательно должен быть источник естественного света. Запрещается оборудовать кухню над жилым помещением. Но если под вашей квартирой находится коммерческая недвижимость (магазин, кафе, офис и т.п.), этот запрет не действует.

Есть много деталей, которые нужно обязательно учитывать при разработке проекта. Особенно это касается газифицированных помещений, так как в отношении нарушителей закона в этой части применяются самые жесткие меры: от штрафов до полного отключения квартиры от газоснабжения.
Какие бюджетные варианты ремонта кухни в хрущевке существуют
В Санкт-Петербурге насчитывается более 5200 домов, которые называются «хрущёвками». Это первые дома советской постройки, которые начали возводить по типовым проектам.
Хрущёвки пользуются стабильной популярностью, особенно среди рациональных и прагматичных людей, которые не гонятся за внешним лоском новостроек. Для них большее значение имеет минимальная стоимость квадратного метра, а также наличие развитой инфраструктуры, включающей в себя детские сады и школы, парковые зоны, развитую сеть общественного транспорта и близость к станциям метрополитена.
Помимо этого, в хрущёвках нет огромного количества соседей, ведь на лестничной клетке располагается всего 4 квартиры, а этажность зданий – до 5 этажей. Это разительно отличает хрущёвки от современных 25-этажных «человейников». В то же время, владельцам хрущёвок приходится мириться с небольшими по площади кухнями, микроскопическими санузлами и низкими потолками. Подавляющее большинство собственников осуществляет перепланировки, чтобы максимально расширить помещения в своей квартире.
Наиболее популярными перепланировками в хрущёвках являются: объединение кухни и комнаты, расширение санузла за счёт площади коридора, объединение комнаты с прихожей. К сожалению, не все понимают, что является перепланировкой и насколько ответственно к этому надо подходить.
Надо помнить! Самовольная перепланировка - нарушение закона!
Итак, перепланировка – это комплекс мероприятий по проведению ремонтно-строительных работ в результате которых меняется исходная планировка квартиры, отражённая в сведениях Единого государственного реестра недвижимости или выписке ЕГРН. А в случае, если планировка квартиры не совпадает с планом квартиры в выписке ЕГРН, то такая планировка нарушает законодательство РФ и называется самовольной.
Сколько времени занимает ремонт кухни в хрущевке
Для маленькой кухни-хрущевки подходят следующие варианты планировки кухонной мебели:
1. Линейная планировка, она же однорядная
Прямая кухня-хрущевка подходит для небольших площадей, так как предполагает размещение техники и шкафов вдоль одной из стен. Подходит для семьи из нескольких человек.
Многие устройства не подходят для такой планировки, поэтому здесь лучше выбрать встроенный вариант. В идеале дизайн кухни в хрущевке с холодильником – предполагает, что всё должно быть выстроено в линию, но это не всегда возможно.
С противоположной стороны можно разместить обеденную зону, если места достаточно. В противном случае переместите его в гостиную.

Фото из источника: inmyroom.ru
2. Угловая кухня в хрущевке
В данном случае мебель и технику обычно располагают вдоль стены с окном и прилегающей к ней стеной. Такой вариант позволяет удачно использовать углы комнаты.
Обычно под раковиной располагается прямой или наклонный геометрический шкафчик. Угловое расположение удобно для домовладельцев, так как сокращает ненужные перемещения по кухне. Он также хорошо работает на квадратных кухнях.
Фото из источника: inmyroom.ru
О столешницах угловых кухонь в хрущёвках: какую выбрать?
В угловых гарнитурах будут очень уместны столешницы от фабрики «Кедр» с угловым соединением под углом 90º - так называемый, еврозапил. Что это такое? Одна столешница запиливается вглубь, а другая с торца, под один профиль. С нижней стороны столешницы проделываются углубления для расположения специальных стяжек. При этом спилы обрабатываются герметиком или клеем, цвет которого соответствует лицевой поверхности, после чего столешницы стягиваются друг с другом. Шов получается практически невидимым.
Идеальный выбор декора столешницы для кухни в хрущёвке – светлый и минималистичный. Огромное разнообразие декоров представлено в каталоге столешниц фабрики «Кедр»!
3. П-образный кухонный гарнитур для маленькой кухни в хрущевке – не лучшее решение для планировки, так как она занимает три смежные стены. Поэтому кухня будет тесной, и даже обеденный стол не поместится.
