Дизайн двухкомнатной хрущевки: идеи для перепланировки и без
- Дизайн двухкомнатной хрущевки: идеи для перепланировки и без
- Связанные вопросы и ответы
- Какие ключевые различия между дизайном двухкомнатной хрущевки с перепланировкой и без
- Как можно максимально эффективно использовать пространство в небольшой двухкомнатной квартире
- Какие самые популярные стили дизайна для хрущевок
- Какие основные сложности возникают при перепланировке двухкомнатной хрущевки
- Как визуально увеличить небольшое помещение без перепланировки
- 1. Экономим место в шкафу: тонкие вешалки
- 2. Используйте стены как место для хранения
- 3. Храните мелочи в корзинах
- 4. Сиденье + хранение
- 5. Журнальный столик с местом для хранения
- 6. Используйте внутренние поверхности дверей шкафов и шкафчиков
- 7. Используйте вращающиеся подставки
- 8. Установите вторую штангу
- Какой бюджет необходимо планировать на полную перепланировку двухкомнатной квартиры
- Какие лучшие способы разделить пространство в двухкомнатной квартире
Дизайн двухкомнатной хрущевки: идеи для перепланировки и без
Большим преимуществом «хрущёвской» квартиры считается то, что её легко перепланировать: «переместить» стены или объединить комнаты для создания большего пространства. Хотя бы визуально. Внутренние стены или перегородки в «хрущёвке» не являются несущими, значит, их можно убрать и изменить пространство комнаты по согласованию с государственными органами.
Перепланировка «хрущёвки» начинается не только с желания собственника её переделать, но и с получения разрешения на эту процедуру от государства. Получить его легко при условии, что жилые комнаты и кухня останутся на своих местах, изменится только расположение самих стен. После того как государство даст добро на изменение конфигурации пространства, можно начинать.
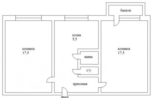
Вариант №1
Во всех «хрущёвках» маленькие кухни и санузлы. Одно из решений, которое может подарить перепланировка, это увеличение площади кухни. Собственники часто убирают стену между кухней и соседней комнатой (обычно она является проходной) и создают современные кухни-гостиные.
Классическая «хрущёвская» кухня 5 кв. м становится просторной гостиной с зоной для готовки общей площадью до 23 квадратов, если проходную комнату полностью отдать под зал.
Такую квартиру можно назвать евро- «однушкой»: жилье с изолированной полноценной спальней и просторной кухней-гостиной. Получившаяся «однушка» привлекательна тем, что становится просторнее – пропадает «лишняя» стена, освобождается дополнительное пространство под мебель.
Вариант №2
Скромную «двушку» можно превратить в полноценную студию, если полностью убрать внутренние перегородки. За исключением санузла – ванной и туалета, эти две комнаты нуждаются в изоляции.
Современную студию можно зонировать – разделить на функциональные зоны с помощью перегородок или косметического ремонта. Собственники часто используют эти две комбинации: создают искусственные тонкие стенки между спальной зоной и зоной отдыха – гостиной. Они «играют» оттенком стен и материалом пола: в коридоре и на кухне кладут плитку, в гостиной и спальне – ламинат. Этот прием не только делит пространство, но и зрительно расширяет его.
Связанные вопросы и ответы:
Вопрос 1: Какие основные принципы дизайна двухкомнатной хрущевки с перепланировкой
Основные принципы дизайна двухкомнатной хрущевки с перепланировкой включают оптимизацию пространства, функциональность и эстетическую привлекательность. Перепланировка позволяет объединить комнаты, создавая более просторные помещения, или разделить пространство на зоны. Важно учитывать освещение, выбор материалов и цветовую гамму, чтобы создать уютную и современную обстановку. Также стоит обратить внимание на сохранение полезной площади и удобство перемещения. Перепланировка может включать демонтаж стен, установку дверей и создание новых перегородок.
Вопрос 2: Какие преимущества и недостатки перепланировки в двухкомнатной хрущевке
Преимущества перепланировки в двухкомнатной хрущевке включают увеличение полезной площади, улучшение функциональности помещений и возможность создания современного дизайна. Однако перепланировка требует значительных вложений времени и денег, а также может сопровождаться сложностями с разрешениями и строительными работами. Кроме того, перепланировка может повлиять на несущие стены, что требует дополнительного внимания и консультаций с специалистами. Недостатки также включают возможное уменьшение количества комнат, что может повлиять на стоимость недвижимости.
Вопрос 3: Какие стили дизайна подходят для двухкомнатной хрущевки
Для двухкомнатной хрущевки подходят различные стили дизайна, такие как современный минимализм, скандинавский стиль, лофт и классический стиль. Минимализм подходит для небольших помещений, так как создает ощущение простора и легкости. Скандинавский стиль предполагает использование натуральных материалов и светлых цветов, что делает пространство уютным и теплым. Лофт-стиль подходит для тех, кто любит открытые пространства и индустриальный дизайн. Классический стиль же создает атмосферу комфорта и традиционного убранства.
Вопрос 4: Как можно улучшить функциональность двухкомнатной хрущевки без перепланировки
Без перепланировки можно улучшить функциональность двухкомнатной хрущевки, используя мебель-transformer, зеркала и правильное освещение. Мебель-transformer позволяет экономить пространство и создавать дополнительные функциональные зоны. Зеркала помогают визуально увеличить пространство и добавить света. Также важно рационально использовать каждый уголок, например, устанавливать встроенные шкафы и полки. Правильное освещение, такое как точечные светильники или гирлянды, может создать уютную атмосферу и выделить необходимые зоны.
Вопрос 5: Какие современные материалы можно использовать для дизайна двухкомнатной хрущевки
Для дизайна двухкомнатной хрущевки можно использовать современные материалы, такие как гипсокартон, МДФ, Ламинат и стеклянные конструкции. Гипсокартон позволяет создавать сложные формы и перегородки, а также скрывать коммуникации. МДФ подходит для изготовления мебели и декоративных элементов. Ламинат – прочный и красивый материал для напольного покрытия, который имитирует натуральное дерево. Стеклянные конструкции, такие как двери и перегородки, добавляют легкости и современности интерьеру.
Вопрос 6: Как можно организовать освещение в двухкомнатной хрущевке
Освещение в двухкомнатной хрущевке можно организовать, используя комбинацию верхнего, напольного и настольного освещения. Верхнее освещение обеспечивает общий свет, а напольные и настольные светильники позволяют создать акценты и зонировать пространство. Также можно использовать светодиодные ленты для дополнительного освещения ниш и углов. Естественное освещение важно сохранить, поэтому шторы и жалюзи должны быть легкими и не загружать пространство. Включение освещения по зонам помогает создать уютную и функциональную обстановку.
Вопрос 7: Какие цветовые решения подходят для двухкомнатной хрущевки
Для двухкомнатной хрущевки подходят светлые и нейтральные цветовые решения, которые визуально увеличивают пространство. Белый, серый, бежевый и мягкий синий – это классические варианты, которые создают ощущение чистоты и простора. Можно добавить акценты в виде ярких цветов или текстурных узоров на стенах или мебели. Также важно учитывать цвет мебели и текстиля, чтобы они гармонировали с общей цветовой гаммой. Светлые цвета на стенах и темные на полу создают баланс и делают комнату более уютной.
Вопрос 8: Как можно зонировать пространство в двухкомнатной хрущевке для семьи
В двухкомнатной хрущевке для семьи можно зонировать пространство, используя перегородки, шторы и мебель. В одной комнате можно обустроить гостиную с зоной для отдыха и телевизором, а в другой – спальню или детскую комнату. Перегородки из гипсокартона или стеклянные двери помогают разделить пространство, сохраняя при этом ощущение простора. Шторы и занавески можно использовать для разделения зон внутри одной комнаты. Также важно учитывать функциональность каждой зоны и удобство перемещения между ними.
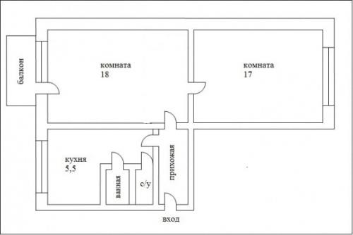
Какие ключевые различия между дизайном двухкомнатной хрущевки с перепланировкой и без
Нельзя начать ремонт двухкомнатной квартиры хрущевки без понимания ее особенностей.
Кухня с небольшим метражом (5–6 метров).
Низкие потолки.
Одна из комнат – проходная.
Санузел и ванна совмещенные, при этом у комнаты небольшой метраж, который не позволяет смонтировать стандартную ванную.
Если отдельная кладовка.
Если квартира расположена не на первом этаже – есть балкон или лоджия.
Еще две грустные особенности «хрущевок» – очень малый метраж прихожей и плохая шумоизоляция. Впрочем, практически все недостатки квартиры можно нивелировать современным ремонтом.

Скажем еще пару слов об особенностях планировок в домах разных серий, а потом дадим рекомендации по улучшению ситуации.
Метражи и особенности планировки двухкомнатных хрущевок
Встречаются разные варианты планировок:
«Книжки». Квартиры этой планировки имеют площадь в 42–43 м2. Их главная особенность – кухня, спальня и гостиная идут друг за другом. Проходная комната должна выполнять роль столовой. Если семья больше двух человек, придется в ней же спать, что очень неудобно. Жирный минус такой планировки – проходная комната останется проходной, как бы и что вы ни запланировали. Самый распространенный вариант изменения в такой комнате – снос перегородок между кухней и столовой (комната превращается в уверенную студию).

«Трамваи» (они же «Павровозики») – квартиры с метражом в 47 метров. В такой планировке две спальные комнаты располагаются смежно. При этом одна из них угловая, а вторая – проходная. Чаще всего при такой планировке «отрезается» часть проходной комнаты, достраивается стена и создается своеобразный коридор (в котором дополнительно размещают системы хранения вещей).

«Бабочки» (они же «Распашонки») – квартиры с метражом в 46 м2. Сразу за прихожей размещается кухня и санузел, комнаты располагаются по бокам. Достаточно удобный вариант, главный минус – санузел находится практически на кухне.

Неважно, какая именно планировка у вашей квартиры – с помощью продуманного ремонта ее можно превратить в дом вашей мечты.
Комплексный ремонт квартир под ключ
Всё включено
В стоимость ремонта входит всё: работы, материалы, документы.
Без вашего участия
После согласования проекта мы беспокоим хозяев только при сдаче ремонта.
Цена известна заранее
Стоимость ремонта фиксируется в договоре.
Фиксированный срок ремонта
Ремонт квартиры под ключ за 3,5 месяца. Срок закреплен в договоре.
Как можно максимально эффективно использовать пространство в небольшой двухкомнатной квартире
Когда мы понимаем, сколько выходит ремонт в новостройке двухкомнатной квартиры, делаем следующий шаг – планирование. Эффективный план ремонта включает несколько этапов, которые помогут избежать лишних затрат и затягиваний сроков. Следуйте этой пошаговой инструкции:
- Шаг 1: Определение целей и бюджета. Прежде всего, необходимо определить, какие задачи вы хотите решить с помощью ремонта, и сколько планируете потратить. Создайте список приоритетов.
- Шаг 2: Подбор и закупка материалов. Исследуйте рынок, сравните цены на материалы. Не забывайте учитывать возможные скидки и акционные предложения.
- Шаг 3: Найм специалистов. Используйте проверенные сайты или рекомендуйте знакомых. Обязательно проверьте отзывы и портфолио работ.
- Шаг 4: Составление графика работ. Создайте временные рамки для каждого этапа ремонта. Это поможет контролировать работу и избежать затягиваний.
- Шаг 5: Контроль процесса. Регулярно проверяйте работу подрядчиков, обращайте внимание на качество материалов. Не стесняйтесь задавать вопросы.
Придерживаясь этого плана, вы сведете к минимуму риск неожиданных задержек и перерасходов, контроль над которыми становится действительно сложным процессом в условиях ремонта.
кейсы из реальной жизни
для лучшего понимания процесса ремонта рассмотрим несколько кейсов, которые могут помочь вам увидеть различные подходы к ремонту.- Кейс 1: Молодая семья решила сделать косметический ремонт в своей двухкомнатной квартире. Бюджет составил 600,000 рублей. Благодаря тщательному планированию и выбору недорогих, но качественных материалов, а также независимой бригадой рабочих, они уложились в срок.
- Кейс 2: Олеся и Максим начали ремонт с полной перепланировкой квартиры. Это увеличило бюджет до 1,200,000 рублей. Однако благодаря правильному выбору дизайнерских решений и хорошей команде подрядчиков, они не только получили желаемый результат, но и повысили стоимость своей квартиры.
- Кейс 3: Один из наших клиентов столкнулся с несколькими скрытыми проблемами, такими как плохая электрика и грязный водопровод, что увеличило общие затраты до 1,500,000 рублей – но решение этих проблем окупилось в долгосрочной перспективе.
Какие самые популярные стили дизайна для хрущевок
Небольшие двухкомнатные квартиры не могут похвастаться изобилием пространства и света. Для них характерны небольшие окна, невысокие потолки, тесные помещения. Негативное впечатление вполне можно исправить с помощью профессиональных дизайнерских приемов:
Для стен выбирают светлые, пастельные оттенки
Если комната выходит окнами на север, предпочтительны нежные, теплые тона – золотистый, персиковый, агава, розоватый, бежевый, кремовый. Для южной стороны подойдут холодные оттенки – снежно-белый, инеисто-голубой, зеленоватый, серебристо-серый, жемчужный.
Разнообразить светлую гамму помогут яркие акценты – оранжевый, желтый, синий, зеленый, черный, фиолетовый;
Потолок
Чтобы «поднять» потолок, его делают чисто-белым, без вычурного декора, массивных люстр. Лучше предпочесть небольшие светильники, невесомо-ажурные конструкции, встроенные источники света;
Пол
Пол можно оформить в теплой, коричнево-золотистой древесной гамме. Отлично смотрится натуральный паркет, паркетная доска или.
Для кухни лучше выбрать кафельную плитку с нескользящей поверхностью. Цвет может быть любым – темным или светлым, многоцветным. Отлично добавляют объем контрастные геометрические узоры.
Дизайнеры рекомендуют использовать одно напольное покрытие для всей квартиры, за исключением «мокрых зон», участка возле входной двери. Единое, ровное пространство без переходов и порогов объединяет всю квартиру, визуально ее увеличивает.
Выбирая расцветку для отделочных материалов, мебельных гарнитуров, домашнего текстиля, необходимо помнить: цвета сильно влияют на психологическое состояние людей. Слишком яркие будут раздражать, провоцировать агрессию.
А тусклые, мрачные краски вгонять в депрессию. Поэтому важна золотая середина: несколько приятных глазу и душе акцентов на нейтральном фоне.
Какие основные сложности возникают при перепланировке двухкомнатной хрущевки
Двухкомнатная квартира – самый востребованный вариант. По сравнению с ней однокомнатная квартира – недостаточно просторная для семейных людей, а трёхкомнатная – довольно дорогая. Несмотря на то что старый жилфонд («сталинки», «хрущёвки», «брежневки») довольно потрёпан, в перспективе реновации жилья он пользуется у покупателей немалым спросом.
Основные правила перепланировки
Проект переделки двухкомнатной квартиры должен отвечать некоторым обязательным требованиям.
- Нельзя трогать несущие стены. Выясните, в каком месте они проходят через квартиру, если они есть внутри площади. Если же они проходят лишь по её периметру, перепланировка может быть любой.
- Не используйте в качестве материала кирпич, обилие листового и профильного железа, железобетон. Такие конструкции очень тяжелы – даже стена в полкирпича толщиной имеет вес до нескольких тонн. Это, в свою очередь, дополнительное воздействие на межэтажные перекрытия, которые могут начать трескаться и прогибаться под лишним весом – что в итоге чревато обрушением.
- Согласуйте любую перепланировку с жилконторой и сопутствующими инстанциями. Дело в том, что каждая квартира обладает техпаспортом, в котором планировка стен между комнатами и квадратура уже уточнены. «Переделка тайком» вскроется при продаже этой же квартиры – не вы, так ваши дети, внуки продадут, а отвечать по закону им. Штраф за несанкционированную перепланировку внушителен и составляет не один десяток тысяч рублей.
- Не используйте центральное отопление для организации тёплого пола.
- Не размещайте кухню в одноуровневом доме (почти все дома являются таковыми) над жилой комнатой соседа снизу.
- Не переносите санузел в зону, размещающуюся над кухней или жилыми комнатами.
- Не переносите радиаторы отопления на балкон или лоджию.
- Естественный свет должен проникать во все жилые комнаты.
- Если на кухне имеется газовая плита – предусмотрите кухонную дверь.
- Не закрывайте ничем доступ к счётчикам, сантехнике, вентиляции, водопроводу.
- Вход в санузел должен быть из коридора, а не из кухни.
Как визуально увеличить небольшое помещение без перепланировки
Когда места в жилище немного , на счету каждый квадратный метр! Эти идеи помогут вам организовать хранение в небольшой комнате или квартире.
В небольшой квартире или маленькой комнате нередко возникают проблемы с местами для хранения. Советы и лайфхаки из этой подборки помогут вам оптимально организовать хранение и использовать с пользой каждый метр пространства.
Подборкаждёт вас по ссылке.
1. Экономим место в шкафу: тонкие вешалки
Если в гардеробе маловато места для одежды, попробуйте сменить вешалки на тонкие. Лучше, чтобы это были не проволочные «плечики», которые деформируются сами и могут вытягивать одежду, а более прочные, например, как на фото, при этом не занимающие лишнего места.
2. Используйте стены как место для хранения
Вертикальные поверхности и в первую очередь стены — отличный способ оптимизировать хранение. Конечно, хранение на открытых стенах придётся как следует продумать, чтобы результат был не только удобным, но и выглядел эстетично.
Идеи по — в подборке по ссылке.
3. Храните мелочи в корзинах
Интерьерные корзины — незаменимые приспособления для хранения разнообразных мелочей, которые могут создавать визуальный шум в помещении.
4. Сиденье + хранение
Пуфы, диваны и другие предметы мебели с отделениями для хранения — отличное решение для небольших помещений.
12 гениальных идей для — в подборке по ссылке.
5. Журнальный столик с местом для хранения
Журнальный столик тоже может послужить местом для хранения разных вещей, от книг и журналов до пледов и подушек.
6. Используйте внутренние поверхности дверей шкафов и шкафчиков
Если конструкция шкафов и шкафчиков это позволяет, постарайтесь задействовать для хранения их дверцы с внутренней стороны.
— в подборке по ссылке.
7. Используйте вращающиеся подставки
Круглые вращающиеся подставки удобны для хранения припасов на кухне. Также подобные приспособления могут помочь в хранении бытовой химии, косметики и так далее.
8. Установите вторую штангу
В небольшой шкаф можно установить вторую штангу, нижним уровнем над верхней. Понятно, что, например, длинные пальто тут уже хранить будет неудобно, но для рубашек или других плечевых изделий такое хранение подойдёт.
— вечная проблема! Идеи из подборки по ссылке помогут вам в её решении.
Какой бюджет необходимо планировать на полную перепланировку двухкомнатной квартиры
Совмещение кухни и гостиной в хрущевке – шаг, на который вынуждены идти многие владельцы малогабаритных квартир. Вам кажется, что хрущевка и хороший дизайн – несовместимые понятия? Позвольте вас разубедить на конкретном и очень удачном примере: по просьбе хозяйки маленькой квартиры дизайнер Ирина Лаврентьева создала планировку, в которую вписалась и кухня, совмещенная с гостиной, и даже изолированная спальня. Не забыли и про выразительный дизайн: и кухня, и пространство гостиной в хрущевке пронизаны оптимизмом и полны ярких деталей.
Две комнаты вместо одной? Легко, если за дело берется профессионал. Правда, чтобы выбрать окончательный вариант планировки, автору дизайн-проекта пришлось предложить девять чертежей на выбор. Совмещенную кухню и гостиную в хрущевке удалось разместить в помещении с двумя окнами благодаря тому, что в квартире демонтировали ненесущую перегородку. Кроме зала, на 29 кв. м поместилась и изолированная спальная комната, а еще – два вместительных шкафа для хозяйки, которая увлекается модой.
На фото: кухня, объединенная с гостиной
Планируя совмещение кухни и комнаты в маленькой хрущевке, важно рассчитать площадь помещений и ширину проходов вплоть до сантиметра – в том числе учесть, что вам придется заносить мебель, а затем пользоваться шкафами и комодами – их дверцы должны свободно открываться. Дизайнер Ирина Лаврентьева проследила за расчетами при дизайне хрущевки – впрочем, хозяйка квартиры и сама принимала в работе активное участие. Например, купила зеленый комод, который теперь украшает кухню-гостиную: отталкиваясь от палитры предмета, квартиру решено было сделать многоцветной.
Какие лучшие способы разделить пространство в двухкомнатной квартире
Есть двухкомнатная квартира с двумя собственниками, доли 57 и 43(моя) т.е. равноправные.
В бОльшей комнате уже 3 года проживает собственница с мужем, вторая(меньшая по площади) комната принадлежит мне, но 3 года кроме как «склад» она не использовалась. В ней никто не проживал.
За это время второй собственник:
А) Перерезал провода моего счетчика
Б) Выкинул мою мебель с кухни
В) Загородил своим шкафом вход в мою комнату
Г) Сделал во всей квартире, кроме моей комнаты, ремонт без согласования со мной.
Переговоры о продаже/покупке долей друг у друга зашли в тупик, было принято решение начать активно пользоваться общим имуществом в рамках закона с целью поддтолкнуть второго собственника к выгодному мне решению.
Комнаты, хоть и поделены между нами по факту, на бумаге не выделены, в выписке из ЕГРН просто доли в процентах(дробях)
Я прочитал, что существует такое понятие, как «сложившийся порядок пользования общим имуществом» и «порядок пользования общим имуществом»
Отсюда вопросы:
1. Правомерно ли то, что каждый выбрал себе комнату и имею ли я право находится в «её» комнате и наоборот?
2. Что такое «порядок пользования», какие его разновидности, все нюансы, какой закон, как установить и т.п.
Планирую использовать это как повод для иска.
3. Если я подарю(для этого всё уже готово) долю, то может ли новый владелец начать отношения со вторым собственником с нуля, игнорируя сложившийся за 3 года порядок дел и требовать совершенно нового порядка пользования имуществом?