Трансформация пространства: дизайн интерьера для двухкомнатной хрущевки
Трансформация пространства: дизайн интерьера для двухкомнатной хрущевки
Двухкомнатные хрущевки — классическая городская квартира, которая была построена в середине XX века. Несмотря на свои компактные размеры, такие помещения имеют огромный потенциал для преображения. С помощью правильно подобранного дизайна интерьера можно не только визуально увеличить пространство, но и создать уютную, функциональную и современную обстановку для жизни.
Особенности планировки хрущевки
Перед началом работы над дизайном интерьера важно учитывать особенности планировки хрущевки. Обычно такие квартиры имеют:
- Узкие коридоры и небольшие комнаты;
- Ограниченное количество естественного света;
- Толстые стены, которые занимают значительную часть пространства;
- Небольшую кухню и санузел.
Эти особенности требуют тщательного подхода к планировке и выбору дизайна.
Основные принципы дизайна интерьера для хрущевки
1. Минимализм и функциональность
Одним из ключевых принципов дизайна для небольших помещений является минимализм. Избегайте громоздкой мебели и лишних декоративных элементов. Каждый предмет должен выполнять свою функцию и не загромождать пространство.
2. Использование света
Естественный и искусственный свет играют важную роль в визуальном увеличении пространства. Используйте легкие ткани для штор, установите дополнительные источники света и избегайте темных цветов на стенах.
3. Зонирование пространства
В небольших комнатах важно разделить пространство на функциональные зоны. Например, в гостиной можно выделить зону для отдыха и зону для работы.
Цветовая гамма для интерьера
Цветовая схема играет ключевую роль в создании ощущения простора. Для хрущевки идеально подходят светлые и нейтральные тона. Вот примеры цветовых комбинаций:
| Цвет | Описание |
|---|---|
| Белый | Визуально увеличивает пространство, создает ощущение чистоты. |
| Серый | Нейтральный и современный цвет, который хорошо сочетается с другими оттенками. |
| Бежевый | Теплый и уютный цвет, который создает комфортную атмосферу. |
Освещение в интерьере
Освещение — один из важных элементов дизайна, который может кардинально изменить восприятие пространства. Для хрущевки рекомендуется использовать:
- Настольные лампы с направленным светом;
- Напоточные светильники;
- Светодиодные ленты для дополнительного освещения.
Зонирование пространства
Зонирование помогает разделить небольшое пространство на функциональные зоны, что делает интерьер более удобным и комфортным. Вот примеры зонирования:
- Использование штор или перегородок для разделения комнаты на зоны;
- Установка полок или стеллажей для разделения пространства;
- Использование ковров для выделения отдельных зон.
Выбор мебели
Мебель должна быть компактной, функциональной и современной. Вот несколько рекомендаций:
- Выбирайте мебель с минимальными габаритами;
- Используйте трансформеры, которые экономят пространство;
- Предпочитайте мебель с открытыми полками и прозрачными поверхностями.
Современные тенденции в дизайне интерьера
Современный дизайн интерьера для хрущевки может включать следующие тенденции:
- Использование натуральных материалов;
- Добавление зелени в интерьер;
- Использование абстрактного искусства и современных декоративных элементов.
Следуя этим рекомендациям, вы сможете создать уютный, функциональный и современный интерьер для своей двухкомнатной хрущевки.
Связанные вопросы и ответы:
Вопрос 1: Какие планировочные решения лучше всего подходят для двухкомнатной хрущевки
Для двухкомнатной хрущевки оптимальными планировочными решениями являются те, которые максимально эффективно используют доступное пространство. Можно рассмотреть объединение кухни и гостиной в единое пространство, что создаст ощущение простора. Также важно использовать трансформирующую мебель, такую как складные столы или диваны с отсеком для хранения. Еще одним полезным решением является создание зоны для работы или отдыха в спальне, что позволит разделить функциональные зоны. Не забудьте про использование вертикального пространства с помощью полок и шкафов, что поможет избежать загромождения комнаты.
Вопрос 2: Как выбрать цветовую гамму для интерьера двухкомнатной хрущевки
Выбор цветовой гаммы для интерьера двухкомнатной хрущевки должен быть направлен на создание ощущения простора и легкости. Отдавайте предпочтение светлым тонам, таким как белый, серый или бежевый, которые визуально увеличивают пространство. Акценты можно сделать с помощью ярких цветов, например, синего или зеленого, чтобы добавить индивидуальности. Также важно учитывать естественное освещение: если комната получает мало света, лучше использовать более светлые оттенки. Не забывайте про нейтральные цвета для стен, которые создадут спокойную атмосферу и позволят легко менять стиль интерьера.
Вопрос 3: Какая мебель лучше всего подходит для двухкомнатной хрущевки
Для двухкомнатной хрущевки важно выбирать компактную и функциональную мебель, которая не загромождает пространство. Отдавайте предпочтение встроенным шкафам и полкам, которые помогут сохранить порядок и освободить место. В гостиной можно использовать угловой диван, который экономит пространство и создает уютную зону для отдыха. В спальне же лучше выбрать кровать с отсеком для хранения или компактный шкаф-купе. Также важно учитывать размеры мебели: они должны быть пропорциональны площади комнаты, чтобы избежать ощущения тесноты.
Вопрос 4: Как правильно организовать освещение в двухкомнатной хрущевке
Освещение играет важную роль в интерьере двухкомнатной хрущевки, так как правильно организованный свет может сделать комнаты светлее и просторнее. Основное освещение должно быть мягким и равномерным, для этого можно использовать потолочные люстры или встроенные светильники. Дополнительное освещение, такое как напольные лампы или бра, поможет создать уютные зоны для чтения или отдыха. Также важно использовать естественное освещение: сделайте занавески легкими и воздушными, чтобы не загораживать свет. Не забывайте про возможность использования светодиодных лент для дополнительного освещения углов или ниш.
Вопрос 5: Как зонировать пространство в общей комнате двухкомнатной хрущевки
Зонирование пространства в общей комнате двухкомнатной хрущевки позволяет разделить функциональные зоны, такие как гостиная и спальня. Одним из простых и эффективных способов является использование штор или перегородок из легких материалов, таких как ткань или стекло. Также можно использовать мебель, например, высокую полку или шкаф, чтобы отделить спальную зону от гостиной. Еще одним вариантом является создание визуального разделения с помощью цветовых акцентов или напольных покрытий. Не забывайте про освещение: разные уровни света могут помочь выделить отдельные зоны.
Вопрос 6: Какие современные стили дизайна подходят для интерьера двухкомнатной хрущевки
Для интерьера двухкомнатной хрущевки можно использовать разные современные стили дизайна, которые помогут создать уютную и функциональную обстановку. Скандинавский стиль с его минимализмом и светлыми оттенками идеально подходит для небольших пространств. Также можно рассмотреть стиль минимализма, который предполагает использование простых форм и отсутствие лишних деталей. Еще одним популярным вариантом является лофт, который предполагает использование открытых пространств и промышленных элементов. Также можно добавить элементы модерна или арт-деко, чтобы создать более индивидуальный интерьер.
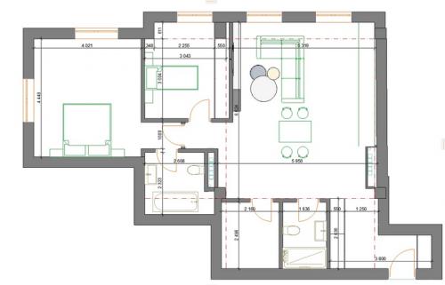
Как максимально эффективно использовать пространство в небольшой двухкомнатной квартире
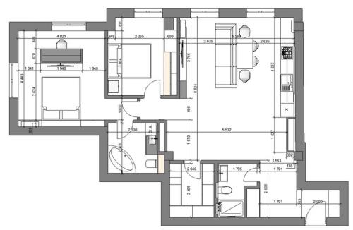
В этой угловой квартире владельцам пришлось решать непростую задачу: выделить две комфортабельные спальни, расширить крохотную кухню и организовать рабочее место для главы семьи. И они великолепно справились с задачей!
- Большой зал поделили на две изолированные спальни с отдельными окнами. Чтобы сберечь пространство, от габаритных шкафов и комодов отказались в пользу узкого встроенного шкафа с системой нажимного открывания дверок, под потолок, занимающего полностью стену у изголовья кровати.
Стены оштукатурены и покрашены. Белый цвет с вкраплениями живых древесных оттенков делает комнатки больше, чем они есть на самом деле.также покрашены в белый цвет.
- Демонтировали перегородку между маленькой комнаткой и кухней, образовав комфортную кухню-гостиную. В ней же был оборудован рабочий кабинет. Для оформления этого помещения выбраны белые и светло-голубые тона, а также золотистый ламинат «под дерево» для акцентной стены.
Несколько ярких акцентов – горчичного цвета стойки, полосатые радужные шторы, плитка с геометрическим узором, оживляют интерьер.
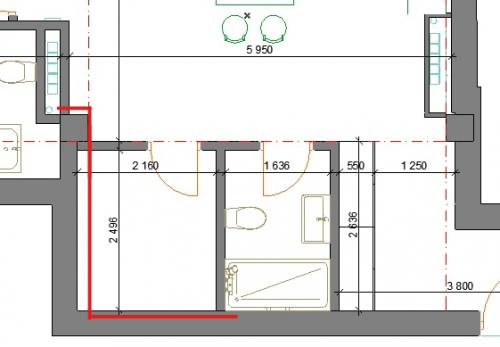
- Чтобы узкий туалет выглядел чуть гармоничнее, в нижней части для отделки использовали плитку под кирпич. От середины до потолка были поклеены обои с объемным, бросающимся в глаза, принтом.
Скандинавский стиль, одновременно строгий и удобный, как нельзя лучше подходит для небольших квартир. Светлые тона, обилие натуральных материалов и немногочисленная мебель создают ощущение простора даже в «хрущевке».
Какие цветовые схемы помогут визуально увеличить площадь комнат
Всем привет! Никто об этом не просил, но все давно этого хотели:) Это то, с чего начинается всё - план . В нашем случае планировка жилого интерьера. Я продолжаю открывать шторку в комнату интерьерного проектирования, и показываю какие процессы происходят на кухне архитектурного дизайна.
На самом деле интерьер начинается с опросного листа, потом замера и только потом с планировки. Опросный лист и замер, как считаю довольно специфические темы, и навряд ли будут интересны людям не посвящённым, поэтому начинаем сразу с горячего.
У нас с вами на руках опросный лист со всеми пожеланиями и требованиями и обмерная модель. Приступаем к планировке. Хочу сразу добавить, нет идеального решения для каждого. Сколько людей столько и мнений. Вот к сожалению мне так и не удалось привести планировку к какому-то единому модулю, который был бы удобен всем. Ниже я буду добавлять поэтапные планы и к ним же буду давать пояснения, чтоб вы могли проследить как развивается проект. Так же проект ниже не претендует на идеальный вариант планировке, он отлично иллюстрирует процесс разработки. Итак, начнём.
Обмерная модель (красные штрихпунктирные линия, это одно из ребер ригеля) 93 м2

Сразу к обмерной модели, мы получаем примерный список требования из опросника
Санузел с ванной
Санузел
Спальня родительская
Спальня детская или кабинет
Кухня - Зал (можно отдельно)
(Комната хранения, она же прачечная. Не решили на этапе техзадание будет ли две отдельные комнаты, так как казалось что не хватит места, п.с. места хватило с головой)
Из техники которая требует монтажа, это два кондиционера и двухконтурный водонагревательный котёл (он встроился в кухню, в углу)
Особые пожелания, большая ванна, прямая либо полукруглая.
То есть у нас есть чёткие граница и примерно техзадание того, что нам нужно уместить.
Так же всегда держим в голове основные правила эргономики. Проходы не меньше 1000 мм. Так же помним, что без прямого солнечного света, могут быть только технические помещения.
Кухня и санузлы определяются сразу, они на прямой линии от шахты, всё что нам нужно это лаконично их вписать. Начинаем из требований выше искать нужную планировку:
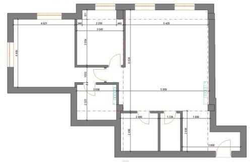
Вариант 1

Делаем в первом варианте общую большую комнату, которая будет кухней и залом одновременно. Так же намечаем все остальные комнаты. Сразу нужно учесть толщину стен. В случае этой планировки был, кирпич и кладка была в пол кирпича. Людям далёким от всего строительного, ниже фото для наглядности.

Почему кирпич? Потому что заказчик захотел, Кирпич хорош тем, что на него можно повесить практически всё и везде.
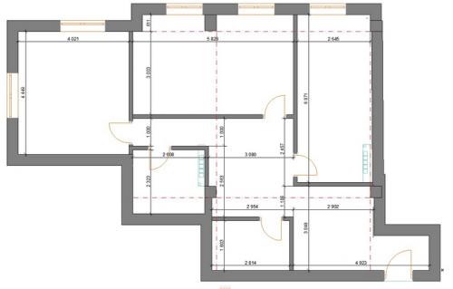
Вариант 2

Пытаясь разделить комнаты, получается не очень удачный план и на его фоне понимаем что так делать не нужно. В процессе поиска хорошего функционального интерьера, мы понимаем как же всё не удобно, стену можно упереть только в стену между двумя окнами. Еще есть открытые углы в квартире которые надо обыгрывать
Начинаем развивать первый вариант планировки, так как мы оба понимаем что он лучше (Оба, я имею в виду дизайнера и заказчика)

Происходит частичная меблировка, чтоб понять лучше объём. В целом неплохо получалась входная зона, она от всех ограничена, но прям у входа в зал из-за шкафа и колонны, проход остался всего, 1250 мм., мало.

Так же санузел около входя. Шахта далеко, прямую трубу можно пустить, но придётся возможно поднять сильно уровень пола. А уровень пола обычно выводится по уровню пола подъезда. Не всегда, но часто.

Ну или пускать трубы как то так. Неудобно.
Другая и самая большая проблема, как, куда и где расположить шкаф со столом в спальню. Окна мешают. Обсуждаем с заказчиком и оба понимаем что переодеваться и идти в гардероб через пол квартиры, прям совсем не вариант.
Работаем дальше над планировкой

Решили проблему местом в спальне. Установить посередине комнаты мебельный модуль со шкафом и столом.

Одну проблему решили, осталась другая, очень много пространства посередине зала и узкий вход в зал из-за колонны и шахты. Правда получилось коридор расширить и сделать 1500 мм против 1200мм которые были до этого.

В целом пространство достаточно, но опять же два открытых угла, прям у входа.
Так же есть не очень удачные решения, особенно из-за узкого коридора в спальню.