Почему ниши в коридоре получились из-за ошибок в планировке
- Почему ниши в коридоре получились из-за ошибок в планировке
- Связанные вопросы и ответы
- Какие планировочные решения могут привести к образованию ниш в коридоре
- Почему выбор материалов может повлиять на появление ниш в коридоре
- Какие ошибки в строительстве могут стать причиной ниш в коридоре
- Влияет ли геометрия помещения на образование ниш в коридоре
- Может ли неправильная установка дверей стать причиной ниш в коридоре
- Какие особенности освещения могут создать иллюзию ниш в коридоре
- Роль коммуникаций в появлении ниш в коридоре
- Влияет ли дизайн интерьера на формирование ниш в коридоре
Почему ниши в коридоре получились из-за ошибок в планировке
Хочу не много рассказать и показать, какое применение мы нашли проему в стене, в нашей прихожей. Начиная там ремонт и планируя размещение необходимых для прихожей предметов, у меня возникла идея вставить в проем комод. Комод, точнее пеленальный стол который мы уже давно не используем по назначению, стоял в гостиной, использовался просто для хранения и просто "мешал моему глазу"))) Комод вместительный и прагматически новый, разбирать и продавать его не хотелось…
Отдельно хочу поговорить об этом проеме. ЧТО ЭТО ВООБЩЕ ТАКОЕ?


Пыталась нарыть в инете, ничего не вышло.. Для чего он предназначался, может кто-то знает, напишите пожалуйста! Мне оч интересно. Единственный вариант на мой взгляд это проем для шкафа? Но он такой узкий.. Вообще не буду гадать, может кто наверняка знает.Так вот, я отошла от темы, померила комод, проем померила. И.. конечно же по закону подлости, комод оказался шире на несколько сантиметров!
Муж сказал я ничего ломать не буду))) Я сказала тогда я сама)) Вообщем набив мозолей я вырубила топором(!) проем нужного размера.

У нас есть перфоратор, но я им пользоваться не умею))) А комод уж очень хотелось втиснуть))
Муж придя с работы, покрутил у виска пальцем, взял перфоратор и доделал начатое, аккуратно. Зашкаливал потом. 
Вообщем и целом после оклейки обоев, комод углубился в стену и стоит сейчас в прихожей, наполнен домашним скарбом и никому не мешает.




Над комодом в проеме со временем появится зеркало и светильник.
Связанные вопросы и ответы:
Вопрос 1: Почему ниши в коридоре получились из-за нехватки места
Ниши в коридоре часто получаются из-за нехватки места, так как они позволяют эффективно использовать пространство. В узких коридорах ниши могут заменить традиционные полки или шкафы, обеспечивая место для хранения или декора без уменьшения прохода. Это особенно актуально в небольших квартирах или домах, где каждый сантиметр на счету. Кроме того, ниши могут визуально сделать коридор шире, если они правильно оформлены. Таким образом, нехватка места становится стимулом для создания функциональных и эстетически приятных ниш.
Вопрос 2: Почему ниши в коридоре получились из-за дизайнерского решения
Ниши в коридоре часто создаются как часть дизайнерского решения для добавления оригинальности интерьеру. Дизайнеры используют ниши, чтобы разбить монотонность стен, создать акценты и добавить изюминку в общий вид коридора. Это позволяет сделать пространство более интересным и современным. Кроме того, ниши могут быть использованы для размещения осветительных приборов, что делает их функциональным элементом дизайна. Таким образом, дизайнерское решение часто становится основной причиной появления ниш в коридоре.
Вопрос 3: Почему ниши в коридоре получились из-за коммуникаций
Ниши в коридоре могут получиться из-за необходимости прокладки коммуникаций, таких как электрические провода или трубы. Если коммуникации расположены близко к поверхности стены, их часто прячут в нишах, чтобы сохранить эстетичный вид коридора. Это особенно актуально вcases, когда невозможно спрятать коммуникации в стену из-за технических ограничений. Ниши позволяют скрыть неприглядные элементы и сохранить целостность дизайна. Таким образом, коммуникации становятся причиной создания ниш в коридоре.
Вопрос 4: Почему ниши в коридоре получились из-за необходимости дополнительного освещения
Ниши в коридоре могут получиться из-за необходимости дополнительного освещения. В нишах часто устанавливаются встроенные светильники, которые обеспечивают мягкое и равномерное освещение. Это особенно полезно в длинных или темных коридорах, где дополнительное освещение необходимо для комфорта и безопасности. Кроме того, освещение в нишах может быть использовано для создания акцентов на определенных элементах интерьера. Таким образом, необходимость дополнительного освещения становится причиной создания ниш в коридоре.
Вопрос 5: Почему ниши в коридоре получились из-за функциональности
Ниши в коридоре часто создаются из-за их функциональности. Они могут быть использованы для размещения различных предметов, таких как ключи, почта, украшения или даже небольшая полка для обуви. Это делает коридор более удобным и практичным. Кроме того, ниши могут быть оборудованы ящиками или дверцами, что позволяет хранить вещи в порядке и сохранять эстетичный вид. Таким образом, функциональность становится основной причиной создания ниш в коридоре.
Вопрос 6: Почему ниши в коридоре получились из-за архитектурных особенностей
Ниши в коридоре могут получиться из-за архитектурных особенностей здания. В некоторых cases, стены имеют непрямую форму или выступы, которые можно оформить в виде ниш. Это позволяет сохранить оригинальную архитектуру и сделать коридор более интересным. Кроме того, ниши могут быть использованы для маскировки конструктивных элементов, таких как балки или опоры. Таким образом, архитектурные особенности становятся причиной создания ниш в коридоре.
Вопрос 7: Почему ниши в коридоре получились из-за личных предпочтений
Ниши в коридоре могут получиться из-за личных предпочтений жильцов. Некоторые люди предпочитают нестандартные интерьерные решения, и ниши становятся способом реализовать их вкусовые предпочтения. Например, ниши могут быть использованы для размещения произведений искусства, скульптур или других декоративных элементов. Это позволяет сделать коридор уникальным и отражающим индивидуальность жильцов. Таким образом, личные предпочтения становятся причиной создания ниш в коридоре.
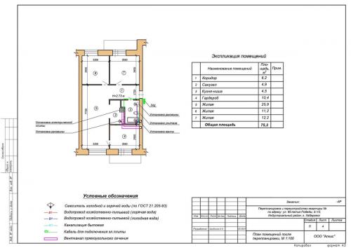
Какие планировочные решения могут привести к образованию ниш в коридоре
1. Посетили квартиру. Выполнили необходимые замеры и подготовили исходный план помещений. Составили с владельцем эскиз перепланировки и переустройства.
2. Разработали архитектурно-планировочное решение, которое предусматривает:
— объединение санузла;
— перенос кухонной зоны (кухни-ниши) в коридор;
— демонтаж старых и возведение новых внутренних перегородок из ПГП;
— закладку старых и устройство новых дверных проёмов;
— устройство наливных полов с гидроизоляцией в помещениях санузла и кухни-ниши;
— установку унитаза, ванны и раковин;
— установку электрической плиты в помещении кухни-ниши.
Кухня-ниша запроектирована в соответствии с СП 54.13330.2016 «Здания жилые многоквартирные. Актуализированная редакция СНиП 31-01-2003».
Всё сантехническое оборудование подключается к существующим стоякам холодного водоснабжения, горячего водоснабжения и канализации.
Монтаж электрического кабеля и подключение электрической плиты проводится силами лицензированной организации, имеющей необходимые допуски.
Перепланировка и переустройство квартиры выполняется без нарушения несущих конструкций элементов здания и не оказывает влияние на устойчивость конструкций.


3. Подготовили список необходимых актов на скрытые работы (монтаж скрытой электропроводки, гидроизоляцию полов и на монтаж перегородок из ПГП).
4. Собрали полный пакет документов и обратились с заявлением в комитет администрации города Хабаровска по управлению Индустриальным районом.
5. В установленный срок получили распоряжение о согласовании перепланировки и переустройства жилого помещения в многоквартирном доме.

Почему выбор материалов может повлиять на появление ниш в коридоре
- Гипсокартон
Большинство декоративных ниш в интерьерах изготавливают из гипсокартонных листов. Для таких целей существуют тонкие листы, хорошо поддающиеся сгибанию и монтажу в углубления в стенах. Монтируют ГКЛ на металлические профили либо деревянную обрешетку. Первый вариант предпочтителен, так как металл более долговечный.
Весомый плюс в пользу ниш из гипсокртона – это возможность выбора его типа – обычный, влагостойкий, огнестойкий, та также влаго- и огнестойкий. Основу (сердечник) ГКЛ составляет строительный гипс, поэтому материл экологически чистый и не издает химический запах.
Гипсокартон обеспечивает хорошую адгезию с материалами для декоративной отделки. Его легко облицевать штукатуркой, камнем, покрасить или оклеить обоями. Красивые ниши из гипсокартона в интерьере имеют незаметные швы и ровную поверхность.
Ниши из гипсокартона подойдут под большинство интерьеров, так как ГКЛ можно отделать многими облицовочными материалами в соответствии с выбранным стилем.
Есть несколько предосторожностей, связанных с нишами из гипсокартона – даже конструкции из влагостойкого ГКЛ не следует подвергать постоянным контактам с водой, так как материал может со временем разбухнуть или деформироваться.
Такие конструкции не выдержат больших нагрузок и ударов. Из-за этого они могут сломаться и больше не подлежать восстановлению.
- Дерево
Из натурального дерева можно изготовить ниши правильных форм с прямым или аркообразным сводом. Крепиться дерево может непосредственно к стене с помощью саморезов или же на обрешетку из металла или дерева.
Дерево в своем составе не содержит вредных компонентов. Более того, оно издает приятный лесной аромат, наполняя им помещение. Оно прочное, долговечное, хорошо выдерживает нагрузки. Текстура дерева сама по себе красива, поэтому ее чаще всего покрывают прозрачным лаком или определенной расцветки для создания гармонии цветов в интерьере.
Деревянные ниши оптимально подойдут под интерьеры в стиле кантри, прованс, также они дополнят скандинавский и классический стиль. К недостаткам ниш из дерева стоит отнести ухудшение свойств материала в результате воздействия влаги и трудности в создании сложных форм.
Какие ошибки в строительстве могут стать причиной ниш в коридоре
Дизайнер Ольга Погорелова.
Дизайнер Ольга Погорелова.
«Главная ошибка маленькой прихожей — открытые вешалки для верхней одежды. Всегда в своих проектах стараюсь делать встроенные шкафы в прихожих. Или хотя бы закрытые шкафы.
Открытые секции в маленьком помещении создают ощущение дробности и быстро обрастают «временными» вещами. Поэтому все, что хранится в прихожей, должно быть закрыто и не привлекать внимание.
Фрагмент интерьера.
Автор проекта: Ольга Погорелова.
Шкафы в цвет стен (лучше встроенные в нишу) с плоскими фасадами без выступающих ручек — отличный вариант. А фокус внимания лучше перенести, например, на зеркало, картину или красивую люстру. Мы живем в прекрасное время, где даже маленькая комната может быть объектом эстетического наслаждения».
Эти статьи могут вам понравиться:

Как оформить интерьер для аренды: 6 советов от дизайнера
Дизайнер Оксана Агапонова рассказала, каким должен быть интерьер квартиры в аренду, чтобы она как можно дольше оставалась в хорошем состоянии и не требовала лишних вложений.
#Интерьер

Сердце гостиной: как оформить потрясающую ТВ-зону дома
Телевизор сегодня — полноценный элемент интерьера, важная часть повседневной жизни и досуга. Рассказываем, как грамотно оформить ТВ-зону, чтобы она получилась стильной и удобной.
#Интерьер

Лампа в дом: 6 новинок светильников-2025
От светильника-икебаны до лампы в наушниках. Сделали подборку медитативных и броских моделей из новых коллекций известных брендов.

5 культовых предметов дизайна XX века
От провокационного кресла UP Гаэтано Пеше до минималистичного шедевра Мис ван дер Роэ — эти культовые предметы не только выдержали испытание временем, но и продолжают вдохновлять дизайнеров по всему миру.
Влияет ли геометрия помещения на образование ниш в коридоре
- Если фальш-стена с нишей проектировалась самостоятельно, то после составления плана потребуется обзавестись следующими материалами:
- Стеновой несущий металлический профиль;
- Направляющий металлический профиль;
- Демпферная лента;
- Перфорированные обвесы;
- Угловой профиль;
- Стеновой гипсокартон;
- Сетка серпянка;
- Гипсовая шпаклевка;
- Саморезы по металлу;
- Анкеры;
- Встраиваемые светильники;
- Гофрированная трубка;
- Медный провод.

- Из инструментов потребуется:
- Уровень с правилом;
- Перфоратор с победитовым сверлом;
- Шуруповерт и набор насадок;
- Набор шпателей;
- Набор отверток.
Шаг 1
Зная, на какое расстояние будет вынесена будущая фальш-стена – это расстояние напрямую влияет на глубину ниши, параллельно уже имеющейся старой капитальной стене на основании пола прочерчивается ровная сплошная линия. Строго по прочерченной линии на полу производится монтаж направляющего нижнего профиля. Предварительно на тыльную сторону профиля наклеивается демпферная лента. Далее в профиле сверлят отверстия диаметром 5-6 мм с шагом 40-50 см. После этого профиль укладывают демпферной лентой к поверхности пола, сквозь отверстия засверливаются в половое основание и с помощью анкеров выполняют крепление направляющего профиля.
Шаг 2
Отступив от внутреннего угла стены 10 см, в смонтированный напольный профиль вставляется вертикальный стеновой профиль. К стеновому профилю прикладывают уровень и находят его вертикальное положение. После этого в стене по траектории вертикального профиля с шагом в 40-50 см просверливают отверстия глубиной 5-6 см. За счет данных отверстий производят анкерами монтаж обвесов – специальных металлических перфорированных пластин. Далее пластины вручную изгибают буквой “П”, между всех торчащих лопастей помещают вертикальный стеновой профиль и, произведя его нивелировку, его закрепляют в лопастях обвесов металлическими саморезами.

Шаг 3
Оставив небольшой промежуток – 3-5 мм между верхним концом вертикального профиля и потолком, производят запуск предварительно оклеенного демпферной лентой верхнего направляющего профиля. Верхний направляющий профиль к потолку монтируется аналогично нижнему профилю – производят засверливание и анкерное крепление. Когда верхний направляющий профиль будет смонтирован, в противоположном углу комнаты, отступив от внутреннего угла 10 см, аналогично при помощи обвесов закрепляется второй, крайний несущий стеновой профиль.
Шаг 4
Используя верхний и нижний направляющие профили и ориентируясь по двум крайним несущим вертикальным профилям, по всей плоскости будущей фальш-стены с шагом 40-50 см монтируются остальные несущие вертикальные профили. Естественно, в том месте, где будет располагаться ниша, несущий профиль не монтируют. Однако необходимо рассчитать положение профилей так, чтобы они проходили строго по траектории будущих наружных вертикальных углов ниши.
Читать также: Как сделать ремонт кухни с газовой колонкой

Шаг 5
Зная глубину будущей ниши к старой стене при помощи обвесов, анкеров и саморезов монтируют внутренние вертикальные несущие профили. Также на этом этапе работы монтируют горизонтальные профили, которые будут отмечать верхнюю и нижнюю плоскость будущей ниши. Впрочем, это необязательно, так ниша может начинаться у основания пола или на любой произвольной высоте, и заканчиваться так же. Здесь все зависит от изначального дизайна и проекта ниши.
Шаг 6
Учитывая будущее расположение светильников подсветки, на этом этапе необходимо подвести электрические провода питания. Очень важно все провода в фальш-стене поместить в гофрированную трубку, которую можно зафиксировать хомутами или дужками из пвх к основанию старой стены. Если же в системе освещения предусматриваются трансформатор, дроссель и прочие электрические компоненты, то для их размещения обычно используют полимерные короба, крышки которых располагают на мало просматриваемом участке стены.

Шаг 7
Готовый каркас из металлического профиля полностью обшивается гипсокартонном. Для крепления листов гипсокартона используют саморезы по металлу. При этом в момент закручивания, шляпки саморезов необходимо заглублять в толщу гипсокартонного листа на 1-2 мм.
Шаг 8
На внутренних плоскостях ниши коронкой производят круглые пропилы под будущий монтаж светильников. Также на этом этапе на все стыки между листами гипсокартона наклеивают самоклеющуюся сетку серпянку, а на наружные углы ниши, изготовив небольшое количество гипсовой шпаклевки монтируют угловые профили.

Шаг 9
Изготавливают небольшой замес шпаклевки и прошпаклевывают все точки, где располагаются шляпки саморезов и все места, где была наклеена сетка серпянка. После нанесения шпаклевки, ей дают подсохнуть 3-4 часа, после чего всю плоскость фальш-стены и ниши полностью прошпаклевывают. Когда вся шпаклевка высохнет, по всей поверхности проходятся наждачной шкуркой, подключают предусмотренные светильники и приступают к окончательной отделке и декорированию ниши.

Может ли неправильная установка дверей стать причиной ниш в коридоре
- Чтобы грамотно установить дверь, необходим набор специальных инструментов: уровень, несколько фрезеров, шаблон и еще много чего. И что особенно важно – умение всем этим пользоваться. В противном случае результат работы только огорчит. Помимо инструментов у профессионального мастера всегда с собой набор маркеров и замазок.
- Если перед установкой не проверили с помощью уровня стены, они могут оказаться кривыми и дверь встанет неровно. Профессиональные мастера эту проблему знают и решают разными способами по согласованию с заказчиком. А вот для шабашника такой изъян может оказаться сюрпризом, а в итоге пострадает заказчик.
- Специалисты единогласны во мнении: монтажная пена и пистолет должны быть только профессиональными, а не любительскими, которые используют для бытовых нужд. Главное правило – все манипуляции по замене баллончиков проводить в коридоре, подальше от стен и дверей. Нередки случаи, когда ситуация выходит из-под контроля. Профессионалы об этом помнят и четко соблюдают технику безопасности.
- Считается ошибкой, если при установке двустворчатой двери одну створку поставили вверх тормашками – то есть рисунок текстуры будет направлен в противоположную сторону. В глаза не бросается, но, если приглядеться – недостаток заметен.
- Дверная коробка выставлена не по уровню в горизонтальной или вертикальной плоскости, а иногда и в обеих сразу. В итоге дверь может самостоятельно открываться или закрываться. Чтобы устранить этот недочет, дверную коробку придется снимать и переустанавливать заново – уже по уровню.
- Наличник не прикрывает зазор между стеной и коробкой и над дверью неприкрытая щель. Мастерам, которые потом устраняют дефект, приходится поднимать коробку. В этом случае зазор между полотном двери и полом увеличится. Как вариант, в некоторых случаях устанавливают порог по согласованию с заказчиком.
- Если дверную коробку неправильно собрали или не по уровню установили в плоскости, в местах стыков наличников будут зазоры. Чтобы обойтись «малой кровью», мастера рекомендуют как вариант – установить наличники по евростандарту: стыки не под 45, а под 90 градусов.
- Две рядом стоящие двери установлены на разном уровне. Это ошибка, которую квалифицированные монтажники никогда не допустят. А шабашники о таких тонкостях чаще всего не знают.
- Стык разных напольных покрытий расположен не под дверным полотном. В этом случае из-под двери будет выглядывать напольное покрытие другой комнаты и шов. Выглядит очень неэстетично. Исправить недостаток можно, если сделать, чтобы дверь открывалась в обратную сторону – то есть полотно прикрыло бы стык напольных покрытий. Но это не всегда возможно.
- Неправильное расположение выключателей – они не должны оказаться за дверью, когда мы входим в комнату. Все эти мелочи нужно планировать заранее.
- Разный уровень пола или порожка. Например, в ванной пол выше, чем во всей квартире и Поэтому длины наличника должно хватить до самой низкой точки.
- Некрасивая стыковка плитки и рельефных элементов стены с наличниками. Чтобы избежать подобного, не следует доводить плитку до края дверного проема, чтобы впоследствии можно было красиво состыковать с наличниками.
Какие особенности освещения могут создать иллюзию ниш в коридоре
Чтобы освещение в коридорах выглядело стильно и было удобно в использовании, необходимо учесть несколько моментов:
- Геометрия пространства
- Высота потолков
- Наличие естественного света
- Цвет отделки стен
- Стиль интерьера
В просторном холле и длинном узком коридоре светильники имеют различную форму, количество, мощность, местоположение и вид.
Кроме того, при наличии лестницы на помещение возлагается дополнительная функциональная нагрузка, которая также нуждается в организации подсветки.
Подвесные светильники и масштабные люстры устанавливают на потолки высотой более 3 метров. На невысоких поверхностях рекомендуется использовать точечный свет, шинопроводы и накладные модели приборов.
Кроме того, установка настенного света в коридорах с высокими потолками зрительно увеличивает ширину пространства.
Если прихожая имеет окна, стеклянные двери, перегородки, которые пропускают дневной свет, освещение в этой зоне имеет меньшую интенсивность и разнообразие.
Чем светлее оттенок вертикального покрытия, тем больше он отражает лучи от приборов, следовательно, требуется меньшее количество точек для освещения коридоров.
Несмотря на то, что любой тип светильников можно подобрать в желаемом дизайне, к выбору конкретной модели стоит подойти более тщательно. Неверно выбранное изделие может нарушить единый образ пространства, тогда как гармонично подобранные софиты поддержат стиль помещения и наполнят прихожую визуальным объемом.
Роль коммуникаций в появлении ниш в коридоре
Ниши в коридоре могут стать не только удобным и функциональным элементом декора, но и отличным способом оптимизации использования пространства. В этом разделе мы предлагаем вам несколько идей, как оформить ниши в коридоре так, чтобы они стали стильным дополнением интерьера и при этом были максимально полезными.
1. Используйте ниши для хранения обуви. Установите в них специальные полки или сделайте небольшие встроенные шкафчики. Это позволит вам удобно хранить обувь всей семьи и освободить место на полу.
2. Создайте экспозицию. Нишу можно использовать для выставления коллекций книг, фигурок, сувениров и других предметов, которые вам нравится собирать. Выделяйте нишу специальным светом или декоративными элементами, чтобы она смотрелась выразительно и привлекала взгляды.
3. Разместите там галерею семейных фотографий. Замечательным способом персонализировать пространство и дать коридору особый характер является размещение фотографий с детьми, родителями, близкими людьми. Ниша подходит здесь идеально: она выделит ваши фотографии и подарит простор для творчества.
4. Создайте мини офис. Если у вас небольшая ниша в коридоре, то можно использовать ее для обустройства мини офиса. Установите небольшой стол, стул и декорируйте пространство в соответствии с вашими рабочими предпочтениями. Это станет удобным местом для работы на ноутбуке или организации рабочего уголка.
5. Сделайте нишу функциональной. Используйте нишу в коридоре для размещения полок с книгами, корзин для хранения мелочей, полочек для ключей, консолей для аксессуаров или зеркалами. Это поможет дополнительно организовать пространство и сделает его более удобным для повседневной жизни.
В зависимости от вашего стиля и предпочтений выберите одну из этих идей и превратите ниши в коридоре в функциональные и красивые элементы вашего интерьера.
Влияет ли дизайн интерьера на формирование ниш в коридоре
Для создания уютной атмосферы могут использоваться различные элементы декора. Например, установка мягкого коврика или подушек в нише может придать ей дополнительный комфорт. Также можно разместить небольшие предметы интерьера, которые будут отражать индивидуальность хозяев дома и создавать приятную атмосферу.
Важно также обратить внимание на освещение. Оно должно быть достаточно ярким, чтобы при входе в прихожую не ощущался темный уголок, но в то же время не должно быть слишком ярким или раздражающим для глаз. Подходящие источники света могут помочь создать уютный и приятный для пребывания в прихожей.
Кроме того, стоит обратить внимание на выбор цветовой гаммы и материалов для отделки ниши. Нежные и теплые тона, такие как пастельные оттенки или натуральные материалы, помогут создать ощущение уюта и комфорта. Также стоит учесть функциональность ниши и подобрать материалы, которые будут удобны в использовании и легко очищаться.
И, наконец, не стоит забывать о деталях. Вешалки для одежды, полки для обуви, повесить зеркало и установка небольших стеллажей - все это мелочи, которые помогут сделать прихожую более функциональной и удобной в использовании.
Создание уютной атмосферы в нише в прихожей может быть достигнуто путем грамотного подбора декора, освещения, цветовой гаммы и использования функциональных элементов. Важно помнить, что каждый деталь должна служить целевому назначению и вместе создавать гармоничное и уютное пространство для встречи семьи и гостей.