Как превратить двушку-хрущевку в современную квартиру
- Как превратить двушку-хрущевку в современную квартиру
- Связанные вопросы и ответы
- Какие ключевые особенности дизайна двушки-хрущевки стоит учитывать при проектировании
- Как максимально эффективно использовать пространство в небольшой квартире
- Какие цветовые схемы помогут визуально увеличить пространство
- Есть ли универсальные принципы дизайна, которые идеально подходят для хрущевок
- Как эффективно зонировать жилую площадь в двушке
Как превратить двушку-хрущевку в современную квартиру
Хрущевки, которые были построены в середине XX века, до сих пор остаются одними из самых распространенных типов жилых помещений в России и странах СНГ. Эти квартиры имеют свои особенности, такие как небольшая площадь и специфическая планировка. Однако с правильным подходом даже такую двушку можно превратить в современное и комфортное жилье.
Планировка и перепланировка
Одним из главных шагов в превращении хрущевки в современную квартиру является перепланировка. Это позволяет максимально эффективно использовать доступное пространство и создать более удобную и функциональную планировку.
Демонтаж стен
Первым делом стоит рассмотреть возможность демонтажа некоторых стен. Это позволит объединить комнаты и создать более просторное пространство. Например, можно объединить кухню и гостиную, чтобы получить большую общую зону.
Перепланировка с учетом современных потребностей
Современная квартира должна быть функциональной и удобной. При перепланировке важно учитывать, как вы будете использовать каждое помещение. Например, можно сделать отдельную спальню, рабочий кабинет или детскую комнату.
Ремонт и дизайн
После того как планировка готова, приходит время заняться ремонтом и дизайном. Это ключевые этапы, которые определятный вид вашей квартиры.
Современные материалы и технологии
Современный ремонт невозможно представить без использования качественных материалов и современных технологий. Например, можно использовать гипсокартон для создания новых перегородок, а также современные виды обоев, покраски или плитки для стен.
Освещение
Освещение играет важную роль в создании уюта и комфорта. Современные системы освещения позволяют создать необходимый уровень яркости и атмосферы. Можно использовать встроенные светильники, светодиодные ленты и другие современные решения.
Сантехника и инженерные системы
Современная квартира требует надежных сантехнических и инженерных систем. Это включает в себя установку новых труб, сантехнического оборудования и системы отопления.
Современные сантехнические приборы
Современные сантехнические приборы не только удобны в использовании, но и экономят воду и электроэнергию. Например, можно установить душевую кабину, современный унитаз с двойным сливом и раковину с сенсорным краном.
Системы отопления и вентиляции
Современные системы отопления и вентиляции позволяют создать комфортный микроклимат в квартире. Можно использовать напольное отопление или современные радиаторы, а также установить систему вентиляции с рекуперацией.
Мебель и декор
Мебель и декор являются важными элементами, которые определяют стиль и атмосферу вашей квартиры. Современная мебель должна быть функциональной и стильной.
Современная мебель
Современная мебель отличается минимализмом и простотой. Можно выбрать мебель с геометрическими формами, гладкими поверхностями и современными материалами, такими как стекло, металл и высококачественная древесина.
Декор и аксессуары
Декор и аксессуары помогают создать уникальный стиль вашей квартиры. Можно использовать современные картины, скульптуры, вазы и другие декоративные элементы. Также важно обратить внимание на текстиль, такой как ковры, шторы и подушки.
Практические советы и рекомендации
Перед началом ремонта важно тщательно спланировать все этапы работ и подобрать необходимые материалы. Также стоит обратить внимание на следующие советы:
- Проектная документация. Перед началом ремонта необходимо разработать проектную документацию, которая будет включать планы, схемы и чертежи.
- Соответствие нормам. Все работы должны соответствовать действующим строительным нормам и правилам.
- Качество материалов. Используйте только качественные материалы, которые прослужат долгое время.
- Профессиональная помощь. Если вы не уверены в своих силах, лучше обратиться к профессиональным мастерам.
| Этап ремонта | Описание | Сроки | Стоимость |
|---|---|---|---|
| Перепланировка | Разработка проекта, демонтаж стен, создание новых перегородок | 2-4 недели | от 50 000 рублей |
| Сантехника | Установка новых труб, сантехнических приборов | 1-2 недели | от 30 000 рублей |
| Отделка | Штукатурка, покраска, укладка плитки | 3-5 недель | от 70 000 рублей |
| Мебель и декор | Подбор и установка мебели, декорирование | 1-2 недели | от 40 000 рублей |
Следуя этим рекомендациям и тщательно планируя каждый этап ремонта, вы сможете превратить свою двушку-хрущевку в современную и комфортную квартиру, которая будет соответствовать вашим потребностям и вкусам.
Связанные вопросы и ответы:
Вопрос 1: Какие общие советы по дизайну можно дать для двухкомнатной хрущевки
При проектировании дизайна двухкомнатной хрущевки важно учитывать ограничения пространства. Сначала определите функциональные зоны в каждой комнате, чтобы все было удобно и логично. Используйте светлые оттенки стен и минимум декора, чтобы визуально увеличить пространство. Обратите внимание на выбор мебели: она должна быть компактной и функциональной, например, с встроенными ящиками или трансформерами. Также важно не перегружать интерьер — лучше меньше, но качественнее и стильнее.
Вопрос 2: Какие цветовые решения подходят для двухкомнатной хрущевки
Для двухкомнатной хрущевки идеально подходят светлые и нейтральные цвета. Они помогают визуально увеличить пространство и сделать комнаты более просторными. Белый, серый, бежевый и мягкий синий — отличные варианты для стен. Акцентные цвета, такие как коралловый или мятный, можно использовать в деталях: подушках, ковре или картинах. Избегайте темных тонов, так как они могут сделать комнату еще уже.
Вопрос 3: Как правильно зонировать пространство в двухкомнатной хрущевке
Зонирование пространства в двухкомнатной хрущевке — это важный шаг для создания уютного и функционального интерьера. В гостиной можно обозначить зону отдыха с диваном и телевизором, а в спальне — зону сна с кроватью и шкафом. Используйте шторы, перегородки или разные цвета пола для разделения пространства. Также можно объединить кухню и гостиную, если позволяет площадь, чтобы создать более просторное ощущение.
Вопрос 4: Как выбрать мебель для двухкомнатной хрущевки
Выбор мебели для двухкомнатной хрущевки должен быть тщательным и практичным. Отдавайте предпочтение компактным и многофункциональным моделям, таким как диван-сундук или стол с встроенными ящиками. Избегайте громоздкой мебели, которая займет много места. Также важно учитывать размеры комнаты при выборе мебели — измерьте дверные проемы и коридоры, чтобы избежать проблем с доставкой и размещением.
Вопрос 5: Какие современные стили дизайна подходят для двухкомнатной хрущевки
Для двухкомнатной хрущевки идеально подходят современные стили, такие как минимализм, скандинавский дизайн или лофт. Минимализм предполагает использование простых форм и.minimum декора, что делает пространство более свободным. Скандинавский стиль сочетает светлые цвета, натуральные материалы и функциональную мебель. Лофт же позволяет добавить индустриальные элементы, такие как кирпичные стены или металлические детали, что придаст интерьеру оригинальность.
Вопрос 6: Как использовать освещение в дизайне двухкомнатной хрущевки
Освещение играет важную роль в дизайне двухкомнатной хрущевки. Используйте комбинацию верхнего света, напольных ламп и настольных светильников, чтобы создать уютную и функциональную атмосферу. Светлые цвета стен и потолков помогут отражать свет, делая комнату более светлой. Избегайте слишком яркого света, чтобы не создать ощущение дискомфорта. Также можно использовать встроенные светильники или светодиодные ленты для дополнительного освещения.
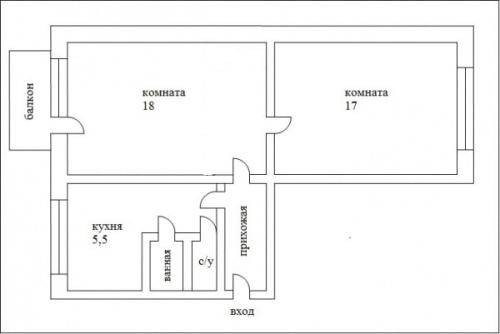
Какие ключевые особенности дизайна двушки-хрущевки стоит учитывать при проектировании
Нельзя начать ремонт двухкомнатной квартиры хрущевки без понимания ее особенностей.
Кухня с небольшим метражом (5–6 метров).
Низкие потолки.
Одна из комнат – проходная.
Санузел и ванна совмещенные, при этом у комнаты небольшой метраж, который не позволяет смонтировать стандартную ванную.
Если отдельная кладовка.
Если квартира расположена не на первом этаже – есть балкон или лоджия.
Еще две грустные особенности «хрущевок» – очень малый метраж прихожей и плохая шумоизоляция. Впрочем, практически все недостатки квартиры можно нивелировать современным ремонтом.

Скажем еще пару слов об особенностях планировок в домах разных серий, а потом дадим рекомендации по улучшению ситуации.
Метражи и особенности планировки двухкомнатных хрущевок
Встречаются разные варианты планировок:
«Книжки». Квартиры этой планировки имеют площадь в 42–43 м2. Их главная особенность – кухня, спальня и гостиная идут друг за другом. Проходная комната должна выполнять роль столовой. Если семья больше двух человек, придется в ней же спать, что очень неудобно. Жирный минус такой планировки – проходная комната останется проходной, как бы и что вы ни запланировали. Самый распространенный вариант изменения в такой комнате – снос перегородок между кухней и столовой (комната превращается в уверенную студию).

«Трамваи» (они же «Павровозики») – квартиры с метражом в 47 метров. В такой планировке две спальные комнаты располагаются смежно. При этом одна из них угловая, а вторая – проходная. Чаще всего при такой планировке «отрезается» часть проходной комнаты, достраивается стена и создается своеобразный коридор (в котором дополнительно размещают системы хранения вещей).

«Бабочки» (они же «Распашонки») – квартиры с метражом в 46 м2. Сразу за прихожей размещается кухня и санузел, комнаты располагаются по бокам. Достаточно удобный вариант, главный минус – санузел находится практически на кухне.

Неважно, какая именно планировка у вашей квартиры – с помощью продуманного ремонта ее можно превратить в дом вашей мечты.
Комплексный ремонт квартир под ключ
Всё включено
В стоимость ремонта входит всё: работы, материалы, документы.
Без вашего участия
После согласования проекта мы беспокоим хозяев только при сдаче ремонта.
Цена известна заранее
Стоимость ремонта фиксируется в договоре.
Фиксированный срок ремонта
Ремонт квартиры под ключ за 3,5 месяца. Срок закреплен в договоре.
Как максимально эффективно использовать пространство в небольшой квартире
Как с помощью цвета визуально увеличить пространство: 5 полезных советовГрамотно подобранная цветовая схема для каждой комнаты поможет не только украсить интерьер, но и зрительно расширить пространство или скорректировать его неудачные пропорции. Эти 5 полезных советов расскажут, как с помощью цвета изменить ощущение пространства и сделать его свободнее.
Оттенки белого цвета для стен и потолка хорошо справятся с задачей визуального расширения пространства. Белый цвет размывает границы и наполняет помещение светом и воздухом. Однако не все готовы покрасить стены в чисто белый цвет из-за страха сделать комнату похожей на стерильную больничную палату. Избежать такого эффекта помогут два простых решения.
Первое – сделать одну из стен акцентной. Какой цвет для нее выбрать – дело вкуса, белый сочетается с любым цветом, ошибиться здесь нельзя.
Если выбрать темный насыщенный цвет для акцентной стены в сочетании с остальными белыми стенами, это поможет скорректировать пропорции помещения, к примеру, сделать слишком длинную и узкую комнату более квадратной.
Второе решение – колеровать белый ненавязчивым пастельным тоном, чтобы получить легкий, едва заметный оттенок. Этот способ избавит комнату от ощущения стерильности, но при этом оптически сделает ее просторнее.
2. Легкие оттенки голубого
Визуально сделать маленькую комнату просторнее помогут холодные оттенки голубого – они раздвигают пространство, делая его свободнее. Теплые оттенки – особенно это касается тонов с присутствием теплых оттенков розового и красного – имеют обратный эффект, сближая стены и зрительно уменьшая размеры помещения.
3. Нежный желтый
Еще один цветовой прием для оптического расширения пространства – использовать для стен легкий светло-желтый оттенок. Более насыщенные оттенки желтого с этой задачей не справятся.
4. Цвет стен в маленькой квартире
Прием, который поможет сделать просторнее маленькую квартиру – схожая цветовая схема в оформлении стен, пола и потолка во всех помещениях. Если для пола и потолка здесь лучше выбрать идентичные цвета – например, цвет плитки в ванной повторяет цвет коврового покрытия в гостиной – то для стен можно оставить небольшую разницу в оттенках. Так вся квартира будет казаться более просторной, но не станет при этом слишком единообразной.
5. Полосы на полу и стенах
Чередование цветов – полосы на полу и стенах – поможет исправить пропорции комнаты. Полосатый ковер с продольными полосами контрастных цветов визуально удлинит коридор или комнату.
Горизонтальные широкие полосы на стене сделают ее шире, но при этом чуть ниже, а вертикальные полосы наоборот помогут зрительно приподнять низкий потолок.
Какие цветовые схемы помогут визуально увеличить пространство
Первое и самое главное правило для тех, кто думает, как обустроить кухню в хрущевке – никогда не брать в качестве примера фото помещения, сделанное сразу после ремонта, то есть еще до того, как пространство «обжито». Логика проста: такие снимки не отражают реальную картину, так как интерьер еще не «дополнен» стандартными вещами, начиная от посуды, кухонной утвари и аксессуаров, заканчивая мелкой бытовой техникой – кофеварками, тостерами, чайниками и проч. И лишь поэтому он выглядит эстетично, эффектно и красиво.
Мысленно следует «доставить» по поверхностям все недостающие вещи, которые есть на каждой кухне. В 90% случаев будет очевидно, что представленный на фото вариант отделки кухни в хрущевке фактически не имеет преимуществ. Особенно часто такое случается, если дизайн-проект очень яркий или стилистически сложный.
Именно поэтому ориентироваться стоит на фото интерьеров уже обжитых кухонь в хрущевке, а еще – соблюдать 5 главных правил при создании собственного дизайн-проекта.

Ключевые ориентиры при планировке кухни в хрущевке:
1. Основных цветов – максимум 2 , причем они должны быть светлыми. Идеально подойдут следующие оттенки: белый, пудровый, светло-серый, бежевый, кремовый. Светлое помещение выглядит более «объемным» и просторным, что особенно актуально в условиях малой площади. Темные или яркие цвета допустимы лишь для оформления кухонного фартука , а от узоров и орнаментов стоит вообще отказаться.
2. Кухонный гарнитур – в исполнении «под потолок» с узкими нижними шкафами. Верхние модули, установленные «под потолок», обеспечивают дополнительные места для хранения, позволяют рационально использовать свободное пространство. Верхние полки идеально подойдут для размещения вещей и утвари, которые используются не регулярно, а лишь от случая к случаю. Гарнитуры с таким исполнением удобны и тем, что они: скрывают все инженерные коммуникации, начиная от электропроводов, заканчивая вентиляционными коробами, благодаря чему не возникает ощущения беспорядка, а также зрительно «поднимают» потолок, делая кухню более просторной и объемной. Кстати, и уборка будет значительно проще: пыль, как и ненужные вещи, не будут скапливаться. Второй важный момент – целесообразно сделать глубину нижних шкафов не стандартной на 60 см, а чуть меньше – 48-50 см. С точки зрения вместительности модулей разница не критична, зато в центре кухни появится гораздо больше места, не возникнет сложностей с открытием фасадов. Это обеспечит удобство перемещения и в принципе нахождения на кухне. Особенно это актуально, если в квартире живет несколько человек.
Есть ли универсальные принципы дизайна, которые идеально подходят для хрущевок
Покупая отделочные материалы для ремонта в хрущевке, следует отдавать предпочтение зеркальным покрытиям, фотообоям с эффектом 3д, обоям с вертикальными и горизонтальными линиями и другой облицовке, позволяющей визуально увеличить пространство.
Независимо от количества комнат в квартире, лучше выбрать для них светлое оформление стен и потолка. Так помещение будет смотреться намного шире. Идеальным решением станет использование одной цветовой гаммы для ремонта каждой комнаты. В маленькое пространство впишутся кремовые, персиковые, оливковые, бежевые и другие нюдовые оттенки. Наполнить обстановку светом и смягчить контрасты можно с помощью добавления белого цвета.
Желательно избегать слишком яркой и насыщенной палитры в облицовке. Для того, чтобы разбавить интерьер лучше использовать несколько акцентов таких, как сувениры, картины, подушки, шторы и прочий текстиль и декор.
Несмотря на то, какой ремонт предполагается в хрущевке, малогабаритное жилье может выглядеть шикарно за счет оформления в одном стиле.



Рационально задействовать пространство в хрущевке помогут различные дизайнерские идеи. Например, кладовку уместно очистить от ненужного хлама и оборудовать в ней рабочий мини-кабинет, кровать установить на деревянный подиум с системой хранения для постельного белья и вещей, громоздкие шкафы заменить на стеллажи или открытые полки, а подоконник использовать в качестве письменного, компьютерного стола или дополнительной столешницы.

Как эффективно зонировать жилую площадь в двушке
Процесс внедрения действительно непростой, но структурированный. Главное – разбить его на 4 этапа и поочередно выполнять запланированные действия. 1-й этап – разделить складское помещение на участки – зону приемки, хранения и отгрузки. Их, в свою очередь, делят на функциональные подзоны. Согласитесь, нелогично располагать на одном участке масштабные паллеты, требующие участия штабелеров или погрузчиков, и мелкие коробки, которые будут лишь «путаться под ногами». Но если продукция на складе однотипная, усложнять не стоит. 2-й этап – присвоить зонам хранения адреса. Ячейки штрихкодируют и маркируют. Если складов несколько или на территории одного много зон, для удобства они маркируются буквами, а ячейки – цифрами. Желательно не использовать похожие символы, иначе будет путаница. Вместо «сомнительных» О или З (а как вы думаете, это буквы или цифры?) лучше взять более безобидные В, Н, К. 3-й этап – внедрить динамическое адресное хранение в систему управления складом. Функционал типовой программы 1С в плане применения адресного хранения весьма ограничен: в разных конфигурациях можно присвоить идентификаторы и даже настроить динамическое адресное хранение, но мало что можно сделать для автоматизированного контроля за товаропотоком без специализированного ПО. 4-й этап – позаботиться об оборудовании и ПО для ТСД. Понадобятся терминалы сбора данных, с их помощью операторы будут получать задания из системы, сканировать идентификаторы товаров и ячеек. Потребуется специальное программное обеспечение, например DataMobile, сделает этот процесс максимально гибким и простым.