Удобство в минимуме: как жить в двушке с проходной комнатой
- Удобство в минимуме: как жить в двушке с проходной комнатой
- Связанные вопросы и ответы
- Какие есть преимущества наличия проходной комнаты в двушке
- Как спланировать интерьер двушки с проходной комнатой
- 1. Экономим место в шкафу: тонкие вешалки
- 2. Используйте стены как место для хранения
- 3. Храните мелочи в корзинах
- 4. Сиденье + хранение
- 5. Журнальный столик с местом для хранения
- 6. Используйте внутренние поверхности дверей шкафов и шкафчиков
- 7. Используйте вращающиеся подставки
- 8. Установите вторую штангу
- Какие лучшие способы использования пространства проходной комнаты
- Как организовать хранение в небольшой двушке с проходной комнатой
- Какие типичные планировки двушки в хрущёвке
- Как выбрать мебель для проходной комнаты
- Какие трудности возникают при жизни в двушке с проходной комнатой
Удобство в минимуме: как жить в двушке с проходной комнатой
Введение
Современный ритм жизни часто заставляет нас сталкиваться с ограничениями пространства. Двухкомнатные квартиры с проходной комнатой становятся популярным выбором для многих городских жителей. Однако комфортная жизнь в таком помещении требует тщательного подхода к планировке и организации пространства.
Планировка и функциональность пространства
Одним из ключевых моментов при организации жизни в двушке с проходной комнатой является рациональное использование каждого уголка. Важно помнить, что проходная комната не должна превратиться в просторный коридор, а стать полноценной зоной для отдыха или работы.
Основные принципы планировки
- Минимализм и простота в интерьере.
- Использование многофункциональной мебели.
- Оптимизация хранения вещей.
- Зонирование пространства.
Хранение и организация вещей
Одной из основных проблем в малогабаритных квартирах является нехватка места для хранения. Однако, при правильном подходе можно создать удобные и доступные системы хранения.
Советы по организации хранения
| Метод хранения | Описание |
|---|---|
| Вертикальное хранение | Использование полок, крючков и стеллажей для максимального использования стены. |
| Встроенные шкафы | Установка шкафов в нишах или под окнами для экономии места. |
| Многоуровневые системы | Использование контейнеров и корзин для разделения вещей по категориям. |
Зонирование пространства
Проходная комната может быть разделена на несколько зон, каждая из которых выполняет определенную функцию. Это позволит создать уютные и комфортные уголки для отдыха, работы и приема гостей.
Идеи для зонирования
- Использование штор или экранов для разделения пространства.
- Установка перегородки или стеллажа.
- Разделение комнаты с помощью мебели.
Выбор мебели для малогабаритного пространства
Мебель играет ключевую роль в создании комфортного интерьера. Для двушки с проходной комнатой важно выбирать мебель, которая сочетает функциональность и компактность.
Рекомендации по выбору мебели
| Тип мебели | Характеристики |
|---|---|
| Трансформирующая мебель | Софы, столы и кровати, которые можно преобразовать. |
| Компактная мебель | Стулья, столы и шкафы с минималистичным дизайном. |
| Встроенная мебель | Шкафы и полки, встроенные в стены или ниши. |
Дополнительные советы
Для того чтобы жизнь в двушке с проходной комнатой была максимально комфортной, важно учитывать множество нюансов. Вот несколько дополнительных советов, которые помогут вам создать уютное и функциональное пространство.
Советы для комфортной жизни
- Используйте светлые цвета для визуального увеличения пространства.
- Минимизируйте количество декора, чтобы избежать загромождения.
- Объедините зоны для создания единого пространства.
- Используйте зеркала для визуального расширения комнаты.
Следуя этим рекомендациям, вы сможете создать уютное и комфортное жилое пространство даже в небольшой двушке с проходной комнатой. Помните, что ключ к успеху — это рациональное использование каждого уголка и внимание к деталям.
Связанные вопросы и ответы:
Вопрос 1: Какие особенности планировки характерны для двушки в хрущёвке с проходной комнатой
Двушка в хрущёвке с проходной комнатой имеет несколько характерных особенностей планировки. Во-первых, общая площадь такой квартиры обычно составляет около 40-45 квадратных метров, что делает её компактной и функциональной. Во-вторых, одна из комнат является проходной, то есть через неё необходимо проходить, чтобы попасть в другую комнату или на кухню. Это может создавать определённые неудобства, особенно если в квартире проживает несколько человек. В-третьих, кухня в хрущёвках часто небольшая, но её площадь обычно составляет около 6-8 квадратных метров, что позволяет разместить все необходимые бытовые приборы. Санузел также компактный, но в отличие от более старых квартир, в хрущёвках он обычно изолирован, то есть туалет и ванная находятся в отдельных комнатах. Планировка таких квартир простая и лаконичная, что делает их популярными среди молодых семей и людей, которые ценят доступность и удобство.
Вопрос 2: Какие плюсы и минусы проживания в двушке с проходной комнатой
Проживание в двушке с проходной комнатой имеет свои плюсы и минусы. Среди плюсов можно выделить компактность и удобство планировки, а также доступную стоимость such квартир по сравнению с более современными жилыми помещениями. Кроме того, в хрущёвках часто хорошо развита инфраструктура, так как они расположены в старых районах с уже сформированной социальной и торговой инфраструктурой. Однако есть и минусы. Главным недостатком является проходная комната, через которую приходится проходить всем жильцам, что может создавать дискомфорт и нарушать приватность. Кроме того, небольшие размеры квартиры могут быть тесными для больших семей или для людей, которые любят просторные пространства. Ещё одним минусом является шумовое загрязнение, так как звуки из проходной комнаты могут доноситься в другие помещения.
Вопрос 3: Как можно внести уют и комфорт в двушку с проходной комнатой
Внести уют и комфорт в двушку с проходной комнатой можно несколькими способами. Во-первых, важно правильно организовать пространство, используя функциональную мебель и минимизируя количество ненужных предметов. Например, можно использовать встроенные шкафы и полки, чтобы сэкономить место. Во-вторых, стоит обратить внимание на освещение: использование нескольких источников света, таких как напольные лампы или бра, может создать уютную атмосферу. В-третьих, важно учесть цветовую гамму: светлые тона на стенах и потолке помогут визуально увеличить пространство и сделать квартиру более светлой. Также можно добавить текстильные элементы, такие как ковры, подушки и шторы, которые помогут создать тепло и комфорт. Наконец, не забудьте о зелени: небольшие растения или цветы могут оживить интерьер и сделать его более привлекательным.
Вопрос 4: Какие современные способы ремонта можно применить в проходной комнате
В проходной комнате можно применить современные способы ремонта, чтобы сделать её более функциональной и эстетически привлекательной. Во-первых, можно использовать современные материалы для отделки стен, такие как стеклянные панели или фотопринты, которые визуально расширят пространство. Во-вторых, стоит обратить внимание на освещение: установка светодиодных светильников илиLED-подсветки может создать современный и стильный вид. В-третьих, можно использовать многоуровневые потолки или натяжные потолки, которые помогут зонировать пространство и добавить объёма. Также можно установить современную мебель с минималистским дизайном, которая не займёт много места, но придаст комнате стильный вид. Наконец, можно добавить дизайнерские акценты, такие как геометрические узоры на полу или абстрактные картины на стенах, чтобы сделать интерьер более интересным.
Вопрос 5: Какие особенности жизни в проходной комнате могут вызвать дискомфорт
Жизнь в проходной комнате может вызвать определённые неудобства. Во-первых, проходная комната часто становится местом скопления людей, что может нарушать покой тех, кто находится в других комнатах. Например, если кто-то проходит через комнату, чтобы попасть на кухню или в ванную, это может создавать шум и отвлекать от отдыха или работы. Во-вторых, проходная комната может быть местом скопления пыли и запахов, особенно если через неё часто проходят люди с улицы. В-третьих, отсутствие приватности может стать проблемой, особенно если в квартире проживает несколько человек. Кроме того, проходная комната может быть местом, где скапливаются вещи, что может привести к захламлению и создать дополнительные неудобства. Поэтому важно организовать пространство таким образом, чтобы минимизировать эти проблемы.
Вопрос 6: Как можно увеличить полезную площадь в двушке с проходной комнатой
Увеличить полезную площадь в двушке с проходной комнатой можно несколькими способами. Во-первых, можно провести перепланировку, объединив проходную комнату с другой комнатой или кухней. Это позволит создать более просторное пространство и улучшить функциональность квартиры. Во-вторых, можно использовать компактную и многофункциональную мебель, такую как складные столы, трансформируемые диваны или встроенные шкафы, которые помогут сэкономить место. В-третьих, стоит обратить внимание на вертикальное использование пространства: установка полок, крючков или стеллажей на стены может помочь хранить вещи без захламления. Также можно использовать зеркала или глянцевые поверхности, которые визуально увеличивают пространство. Наконец, важно минимизировать количество ненужных предметов и поддерживать порядок, чтобы квартира казалась более просторной и комфортной.
Какие есть преимущества наличия проходной комнаты в двушке
Перепланировка в квартире с проходной комнатой – это самый радикальный способ улучшить пространство помещения. В советское время гостиную старались изолировать, создавая в квартирах длинные темные коридоры. Современный дизайн интерьера предлагает, наоборот, объединять помещения, отказаться от холлов, разграничивая пространство на условные функциональные зоны. Избавившись от лишних стен, можно увеличить полезную площадь помещения.
Проходная гостиная в хрущевке – маленькая, узкая и темная комната, поэтому объединение с другим помещением сделает ее более светлой и просторной, позволит с большей пользой организовать пространство. Кухня-гостиная – это уже привычный, многим полюбившийся прием расширения комнат. Увеличить пространство можно также за счет присоединения лоджии. В таком случае вы получите больше вариантов расстановки мебели, не оглядываясь на доступность выхода на балкон. Объединение кухни и спальни – редкий прием, эту зону обычно стараются изолировать, однако легкие полупрозрачные перегородки из оргстекла или воздушного текстиля предпочтительнее для сбалансированной композиции, нежели глухие стены. Из квартиры с проходным помещением можно сделать просторную студию, где изолированным останется только санузел.

Перед разработкой дизайн-проекта следует ознакомится с фото проходных комнат, чтобы сделать помещение удобным и функциональным. Любая перепланировка требует согласования в соответствующих органах, а если «лишние» стены окажутся несущими, то от подобных улучшений придется отказаться. Однако добиться гармоничного пространства можно и без сноса стен.
Как спланировать интерьер двушки с проходной комнатой
Когда места в жилище немного , на счету каждый квадратный метр! Эти идеи помогут вам организовать хранение в небольшой комнате или квартире.
В небольшой квартире или маленькой комнате нередко возникают проблемы с местами для хранения. Советы и лайфхаки из этой подборки помогут вам оптимально организовать хранение и использовать с пользой каждый метр пространства.
Подборкаждёт вас по ссылке.
1. Экономим место в шкафу: тонкие вешалки
Если в гардеробе маловато места для одежды, попробуйте сменить вешалки на тонкие. Лучше, чтобы это были не проволочные «плечики», которые деформируются сами и могут вытягивать одежду, а более прочные, например, как на фото, при этом не занимающие лишнего места.
2. Используйте стены как место для хранения
Вертикальные поверхности и в первую очередь стены — отличный способ оптимизировать хранение. Конечно, хранение на открытых стенах придётся как следует продумать, чтобы результат был не только удобным, но и выглядел эстетично.
Идеи по — в подборке по ссылке.
3. Храните мелочи в корзинах
Интерьерные корзины — незаменимые приспособления для хранения разнообразных мелочей, которые могут создавать визуальный шум в помещении.
4. Сиденье + хранение
Пуфы, диваны и другие предметы мебели с отделениями для хранения — отличное решение для небольших помещений.
12 гениальных идей для — в подборке по ссылке.
5. Журнальный столик с местом для хранения
Журнальный столик тоже может послужить местом для хранения разных вещей, от книг и журналов до пледов и подушек.
6. Используйте внутренние поверхности дверей шкафов и шкафчиков
Если конструкция шкафов и шкафчиков это позволяет, постарайтесь задействовать для хранения их дверцы с внутренней стороны.
— в подборке по ссылке.
7. Используйте вращающиеся подставки
Круглые вращающиеся подставки удобны для хранения припасов на кухне. Также подобные приспособления могут помочь в хранении бытовой химии, косметики и так далее.
8. Установите вторую штангу
В небольшой шкаф можно установить вторую штангу, нижним уровнем над верхней. Понятно, что, например, длинные пальто тут уже хранить будет неудобно, но для рубашек или других плечевых изделий такое хранение подойдёт.
— вечная проблема! Идеи из подборки по ссылке помогут вам в её решении.
Какие лучшие способы использования пространства проходной комнаты
Нельзя начать ремонт двухкомнатной квартиры хрущевки без понимания ее особенностей.
Кухня с небольшим метражом (5–6 метров).
Низкие потолки.
Одна из комнат – проходная.
Санузел и ванна совмещенные, при этом у комнаты небольшой метраж, который не позволяет смонтировать стандартную ванную.
Если отдельная кладовка.
Если квартира расположена не на первом этаже – есть балкон или лоджия.
Еще две грустные особенности «хрущевок» – очень малый метраж прихожей и плохая шумоизоляция. Впрочем, практически все недостатки квартиры можно нивелировать современным ремонтом.

Скажем еще пару слов об особенностях планировок в домах разных серий, а потом дадим рекомендации по улучшению ситуации.
Метражи и особенности планировки двухкомнатных хрущевок
Встречаются разные варианты планировок:
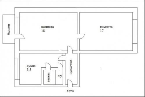
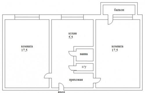
«Книжки». Квартиры этой планировки имеют площадь в 42–43 м2. Их главная особенность – кухня, спальня и гостиная идут друг за другом. Проходная комната должна выполнять роль столовой. Если семья больше двух человек, придется в ней же спать, что очень неудобно. Жирный минус такой планировки – проходная комната останется проходной, как бы и что вы ни запланировали. Самый распространенный вариант изменения в такой комнате – снос перегородок между кухней и столовой (комната превращается в уверенную студию).

«Трамваи» (они же «Павровозики») – квартиры с метражом в 47 метров. В такой планировке две спальные комнаты располагаются смежно. При этом одна из них угловая, а вторая – проходная. Чаще всего при такой планировке «отрезается» часть проходной комнаты, достраивается стена и создается своеобразный коридор (в котором дополнительно размещают системы хранения вещей).

«Бабочки» (они же «Распашонки») – квартиры с метражом в 46 м2. Сразу за прихожей размещается кухня и санузел, комнаты располагаются по бокам. Достаточно удобный вариант, главный минус – санузел находится практически на кухне.

Неважно, какая именно планировка у вашей квартиры – с помощью продуманного ремонта ее можно превратить в дом вашей мечты.
Комплексный ремонт квартир под ключ
Всё включено
В стоимость ремонта входит всё: работы, материалы, документы.
Без вашего участия
После согласования проекта мы беспокоим хозяев только при сдаче ремонта.
Цена известна заранее
Стоимость ремонта фиксируется в договоре.
Фиксированный срок ремонта
Ремонт квартиры под ключ за 3,5 месяца. Срок закреплен в договоре.
Как организовать хранение в небольшой двушке с проходной комнатой
Секрет уюта и комфорта в проходной комнате — минимум мебели. Выбирать следует только самые нужные, симпатичные и дорогие сердцу вещи. Все лишнее — громоздкую шведскую стенку, серванты от бабушек, неудобные диваны с массивными подушками — на выброс.
Если в гостиной будет располагаться телевизор, лучше отдать предпочтение плоскому экрану, который должен быть размещен на стене. Дополнительная тумба для телевизора — непозволительная роскошь в таком интерьере.
Важнейший элемент комнаты — диван, который выступает не только в роли главного места в доме, но и выполняет функцию зонирования. В некоторых случаях диван будет уместно расположить спинкой к одному из дверных проемов, а лучше к обоим, если они находятся близко друг к другу. Это позволит отделить проход от зоны отдыха: тем, кто будет сидеть на диване, не придется наблюдать перемещающихся людей, и они будут автономны относительно прохода.
При выборе дивана следует отказать от массивных моделей с пухлыми снимаемыми подушками. Простой диван-книжка или вовсе нераскладная модель — надежные варианты, которые потом можно дополнить множеством небольших подушек или уютным пледом.
Бесформенная мебель — табу для проходной гостиной. Кресла-мешки, огромные пуфы только займут излишнее пространство. Простые формы, четкие, аккуратные линии. Мебель из дерева или стекла также не должна быть слишком сложной. Легкие кресла, стеллажи, а не шкафы, стеклянный кофейный столик — только нужные для гостиной вещи без сложной конфигурации или архитектурных изысков.
Лучше отказаться от шкафов, стенок или сервантов. Если хранить вещи больше негде, и остается только гостиная, то на помощь придет мебель на заказ.

Какие типичные планировки двушки в хрущёвке
Зонирование действительно является ключевым моментом в обустройстве проходной комнаты. Основная задача - грамотно выделить проходную зону и функциональные области, сохраняя при этом целостность и гармоничность пространства. Рассмотрим подробнее методы зонирования.
Мебель. Используйте высокие шкафы или стеллажи для создания визуальных барьеров между зонами. Расположите диван или кресла спинкой к проходу, формируя уютную зону отдыха. Применяйте модульную мебель, которую легко перемещать и трансформировать при необходимости. Используйте двусторонние шкафы или стеллажи, которые могут служить и разделителем, и системой хранения. Разместите консольные столики вдоль стен в зоне прохода для экономии пространства.
Освещение. Установите потолочные светильники разной интенсивности для обозначения различных зон. Используйте направленное освещение (споты, трековые системы) для акцентирования определенных участков. Применяйте настенные бра для создания уютной атмосферы в зоне отдыха. Разместите напольные торшеры для визуального разделения пространства. Обратите внимание на светодиодные ленты для подсветки границ зон или ниш.
Напольные покрытия. Комбинируйте разные материалы: ламинат в проходной зоне и ковровое покрытие в зоне отдыха. Используйте контрастные цвета напольного покрытия для четкого разграничения зон. Применяйте декоративные вставки или бордюры на полу для обозначения границ функциональных областей. Экспериментируйте с направлением укладки напольного покрытия в разных зонах. Используйте разноуровневые полы, если это позволяет планировка помещения.
Декоративные перегородки или ширмы. Установите раздвижные перегородки для гибкого зонирования пространства. Используйте ажурные или полупрозрачные ширмы для сохранения визуальной легкости интерьера. Примените стеклянные перегородки с матовым или цветным стеклом для создания приватных зон. Установите подвесные перегородки из деревянных реек или текстиля. Присмотритесь к мобильным зеленым стенкам с живыми растениями для зонирования и улучшения микроклимата.
При зонировании проходной комнаты важно соблюдать баланс между функциональностью и эстетикой, обеспечивая удобство передвижения и комфортное использование всех зон. Комбинирование различных методов зонирования позволит создать гармоничное и практичное пространство, отвечающее всем потребностям жильцов.
Как выбрать мебель для проходной комнаты
За подсветку всей гостиной отвечает общий свет. Он должен достаточно хорошо освещать комнату, но при этом не быть слишком ярким. Как правило, общий свет реализовывается при помощи люстры или точечных светильников на потолке . Люстру можно разместить в центре гостиной или в столовой зоне, если таковая предусмотрена. Если комната достаточно большая , то одна люстра не справится с задачами достаточного освещения, поэтому при площади гостиной более 25 м 2лучше предусмотреть несколько общих источников освещения, расположенных по периметру потолка.

Учитывать нужно не только общую площадь гостиной, но и ее форму , а также высоту потолков. Так, например, если комната длинная и узкая , то даже при небольшой площади логично будет разместить в ней две люстры или два светильника симметрично относительно друг друга.

При выборе осветительных приборов нужно руководствоваться не только собственными предпочтениями и восторгом от конкретной люстры в магазине – важно продумать комфортность, безопасность и эргономичность гостиной, особенно если потолки не очень высокие. В этом случае пользуются таким правилом: расстояние от пола до нижней части люстры не должно быть меньше 2,1 м . Исключение составляют те случаи, когда люстра или светильник расположены над обеденным или журнальным столиком – высота в этом случае может быть около 1,4-1,6 м. Если при этом страдает общая освещенность гостиной, то исправить проблему можно путем точечной подсветки комнаты.

Когда вопрос с общим освещением решен, нужно переходить к другим типам подсветки, ведь общий свет не способен осветить все зоны комнаты, сделать акцент или выделить какую-то часть пространства. Именно поэтому так необходимо местное и декоративное освещение.
Какие трудности возникают при жизни в двушке с проходной комнатой
Планируя ремонт в квартире, обладатели двухкомнатных «хрущевок» сталкиваются с непростой задачей: как сделать из небольшого жилища с не слишком удачной планировкой пространство для комфортного проживания?
Препятствий на пути к цели масса: это и сложности согласования перепланировки, и материалы, из которых создано жилье, и неудачное расположение большинства зон.

Но тот, кто стремится сделать свою квартиру лучше, не унывает: даже при наличии таких, не самых лучших исходных данных, можно создать стильный и удобный интерьер.

Особенности планировки 2-х комнатной хрущевки
«Хрущевка» легко узнаваема из сотен планировок квартир. Среди особенностей – широченное окно в форме квадрата в гостиной, наличие проходной комнаты и очень маленькая кухня, едва достигающая шести «квадратов».
Среди других нюансов выделяются:
- Совмещенный санузел с небольшой ванной;
- Наличие газовой плиты на кухне;
- Большая кладовая и балкон.
В стандартных трех- и пятиэтажках отсутствуют лифт и мусоропровод. Все окна квартиры выходят на одну сторону, исключая угловые.

Минусы «хрущевок»
К недостаткам такого жилища можно отнести:
- Тонкие стены и низкий уровень шумоизоляции;
- Низкие потолки (2,55 м);
- Тесную прихожую;
- Скромную площадь квартиры в целом;
- Крохотную кухню, куда не помещается ничего кроме плиты и коротенькой столешницы.
Начальный этап ремонта
Задумав обновить собственную квартиру «времен Никиты Сергеевича» еще до начала ремонта следует предпринять ряд важных шагов:
- Свериться с планом БТИ. В ряде случаев кладовая и коридор, которые мы рассматриваем как нежилые помещения, на бумаге оказываются частью жилых зон. Это повлияет на перепланировку – расширять за их счет кухню или санузел нельзя, а вот комнаты – вполне;
- Проверить состояние проводки и труб. Ремонт – это не просто внешнее обновления жилища. «Хрущевки» строились давно, а потому полезно выяснить, в каком состоянии находятся коммуникации. Легкомысленное отношение к данному вопросу может обернуться настоящей бедой;
- Посетить надлежащие инстанции. У многих владельцев такой небольшой квартиры возникает желание снести все внутренние перегородки и перестроить все по-новому, либо вовсе остановиться на варианте студии. Но не стоит игнорировать нормы законодательства в отношении перепланировки. Правила созданы, чтобы обезопасить жителей дома, а потому их надо соблюдать;
- Оценить объем зон хранения. Сколько человек будет проживать в квартире и сколько вещей в ней предстоит хранить? Оценив данный объем, можно понять сколько шкафов и полок потребуется в квартире.