Развенчание мифа о фундаменте типа УШП: разбор основных заблуждений
- Развенчание мифа о фундаменте типа УШП: разбор основных заблуждений
- Связанные вопросы и ответы
- Что такое фундамент типа УШП
- Что такое УШП?
- Для каких построек применяют УШП
- Технология строительства УШП фундамента
- Расчет основания
- Устройство инженерных коммуникаций и теплого пола
- Вязка армакаркасов, установка опалубки
- Приемка и вибрирование бетона
- Уход за бетоном и снятие опалубки
- Цена фундамента УШП под ключ
- Советы по укладке УШП
- Преимущества УШП
- Минусы УШП
- Какие мифы существуют о фундаменте типа УШП
- Какие факторы могут влиять на работу фундамента типа УШП
- Как правильно выбрать фундамент типа УШП для конкретного здания
- Какие материалы используются для изготовления фундамента типа УШП
Развенчание мифа о фундаменте типа УШП: разбор основных заблуждений
Дом для меня — большой проект и, наверное, на сегодня самый значительный в жизни. Строиться решили, когда дети подросли, почти полтора года изучали все детали, рисовали проекты, шерстили форумы, где страх ошибки зачастую только вырастает, так как много противоположных мнений. Хотелось построить дом своей мечты — удобный, теплый и обязательно очень светлый , чтобы не сидеть при электричестве полгода, с октября по март.
Дом Большая площадь остекления — в нашем климате это всегда проблема, но отказываться от больших окон я принципиально не хотел, требование к свету было одним из ключевых моментов. В конце концов решил довериться опыту северных соседей и построить дом на фундаменте УШП (утепленная шведская плита). Это единая конструкция, в которой «зашивается» теплоизоляция, теплый пол, а заливка бетоном становится полом первого этажа.
УШП, план-схема Конечно, были определенные волнения : жена опасалась, что плита не выдержит нагрузки, что в доме будет холодно. Хорошо, что она вполне современная женщина и хотя бы не настаивала на подвале. Все остальные ее сомнения я как-то снял и взял на себя ответственность, которую, к счастью, полностью оправдал. Правда, для подстраховки решили сделать еще и камин — и романтично, и полезно на случай отключения электричества, например.На сегодня мы живем в доме седьмой год и абсолютно довольны своим жилищем. Начиная со второй после постройки зимы, живем там постоянно.УШП — идеальное решение и с точки зрения обустройства, и в плане последующей эксплуатации. Само устройство фундамента заняло всего две недели. Работала бригада из четырех человек. Все было строго по технологии: песчаное основание, дренаж, щебень, утепление XPS, армирование, прокладка труб, коллектора, теплый пол, потом все забетонировали. Никакой сложной техники не понадобилось.
Схема УШП Пол решили отделывать плиткой, ее укладывали прямо на фундамент даже без выравнивающей стяжки. Отмостку сделали с тротуарной плиткой. В доме тепло. При том, что в гостиной у меня панорамные окна общей площадью около 9 кв. м плюс второй свет, тепла от УШП хватает на весь дом. Конечно, дом и сам по себе хорошо утеплен, и стеклопакеты стоят энергосберегающие, но все эти затраты уже окупились.Для того чтобы на первом этаже держалась температура в районе +23ºC, котел на 9 кВт в холодное время года работает всю ночь, иногда в мороз включаем еще на два-три часа днем. На втором этаже при этом на пару градусов прохладнее, вполне комфортная температура даже для детей. Камин, который делали для подстраховки, теперь просто развлечение, ну и по-прежнему страховка на случай перебоев с электричеством. С учетом ночного тарифа расходы на электричество в большом доме, где есть вся бытовая техника плюс теплый пол и живут теперь уже четыре человека, не превышает 2000 руб. в месяц.Еще приятный момент — это тепловая инерция. Дом после постройки, конечно, пришлось просушивать и прогревать, но когда этот период закончился и температура в помещениях установилась, суточные перепады даже в мороз при отключенном котле не больше 2ºC. Летом эта инерция работает вместо кондиционирования: когда в доме постоянно +23ºC, заходить в него с жаркой улицы прохладно.В итоге:
- этажность: 2
- жилая площадь: 150 кв. м
- материал стен: газобетон
- утепление и отделка: ХPS «ТехноНИКОЛЬ», минеральная штукатурка
- фундамент: УШП
- регион: Владимирская область
Связанные вопросы и ответы:
Вопрос 1: Что такое миф о фундаменте типа УШП
Миф о фундаменте типа УШП - это убеждение, что существует определённый фундамент, который обеспечивает стабильность и долговечность здания. Этот миф основывается на идее, что фундамент типа УШП является наиболее надёжным и долговечным вариантом, и что любое здание, построенное на таком фундаменте, будет стоять вечно. Однако, этот миф не соответствует действительности, так как стабильность и долговечность здания зависит от множества факторов, таких как качество строительных материалов, правильность проектирования и строительства, а также от условий окружающей среды.
Вопрос 2: В каких случаях фундамент типа УШП может быть наиболее подходящим
Фундамент типа УШП может быть наиболее подходящим в тех случаях, когда строительство ведётся на грунте, который имеет высокую устойчивость к сдвигам и оползням. Также этот тип фундамента может быть полезен при строительстве на грунте, который имеет низкую прочность, так как он позволяет равномерно распределить нагрузку на большую площадь. Однако, это не означает, что фундамент типа УШП является единственным подходящим вариантом для всех типов грунтов, и в каждом конкретном случае необходимо проводить инженерные изыскания и анализы, чтобы выбрать наиболее подходящий тип фундамента.
Вопрос 3: Какие факторы могут повлиять на стабильность и долговечность здания, построенного на фундаменте типа УШП
Факторы, которые могут повлиять на стабильность и долговечность здания, построенного на фундаменте типа УШП, включают в себя качество строительных материалов, правильность проектирования и строительства, а также условия окружающей среды. Например, если строительные материалы не соответствуют требованиям, то здание может быть недостаточно прочным и стабильным. Если проект здания не был разработан правильно, то фундамент может не выдерживать нагрузку, что может привести к разрушению здания. Также важными факторами являются условия окружающей среды, такие как климатические условия, сейсмическая активность и воздействие грунтовых вод.
Вопрос 4: Какие другие типы фундаментов могут быть пригодными для строительства зданий
Помимо фундамента типа УШП, существует множество других типов фундаментов, которые могут быть пригодными для строительства зданий. Например, это могут быть свайные фундаменты, которые используются при строительстве на мягких грунтах. Также могут быть пригодными плитчатые фундаменты, которые используются при строительстве на твёрдых грунтах. Ещё одним типом фундамента может быть свай-плита, которая сочетает в себе элементы сваечного и плитчатого фундаментов. В каждом конкретном случае необходимо проводить инженерные изыскания и анализы, чтобы выбрать наиболее подходящий тип фундамента.
Вопрос 5: Как можно определить, какой тип фундамента наиболее подходящий для конкретного проекта строительства
Чтобы определить, какой тип фундамента наиболее подходящий для конкретного проекта строительства, необходимо провести инженерные изыскания и анализы. Это включает в себя оценку грунтовых условий, определение нагрузок на здание, анализ воздействия окружающей среды и другие факторы, которые могут повлиять на стабильность и долговечность здания. После проведения этих исследований можно выбрать наиболее подходящий тип фундамента, который будет обеспечивать стабильность и долговечность здания в долгосрочной перспективе.
Вопрос 6: Как можно улучшить стабильность и долговечность здания, построенного на фундаменте типа УШП
Чтобы улучшить стабильность и долговечность здания, построенного на фундаменте типа УШП, необходимо использовать качественные строительные материалы, правильно проектировать и строить здание, а также учитывать условия окружающей среды. Также можно применять дополнительные методы укрепления фундамента, такие как уплотнение грунта, установка свай или бетонных плит. Важно также проводить регулярный контроль состояния фундамента и здания, чтобы быстро выявлять и устранять возникающие проблемы.
Вопрос 7: Как избежать проблем с фундаментом типа УШП
Чтобы избежать проблем с фундаментом типа УШП, необходимо проводить инженерные изыскания и анализы, чтобы выбрать наиболее подходящий тип фундамента для конкретного проекта строительства. Также необходимо использовать качественные строительные материалы, правильно проектировать и строить здание, учитывать условия окружающей среды и проводить регулярный контроль состояния фундамента и здания. Если возникают проблемы с фундаментом, необходимо обратиться к специалистам, чтобы они быстро выявили и устранили их, предотвратив возможные последствия.
Что такое фундамент типа УШП
Что такое УШП?
УШП-фундамент представляет собой монолитное основание, выложенное из шведских плит, имеющих утепление по всей площади и периметру подошвы. Такой фундамент является готовым черновым полом для первого этажа, в него, помимо коммуникаций, можно также встраивать систему подогрева.
Плиты закладываются на небольшую глубину. Благодаря качественному утеплителю основание не промерзает. Также в материале присутствуют графитовые частицы, что повышает прочность и устойчивость плит к солнечному воздействию и тяжелым нагрузкам.
Для каких построек применяют УШП
Прежде всего утеплённая шведская плита используется при строительстве лёгких каркасных домов, бань, гаражей. Также является одним из оптимальных решений для дома из бруса, кирпичных построек, из газобетона — главное правильно рассчитать нагрузку. Фундаменты УШП можно использовать на участках с проблемным грунтом, поскольку они не дают усадку.
Такие элементы могут применя??ься, например, в домах, размещенных в зонах с суровыми климатическими условиями, где наблюдается низкий температурный режим и повышенная влажность почвы в весенний и осенний период, ведь эти фундаменты устойчивы к морозу и защищают строение от тепловых потерь.
Также они идеально подходят и для зданий, в которых планируется нетрадиционное отопление с применением водяного обогрева. Тепловые магистрали устанавливают непосредственно внутри плит, и они передают тепловую энергию от носителя на всю поверхность основания.
Технология строительства УШП фундамента
УШП-фундамент широко применяется в современном строительстве, он обладает множеством достоинств и его можно легко установить своими руками. Так как шведские плиты в своей конструкции имеют качественный утеплитель, то основа здания получается теплой и не требует дополнительной укладки изоляции, что экономит не только время выполнения работ, но и финансы. Чтобы самостоятельно выполнить такой вид фундамента, необходимо последовательно осуществить некоторые этапы работ.
Главными этапами в формировании утеплённой шведской плиты являются:
- разметка участка согласно действующим строительным нормативам;
- вынос осей фундамента при помощи лазерного нивелира для идеально перпендикулярных углов, исключения перекосов;
- устройство инженерных коммуникаций строго по инженерно – конструкторскому проекту;
- вязка армокаркаса строго по конструкторской схеме и согласно ГОСТ 14098-91;
- применение бетона на шлаке от проверенных производителей, маркой не ниже М350;
- трамбовка глубинными вибраторами для удаления пустот и повышения прочности бетона;
Расчет основания
Перед тем как начинать монтаж УШП, необходимо произвести предварительные расчеты. При этом обязательно нужно принимать во внимание такие факторы, как влияние осадков, нагрузка, которая будет приходиться на конструкцию, и особенности грунтовой поверхности.
Поэтому первым делом нужно определить тип почвы, изучить расположение грунтовых вод, а также понять, насколько глубоко может промерзать земля. При расчетах главное составить проект с обозначением толщины каждого слоя фундамента.
Чтобы правильно все рассчитать, во внимание необходимо брать такие данные:
- общая площадь основания;
- толщина песчаного слоя;
- длина и высота несущих ребер;
- вес и объем бетонной смеси.
Для разметки участка используем современные лазерные нивелиры, что гарантирует идеально прямые углы, высокоточный перенос проектных точек и осей. Трамбовку песчаной подушки осуществляем одновременно методом пролива и воздействием виброплиты. Работы занимают 1-3 дня.
Устройство инженерных коммуникаций и теплого пола
Для прокладки коммуникаций в песчано-гравийной подушке копаются траншеи, согласно конструкторским чертежам. Туда укладываются трубы канализации, водоснабжения, электрокабель. Один конец коммуникаций выводится на поверхность плиты дома, на другом обустраиваются закладные для последующего подключения к центральным сетям. На песчаную подушку укладывается экструдированный пенополистирол, обычно в три уровня. Каждый слой скрепляется между собой специальным клеем. Боковые стороны по опалубке тоже закрываются утеплителем, образуя чашу. Далее по всей площади монтируются трубы тёплого пола. В зависимости от конструкторских решений они могут располагаться прямо на утеплителе, или поверх армокаркаса. Выполняется монтаж коллектора. Все выведенные наружу трубы утепляются кожухами.
Выполняем тёплый пол из многослойных труб поперечного шитого полиэтилена. Они выдерживают большие температурные нагрузки и давление. Все кабели монтируются в ПНД гофре.
Вязка армакаркасов, установка опалубки
Монтаж опалубки – обязательный этап строительства УШП фундамента. По контуру будущего дома уже располагаются плиты пенополистирола. Но под давлением бетона они легко разрушатся. Установка щитовой опалубки по всему периметру исключает этот риск. В зависимости от проекта, возможно использование несъёмной опалубки из других материалов. Фундамент утеплённая шведская плита предполагает сложную схему армирования. По всей площади плиты размещается одноуровневая сетка из стальной арматуры. Под планируемыми несущими стенами обустраиваются рёбра жёсткости. Схема вязки, параметры армокаркаса определяются конструктором. Обычно это два уровня по 3-4 жилы, скреплённые прямоугольными хомутами каждые 15-20 см.
Приемка и вибрирование бетона
Перед заливкой бетона удаляется мусор, проверяются коммуникации. Так как площадь большая, заливка выполнятся при помощи бетононасоса. Это сокращает время заполнения, обеспечивает равномерное распределение раствора. Для улучшения прочности монолита, а также сокращения сроков его усадки бетон трамбуется глубинными вибраторами. По завершению заливки ровность плиты проверяется лазерным уровнем. Затем поверхность площадки разравнивается большой гладилкой.
Перед заливкой бетона удаляется мусор, проверяются коммуникации. Так как площадь большая, заливка выполняется при помощи бетононасоса. Это сокращает время заполнения, обеспечивает равномерное распределение раствора. Для улучшения прочности монолита, а также сокращения сроков его усадки бетон трамбуется глубинными вибраторами. По завершению заливки ровность плиты проверяется лазерным уровнем. Затем поверхность площадки разравнивается большой гладилкой.
Уход за бетоном и снятие опалубки
Сразу после заливки бетон закрывается плотным пол??этиленом для защиты от осадков и потери влаги. Конструкция оберегается от механических воздействий. Чтобы поддерживать оптимальную влажность монолит регулярно увлажняется. Опалубка снимается, когда бетон набирает достаточную прочность: через 7 -14 дней. Площадка плиты шлифуется затирочной машиной. Такое основание не нуждается в дополнительной стяжке. Можно сразу приступать к монтажу чистового напольного покрытия.
Цена фундамента УШП под ключ
Стоимость за квадратный метр рассчитывается на основе конструкторской документации. В ней определяются глубина залегания, высота подушки, количество бетона, арматуры, утеплителя, цена инженерных систем, наличие или отсутствие дополнительных элементов (крыльцо, отмостка, эркер).
Советы по укладке УШП
В последнее время при сооружении новых зданий стараются применять инновационные технологии – это касается не только строительства каркаса, но и фундамента. Большинство застройщиков для установки основания выбирают шведские панели, так как они обладают отличными эксплуатационными характеристиками и имеют положительные отзывы. Воздвигая такой фундамент, стоит учесть некоторые рекомендации специалистов.
- Начинать работу нужно с проектирования. Для этого определяется план здания, выбирается материал для кровли и стен, так как от этих показателей зависит нагрузка на основание. Важно также рассчитать ширину фундамента под несущими стенами. Лучше всего проектирование доверить опытным специалистам, но если имеются личные навыки, то с этим можно справиться и самостоятельно.
- Во время монтажа важно обратить внимание на правильность размещения плит, особенно это касается тех случаев, когда материал имеет не прямоугольную, а сложную геометрию.
- Чтобы затраты на последующую отделку здания были небольшими, поверхность будущих плит нужно предварительно выровнять.
- Толщину шведских плит определяют индивидуально для каждого проекта, так как она напрямую зависит от нагрузок.
- Важным моментом при закладке УШП-фундамента считается обустройство дренажной системы. Если ее выполнить с ошибками, то возможны проблемы с отводом грунтовых вод.
- Выполняя монтаж труб в фундамент, необходимо заложить несколько дополнительных каналов и кабелей. Они пригодятся в том случае, если в будущем понадобится проложить новую систему коммуникаций.
- После установки теплого пола перед заливкой бетоном необходимо проверить качество отопления. Для этого трубы наполняют водой, и выполняется опрессовка. Если нарушена герметизация, то появится протечка, которую придется устранить. Давление в системе теплых полов должно быть ?? диапазоне 2,5-3 атм.
Плиты утеплителя следует укладывать в шахматном порядке – в противном случае совмещенные стыки послужат причиной появления холода.
Преимущества УШП
У шведской плиты есть несколько неоспоримых плюсов:
- Скорость монтажа. При наличии всех материалов и четкого проекта небольшая опытная бригада способна возвести фундамент всего за 2 недели. С учетом каждого слоя, коммуникаций, теплого пола и других слоев.
- Экономия в будущем. Главная цель «теплого» фундамента – сократить расходы на отопление. И шведский вариант справляется с задачей на 100%. Если учесть, что плита не требует никакого обслуживания и простоит без нареканий десятки лет, фундамент способен окупиться за счет снижения коммунальных платежей.
- Универсализм. В плане надежности и стойкости у плитного фундамента практически нет конкурентов. Поэтому УШП применяют на любом грунте и в северных регионах, при высоком уровне подземных вод и неустойчивой почве.
- Удобство отделки. Пол первого этажа получается идеально ровным на всем протяжении. Он не требует никакой дополнительной обработки – можно сразу укладывать плитку или другое напольное покрытие.
- Нет нужды в тяжелой технике. Специальные машины пригодятся только при земляных работах – они значительно ускорят процесс. Но это необязательные траты.
Минусы УШП
Недостатки:
- стоимость обустройства;
- техническая сложность расчётов и реализации;
- низкая ремонтопригодность в случае разрушения вмонтированных в бетон коммуникаций/li>
- пенополистирол в основании фундамента может стать средой обитания грызунов, муравьёв;
- поскольку все коммуникационные линии закладываются заранее, серьёзная перепланировка дома в будущем будет невозможна.
Особой проблемой этого типа фундамента является сложность реализации, где минимальный просчёт исправить будет практически нереально. В остальном утеплённая шведская плита — это современное, высокотехнологичное решение для строительства дома, являющееся заманчивой альтернативой обычной монолитной плиты.
Какие мифы существуют о фундаменте типа УШП
Прикладная методика заключается в выборе решения, удовлетворяющего требованиям механической безопасности без выполнения инженерного анализа методами численного, компьютерного моделирования.
Для зданий до двух этажей включительно с применением фундамента типа УШП, в основании которых грунт с минимально рекомендованными низкими значениями физико-механических характеристик, с песчаной подсыпкой толщиной 0,3 м, рекомендуется устройство надземного несущего каркаса только из деревянных конструкций без дополнительных мероприятий. При этом ширина и высота опорной части ребра составляет 0,3 м, а для внутреннего ребра ширина УШП — 0,4 м, высота 0,2 м.
Для зданий до двух этажей включительно с применением УШП, с каменными вертикальными конструкциями и железобетонными перекрытиями, независимо от типа кровли, в основании которых грунт с низкими значениями физико-механических характеристик, необходимы дополнительные мероприятия подготовки основания. В таком случае необходимо усиление примыкающей грунтовой толщи, испытывающей максимальные напряжения.
Под всеми основными рёбрами УШП требуется устройство песчаной подушки толщиной не менее 0,7 м, для тонкостенной части толщина подушки 0,3 м. Ширина кровли подушки рекомендуется не менее 0,6 м, и выполняется с откосом под 45° для эффективного рассеивания возникающих внутренних напряжений в грунте. При этом ширина внешнего ребра фундамента должна быть не менее 0,75 м (в случае с решениями с облицовочным кирпичом), а внутреннего – не менее 0,6 м.
Какие факторы могут влиять на работу фундамента типа УШП
УШП хороша для каркасных гаражей, бань. Там где пусть пропучит, несильно если. А так, кроме возможного перерасхода бетона, плюсов особых не видать.
- Согласно практики строительства утепленных мелкозаглубленных фундаментов, в качестве такого фундамента может использоваться как плита с полами по грунту, так и ленточный фундамент и постоянный деревянный фундамент , поэтому первое утверждение верно, а второе не совсем, УШП используется для домов, где средняя температура не опускается ниже 18°С (зимой можно уехав, выключить отопление, но не более, чем на 3 недели). Это означает, что для гаражей и бань УШП совсем не подходит, хотя в них тоже можно утеплить плиту снизу.
Ну раз в УШП утепление решает, то почему бы не сделать УРЛ (утепленную русскую ленту)?
В бетоне некоторая экономия, в арматуре существенная экономия, результат тот же.
Надо чтобы шведская была. На худой конец финская. И домик каркасный запилить.
Под плиту нужно готовить основание. На плодородный грунт вы ее не поставите, правильно? Значит 50-60 см грунта долой. Сама плита толщиной 30 см, плюс под ней утеплитель 10 см (хотя под пол по грунту и 5 см будет достаточно - это из неявной экономии) итого 40 см. Получается у вас уровень чернового пола минус 10 см от уровня земли. Что делаем? делаем подушку. Но не только из-за высоты, но и по технологии положено замещение грунта на непучинистый. Под пятно застройки+под отмостку. А это 20 м3 щебня/песка (или приблизительно 25 т.р.) на каждые 10 см подъема. Подняли на 40 см - 100 т.р. выложили, на 60 см - 150 т.р. И это только за материал, без укладки, без трамбовки. Вы скажете, позвольте, так под полы по грунту тоже поднимать основание! Да, но это не 20 м3, а 14 м3 за 10 см. Кроме того мы можем плитами перекрытия перекрыться и все равно останемся не только с высоким полом но и с солидной экономией в кармане.
Плита конечно же имеет право на существование. Но это НЕ универсальное, НЕ дешевое, НЕ экономичное решение, как многие ее преподносят.
Как правильно выбрать фундамент типа УШП для конкретного здания
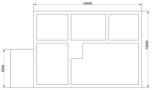
Дом для меня — большой проект и, наверное, на сегодня самый значительный в жизни. Строиться решили, когда дети подросли, почти полтора года изучали все детали, рисовали проекты, шерстили форумы, где страх ошибки зачастую только вырастает, так как много противоположных мнений. Хотелось построить дом своей мечты — удобный, теплый и обязательно очень светлый , чтобы не сидеть при электричестве полгода, с октября по март.
Дом Большая площадь остекления — в нашем климате это всегда проблема, но отказываться от больших окон я принципиально не хотел, требование к свету было одним из ключевых моментов. В конце концов решил довериться опыту северных соседей и построить дом на фундаменте УШП (утепленная шведская плита). Это единая конструкция, в которой «зашивается» теплоизоляция, теплый пол, а заливка бетоном становится полом первого этажа.
УШП, план-схема Конечно, были определенные волнения : жена опасалась, что плита не выдержит нагрузки, что в доме будет холодно. Хорошо, что она вполне современная женщина и хотя бы не настаивала на подвале. Все остальные ее сомнения я как-то снял и взял на себя ответственность, которую, к счастью, полностью оправдал. Правда, для подстраховки решили сделать еще и камин — и романтично, и полезно на случай отключения электричества, например.На сегодня мы живем в доме седьмой год и абсолютно довольны своим жилищем. Начиная со второй после постройки зимы, живем там постоянно.УШП — идеальное решение и с точки зрения обустройства, и в плане последующей эксплуатации. Само устройство фундамента заняло всего две недели. Работала бригада из четырех человек. Все было строго по технологии: песчаное основание, дренаж, щебень, утепление XPS, армирование, прокладка труб, коллектора, теплый пол, потом все забетонировали. Никакой сложной техники не понадобилось.
Схема УШП Пол решили отделывать плиткой, ее укладывали прямо на фундамент даже без выравнивающей стяжки. Отмостку сделали с тротуарной плиткой. В доме тепло. При том, что в гостиной у меня панорамные окна общей площадью около 9 кв. м плюс второй свет, тепла от УШП хватает на весь дом. Конечно, дом и сам по себе хорошо утеплен, и стеклопакеты стоят энергосберегающие, но все эти затраты уже окупились.Для того чтобы на первом этаже держалась температура в районе +23ºC, котел на 9 кВт в холодное время года работает всю ночь, иногда в мороз включаем еще на два-три часа днем. На втором этаже при этом на пару градусов прохладнее, вполне комфортная температура даже для детей. Камин, который делали для подстраховки, теперь просто развлечение, ну и по-прежнему страховка на случай перебоев с электричеством. С учетом ночного тарифа расходы на электричество в большом доме, где есть вся бытовая техника плюс теплый пол и живут теперь уже четыре человека, не превышает 2000 руб. в месяц.Еще приятный момент — это тепловая инерция. Дом после постройки, конечно, пришлось просушивать и прогревать, но когда этот период закончился и температура в помещениях установилась, суточные перепады даже в мороз при отключенном котле не больше 2ºC. Летом эта инерция работает вместо кондиционирования: когда в доме постоянно +23ºC, заходить в него с жаркой улицы прохладно.В итоге:
- этажность: 2
- жилая площадь: 150 кв. м
- материал стен: газобетон
- утепление и отделка: ХPS «ТехноНИКОЛЬ», минеральная штукатурка
- фундамент: УШП
- регион: Владимирская область
Какие материалы используются для изготовления фундамента типа УШП
Ну а теперь вернемся к вопросу о наших фундаментах. Первый тип, о котором я хотел бы рассказать – УШП. Если вы собираетесь строить дом, значит, вы уже слышали об этой разновидности конструкций. Она стремительно набирает популярность в нашей стране, и поверьте моему экспертному мнению, это вполне обосновано. Давайте разбираться, что же из себя представляет УШП:
- Фундамент – это бетонный монолит , дополненный массивной утепляющей прослойкой (до 30см).
- В этом монолите уже проложены все коммуникации.
- По всей площади монолитного фундамента проложены теплые полы, которые становятся полноценной частью общей системы отопления.
- Предфинишная облицовка цокольной части плоским шифером.
- Установленная ливневая канализация с эффективным дождеприемником.
- Дренаж области постройки или же (по желанию клиента) всего участка.
Проще говоря, УШП – это комплексная конструкция, после монтажа которой можно сразу же приступать к строительству. Чтобы вы лучше понимали особенности этого многокомпонентного фундамента, я кратко расскажу об этапах его монтажа и материалах, которые понадобятся.

Фото 1. Подготовка основания под УШП
Прежде всего, выполняется подготовка основания (этот этап обязателен для всех типов грунтов). Растительный слой полностью снимается. В обустроенном котловане создается так называемая подушка. Для этого на дно котлована укладывается геотекстильная прослойка, на которую насыпается песок. Для максимального повышения плотности песочного слоя используется спец техника для трамбовки и проливка водой.
Одновременно с организацией подушки обустраивается прифундаментная дренажная система. На этом же этапе в толще песка прокладываются канализационные трубы и водопровод.

Фото 2. Монтаж теплоизоляционной прослойки
Следующий этап – монтаж теплизоляционной прослойки. По периметру несущих стен укладывается ППС-30, а внутри самой постройки можно использовать ППС-16. Трубы для горячего водоснабжения необходимо прокладывать в утепляющем слое.

Фото 3. Монтаж опалубки
Одновременно с этим этапом строительства домов из газоблока под ключ можно установить опалубку из L-образных блоков (чтобы немного упростить строительный процесс я советую делать L-блоки из того же материала ППС-30) и сделать облицовку цоколя плоским шифером.

Фото 4. Армирование

Фото 5. Монтаж коммуникаций

Фото 6. Заливка фундамента
Следующий, не менее важный этап – армирование стяжки и усилений для стен. После этого выполняется укладка теплого пола заливка фундамента бетоном. Я рекомендую не экономить на этом этапе и использовать качественный бетон марки В30 П-4. Толщина бетонной прослойки должна быть не меньше 10-20 см (берется из проектной документации). Отшлифованная поверхность бетона – это и будет наш черновой пол.

Фото 7. Отмостка и цоколь
Конечно, как и любой фундамент УШП имеет свои недостатки, о которых вам нужно знать, прежде, чем сделать выбор в пользу той или иной конструкции:
- После заливки бетоном будет очень трудно сделать перепланировку или же изменить разводку коммуникаций. Хотя, таким недостатком обладают все разновидности бетонных фундаментов.
- С таким типом фундамента дом будет поднят над уровнем земли минимально. Учитывая высокую энергоэффективность фундамента, на микроклимат эта особенность влиять не будет. Однако, как показывает практика, для многих моих заказчиков минимальный «отрыв» от уровня земли действительно считается недостатком. Решить его можно путем увеличения песчаной прослойки.