Как обставить двушку в хрущевке для комфортной семейной жизни
- Как обставить двушку в хрущевке для комфортной семейной жизни
- Связанные вопросы и ответы
- Какие есть преимущества двухкомнатной квартиры в хрущевке для семьи
- Как оптимально расставить мебель в маленькой двушке
- Какова типичная планировка двухкомнатной хрущевки
- Как увеличить полезную площадь в двушке
- Какие лучшие способы разделить комнату в хрущевке
- Как выбрать мебель для маленькой двушки
- Какие основные сложности при жизни в двушке с семьей
- 1. Экономим место в шкафу: тонкие вешалки
- 2. Используйте стены как место для хранения
- 3. Храните мелочи в корзинах
- 4. Сиденье + хранение
- 5. Журнальный столик с местом для хранения
- 6. Используйте внутренние поверхности дверей шкафов и шкафчиков
- 7. Используйте вращающиеся подставки
- 8. Установите вторую штангу
- Как улучшить акустику в двушке
Как обставить двушку в хрущевке для комфортной семейной жизни
Хрущевки — это типовые квартиры, которые были построены в середине XX века и до сих пор остаются популярными благодаря своей доступности и компактности. Однако обустройство такой квартиры для комфортной семейной жизни требует тщательного подхода. В этой статье мы рассмотрим основные аспекты, которые помогут вам создать уютное и функциональное пространство в вашей двушке.
Планировка и зонирование пространства
Одним из ключевых моментов в обустройстве хрущевки является правильная планировка. Несмотря на небольшую площадь, важно разделить пространство на зоны, которые будут выполнять разные функции. Это позволит создать комфортные условия для жизни всех членов семьи.
Открытая планировка
Открытая планировка — это современный тренд, который позволяет объединить кухню, гостиную и столовую в одно пространство. Такой подход делает квартиру визуально больше и создает ощущение простора. Однако важно учитывать, что открытая планировка может быть шумной, поэтому если в вашей семье много шумных домочадцев, стоит подумать о частичном разделении пространства.
| Плюсы открытой планировки | Минусы открытой планировки |
|---|---|
| Визуальное увеличение пространства | Шум |
| Удобство общения | Отсутствие приватности |
| Легкость перемещения | Трудности с организацией хранения |
Зонирование с помощью мебели
Если вы хотите сохранить приватность в отдельных зонах, можно использовать мебель для разделения пространства. Например, можно поставить шкаф или полку между кухней и гостиной, чтобы разделить эти зоны. Также можно использовать разные цвета стен или напольных покрытий для визуального разделения пространства.
Выбор мебели
Мебель играет ключевую роль в обустройстве квартиры. В хрущевке важно выбирать мебель, которая будет компактной, но при этом функциональной и удобной.
Многофункциональная мебель
Многофункциональная мебель — это идеальный выбор для небольших квартир. Например, можно выбрать диван с встроенным хранением или стол, который превращается в обеденный стол. Такие решения помогут сэкономить пространство и сделать квартиру более функциональной.
Советы по выбору мебели
- Выбирайте мебель с минимумом деталей и простыми формами.
- Предпочтите светлые тона, чтобы визуально увеличить пространство.
- Используйте вертикальное пространство — ставьте высокие шкафы и полки.
- Обращайте внимание на качество материалов — мебель должна быть прочной и долговечной.
Хранение и организация
В небольшой квартире важно тщательно продумать систему хранения. Это поможет порядок и сделать пространство более комфортным.
Использованиеeachных углов
Угловые пространства в квартире часто остаются незадействованными. Однако их можно использовать для организации хранения. Например, можно установить угловые полки или шкафы, которые помогут разместить необходимые вещи.
Советы по организации хранения
- Используйте контейнеры и корзины для хранения мелочей.
- Установите вешалки и крючки на задней стороне дверей.
- Разделите шкафы на секции для разных типов вещей.
- Используйте поддоны и ящики для хранения под кроватью.
Современные решения для хрущевки
Современные технологии и дизайнерские решения могут значительно улучшить комфорт жизни в хрущевке. Вот некоторые из них:
Умное освещение
Умное освещение позволяет регулировать уровень света в зависимости от времени суток и ваших потребностей. Это не только удобно, но и помогает создать уютную атмосферу в квартире.
Минимализм в интерьере
Минималистский стиль идеально подходит для небольших квартир. Он помогает визуально увеличить пространство и сделать интерьер более чистым и современным.
Использование зеркал
Зеркала могут помочь визуально увеличить пространство и добавить света в комнату. Размещайте их напротив окон или в углах, чтобы создать иллюзию большего пространства.
Итоги
Обустройство двушки в хрущевке для комфортной семейной жизни требует тщательного подхода и творческого мышления. Используя современные решения, правильно выбирая мебель и организуя пространство, вы можете создать уютное и функциональное жилое пространство, которое будет удобным для всех членов семьи.
Связанные вопросы и ответы:
Вопрос 1: Какие плюсы и минусы проживания в двухкомнатной хрущевке для семьи
Двухкомнатная квартира в хрущевке может быть удобным вариантом для небольшой семьи. Основные плюсы включают компактность и удобство планировки, что позволяет легко контролировать пространство и поддерживать порядок. Также хрущевки часто расположены в центрах городов, что обеспечивает удобство в доступе к инфраструктуре. Однако минусы могут включать ограниченную площадь, что может быть тесно для семьи из трёх или более человек. Кроме того, старая планировка может требовать ремонта и современного обустройства для комфортного проживания.
Вопрос 2: Какая планировка будет оптимальной для двухкомнатной хрущевки для семьи
Оптимальная планировка для двухкомнатной хрущевки для семьи должна быть функциональной и удобной. Можно рассмотреть разделение пространства на зоны: спальня, гостиная, кухня и детская. Использование трансформируемой мебели, такой как кровати-шкафы или раздвижные двери, может помочь сэкономить пространство. Также важно предусмотреть место для хранения, например, встроенные шкафы или полки. Объединение кухни и гостиной может создать уютное и просторное пространство для общего времяпрепровождения.
Вопрос 3: Какова стоимость двухкомнатной хрущевки для семьи в сравнении с другими вариантами
Стоимость двухкомнатной хрущевки может варьироваться в зависимости от города и района. В целом, хрущевки часто дешевле, чем квартиры в новых домах, что делает их привлекательным вариантом для семей с ограниченным бюджетом. Однако необходимо учитывать, что ремонт и обустройство могут требовать дополнительных вложений. В сравнении с арендой, покупка хрущевки может быть более выгодной в долгосрочной перспективе, особенно если учитывать возможность дальнейшей продажи или сдачи в аренду.
Вопрос 4: Как можно современно оформить интерьер двухкомнатной хрущевки для семьи
Современное оформление интерьера двухкомнатной хрущевки для семьи может быть выполнено в различных стилях, таких как минимализм, скандинавский стиль или лофт. Использование светлых цветов на стенах и современной мебели может визуально увеличить пространство. Также важно учесть функциональность: например, использовать встроенные шкафы и полки для хранения. Добавление растений и текстильных элементов, таких как ковры и подушки, может сделать интерьер уютным и комфортным. Не забудьте про современное освещение, которое может помочь создать необходимую атмосферу.
Вопрос 5: Какие проблемы с шумоизоляцией могут возникнуть в хрущевке и как их решить
В хрущевках часто возникают проблемы с шумоизоляцией из-за тонких стен и потолков. Это может быть особенно неприятно для семей с маленькими детьми, которые нуждаются в тишине для сна. Для решения этой проблемы можно использовать шумопоглощающие материалы, такие как акустические панели или двойные окна. Также можно заменить двери на более толстые и герметичные, что поможет снизить уровень шума. Ещё одним вариантом является использование ковров и толстых штор, которые могут частично поглотить шум.
Вопрос 6: Какие перспективы у покупки двухкомнатной хрущевки как инвестиции
Покупка двухкомнатной хрущевки может быть выгодной инвестицией, особенно если квартира находится в хорошем районе с развитой инфраструктурой. Хрущевки часто пользуются спросом среди реноваторов, которые могут transforming их в современные и стильные пространства. Кроме того, стоимость таких квартир может расти с течением времени, особенно если проводится качественный ремонт. Однако важно учитывать, что некоторые хрущевки могут требовать значительных вложений в ремонт, что может отразиться на окупаемости инвестиций. В целом, покупка хрущевки может быть хорошим вложением средств, особенно если вы планируете сдавать её в аренду или продавать после ремонта.
Вопрос 7: Как можно расширить жилую площадь в двухкомнатной хрущевке
Расширение жилой площади в двухкомнатной хрущевке может быть достигнуто несколькими способами. Во-первых, можно рассмотреть возможность пристройки балкона или лоджии, если это разрешено местными строительными нормами. Во-вторых, можно объединить кухню и гостиную, чтобы создать более просторное пространство. Также можно использовать вертикальное пространство, например, установив многоуровневые полки или шкафы. Ещё одним вариантом является использование трансформируемой мебели, которая позволяет максимально эффективно использовать доступное пространство.
Какие есть преимущества двухкомнатной квартиры в хрущевке для семьи

Расстановка мебели в двухкомнатной квартире преимущественно зависит от числа домочадцев, их возраста и интересов. В любом случае возникает необходимость организации пространства таким образом, чтобы каждый человек мог беспрепятственно заниматься любимыми вещами: хобби или саморазвитием, полноценно отдыхать после тяжелого трудового дня, не мешая остальным. Традиционно одна из комнат в квартире используется в качестве гостиной, а вторая – как спальня (если проживающих максимум двое) или детская (если в семье есть ребенок).
Если вы намерены использовать свободное пространство квартиры функционально, то начните планировать расстановку предметов интерьера заблаговременно. Не действуйте импульсивно, не делайте окончательный выбор в мебельном магазине. Внимательно изучите идеи на фото готовых проектов, прислушайтесь к внутренним ощущениям, продумайте цветовую гамму, стиль, способ удовлетворить запросы домочадцев без ущерба для остальных членов семьи. Вам следует снять точные мерки комнат, а после – создать идентичный макет в уменьшенном масштабе на листе бумаге или с помощью специального редактора на компьютере. Проектируйте смело, допущенную ошибку всегда можно исправить, и куда легче это сделать на предварительном шаблоне, а не в реальных условиях. К тому же это исключит вероятность траты дополнительных средств, личного времени, сил и других ресурсов. Первоначально стоит продумать систему коммуникаций, чтобы избежать протягивания всевозможных удлинителей или необходимости переносить бытовые приборы и технику в другую часть комнаты из-за отсутствия розетки в нужном месте.
Как оптимально расставить мебель в маленькой двушке
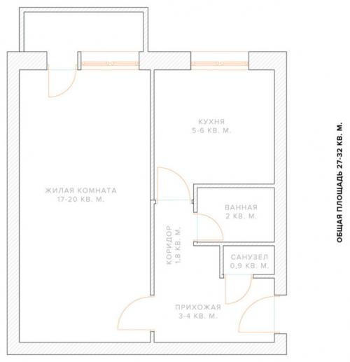
Есть несколько типичных планировок двухкомнатных квартир. Они отличаются по размерам, расположению помещений и другим характеристикам. Квартиры подобного типа строили на протяжении долгого времени, поэтому при их сооружении применяли разные материалы и технологии. Из-за этого 2 похожих жилья могут иметь достаточно разные характеристики и цену на рынке.
Книжка
Данный тип планировки подразумевает наличие проходного помещения. Площадь жилья — до 41 м². Санузел совмещенный, кухня маленькая. Грамотная планировка такого жилья вращается вокруг использования гостиной: она достаточно большая поэтому занимает практически половину метража.

Планировочное решение квартиры 2 комнатной хрущевки с проходными комнатами с размерами ( расположение комнат по типу -книжка) серия 1-434 год постройки — 1959г.
Трамвайчик
Это планировка квартиры 2 комнатной хрущевки с проходными комнатами расположенными друг за другом, как вагоны в трамвае. Размер жилья сравнительно большой — до 48 м². Помимо жилых площадей 9-17 м², жилище включает кухню, санузел, небольшую прихожую. При планировке важно грамотное зонирование обоих жилых зон.
Распашонка
Это планировка квартиры 2 комнатной хрущевки с изолированными комнатами, в которой комнаты расположены по обе стороны от коридора. Такая схема планировки считается удачной, поскольку личные и общие пространства жильцов располагаются симметрично и изолированны друг от друга. Почти всегда хрущевка распашонка 2 комнатная имеет балкон. Площадь двухкомнатной квартиры в хрущевке — до 46 м².
Какова типичная планировка двухкомнатной хрущевки
Сабада Василий Васильевич
Многие новоселы при проведении ремонта в новой квартире приобретенную в новостройке задаются вопросом как увеличить полезную площадь квартиры с минимальными затратами.
Первый вариант решения этого вопроса, это использование определенных приемов и материалов при отделки квартиры.
1) Например чтобы визуально увеличить высоту потолков используют обои с вертикальними рисунками, а горизонтальные узоры помогут сделать пространство шире.
2) Если вы приняли решение монтировать в квартире натяжные потолки, что само собой подразумевает уменшение и так не большой высоты, то лучше стоит отказаться от установки класических люстр. В данном случае идеальным решением будет использование встраиваемых точечных светильников, которые занимают минимум места, легко монтируются в натяжные потолки и просты в эксплуатации.
3) Также многим известный и распространенный способ экономии пространства это оборудование шкафа-купе. Таким способом Вы сэкономите уйму места в квартире, т.к. такие шкафы очень функциональны и вместительны. Не лишнем будет установить на дверях такого шкафа зеркала. Это визуально увеличит пространство Вашей комнаты почти в двое!
4) Один из самых острых вопросов, которому стоит уделить особое внимание, это обустройство кухни. При небольшой площади кухни приходится экономить пространство как ни где. В таком случае поможет в первую очередь стол-трансформер, который в любой момент можно разложить и так же убрать когда он будет мешать. В малогабаритных кухнях использование пространства подоконников будет очень не плохим решением, здесь можно оборудовать дополнительную столешницу. На ряду с остальным оптимизировать пространство поможет наличие рейлинга с крючками. На него можно разместить кухонную утварь которой Вы наиболее часто пользуетесь. Например любимую сковородку или кружку!), а свободное место в ящиках использовать под продукты. Стоит завести прямоугольные контейнеры для сыпучих продуктов, таким образом их гораздо удобней хранить.
5) Для молодых семей у кого двое и более детей прекрасным решением станет использование двух-ярусной кровати и оборудования общей рабочей зоны для уроков. Если нет возможности установить шкаф для вещей. можно оборудовать ящики под кроватью и хранить вещи там! Ведь под кроватью так много места и почти всегда скапливается куча хлама!!!
6) Кстати о хламе! Старайтесь как можно меньше вещей хранить в квартире. Если Вы ими уже давно не пользуетесь, актуальным будет их продать. И место освободите и заработаете!
Вот одни из самых действенных и полезных советов по обустройству не большой квартиры в новостройке. Но конечно есть и более радикальные методы, которые требуют больших вложений и более трудоемки. Такие как перепланировка квартиры. Но этот вопрос требует отдельного внимания. Этот вопрос мы с Вами разберем в ближайшем будущем!
Компания "Союз Застройщиков" - единый отдел продаж новостроек Саратова и Энгельса. Экспертная информация по любым вопросам в недвижимости и сама актуальная информация!
ВСЕ УСЛУГИ ДЛЯ КЛИЕНТОВ БЕСПЛАТНО!!!
Как увеличить полезную площадь в двушке
Несмотря на скромные габариты, существует ряд возможных примеров трансформации однушки.
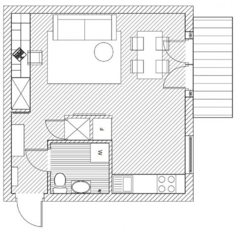
Хрущевка с двумя окнами
Квартира с балконом и двумя окнами, является угловой. Хрущевка с подобной планировкой может представлять собой не самый лучший вариант или наоборот, предоставить большое количество интересных идей перепланировки.



На фото пример перепланировки угловой хрущевки однушки с двумя окнами.
Хрущевка с одним окном
Однушки, имеющие одно окно и балкон, встречаются в кирпичных домах серии 1-511, в панельных застройках серии 1-515 и прочих. В таких квартирах присутствует раздельный санузел и коридор. В хрущевках с другой планировкой данное пространство представляет жилую комнату, что создает ограничение при переделке жилья.



На фото перепланировка однокомнатной квартиры хрущевки 30 кв с одним оконным проемом.
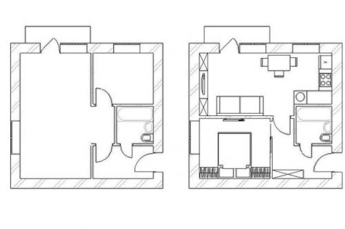
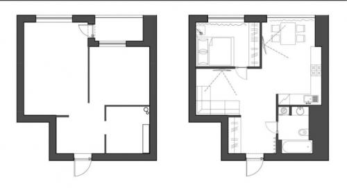
Перепланировка из 1-комнатной в двухкомнатную хрущевку
Самый простой и бюджетный способ перепланировки - установить гипсокартонную перегородку и сделать в ней дверной проем. Таким образом получится два небольших помещения с разным функциональным назначением.
Также трансформировать однокомнатную хрущевку в двушку или полуторку можно за счет раздвижных дверей, которые не займут много места и позволят обособить такие комнаты, как детская, спальня или зал.
Немалое значение в дизайне играет выбор мебельных конструкций. Например, сэкономить пространство поможет встроенная бытовая техника в виде уменьшенного холодильника или маленькой плиты.



На фото однокомнатная квартира хрущевка с перепланировкой в двушку.

Какие лучшие способы разделить комнату в хрущевке
Пока думаю
Квартира двушка, живем мы с мужем и ребенком в одной комнате, в другой родители. Думаем о втором малыше, но иногда кажется, что это безумие, что так жить очень тяжело будет. Что вы думаете об этом, может кто-то также живет?
SimaN
Живем вчетвером (я, муж и теперь уже двое деток) в комнате 14 кв.м. в коммунальной квартире. А всего нас тут проживает 3 семьи = 11 человек. Сложно, но я рада, что у меня двое деток. Хотя на большее уже точно не решусь, это предел.
Tiamira
мы так жили. мои родители с сестрой и мы с мужем. наша комната была 9м. родили дочку, потом сына. такая безнадега навалилась… вообще неоткуда было ждать улучшения жил.условий. в год младшего ухитрились встать на очередь. больше года длилась волокита. НО… жилья ждать 20 лет - радужная перспектива… покупать даже по "льготным" ценам мы себе позволить не могли. и вот неожиданно, когда моим детям было 2 и 5, моему папе от института, где он работает, выделили служебную квартиру, и они с мамой и сестрой уехали а мы остались :) сейчас у нас уже четверо деток :)
Anonymous
А съемную квартиру найти не пробовали?
Tiamira
пробовали
Blue Shark
Похожая ситуация. Только комната у нас была 11 метров :). Детская кроватка встала впритык к нашей. Родители, правда на лето съезжали на дачу. Зато зимой было всё по полной программе: от количества народа (родители давно уже не работают) и до безапелляционных заявлений, что мы не родители, а монстры, и так обращаться с детьми нельзя. А потом мы переехали.
Anonymous
мы решились.
Как выбрать мебель для маленькой двушки
Все началось полтора года назад, когда я наконец то заехал в свою квартиру, в новостройке.
Я как человек который любит тишину, решил взять квартиру на 12 этаже. Что бы она родная, находилась более обособленно. И вышло так, что общую стену с соседями я имел только одну. Ну если не считать соседей с низу.
И вроде бы, мой план был не плох, но все разбилось от застройщика, оказавшегося ещё тем му… чудаком который слепил эти стены, из говна и палок. Причем я это заметил, когда сделал почти весь ремонт ( потолки не натянул). Тогда когда заехал мой сосед, на постоянное место жительства.
Это был полный пи**ец. Он разговаривает спокойно по телефону, а такое ощущение что рядом со мной на диване. Включен телик на нормальный, негромкий звук, (я к нему заходил) он слышан как и мой. Он **ять размешивает чай, а я и это слышу.
После месяца, горения моего седалища, я понял - нужно что то делать. И начал изучать матчасть.
И вот, может кому-то это понадобится! Я хочу рассказать, на пальцах для чайников вроде меня.
Я не профессионал, и не изучал все свойства звуков. Я человек который просто хотел тишины.
1. Шумоизоляция - это дорого. Не верьте, в сказки что наклеете ультроплотные обои, и в квартире станет тихо.
2. Если шум от вибрации (человек сосед, долбящий круглые сутки перфоратором стены), то вам легче: либо смириться, либо набить ему морды. Шумоизоляция вам в этом не поможет.
3. Делать только каркас с пирогом в несколько слоев. И использовать только специальные шумопоглощяющие материалы.
Вроде с матчастью все. Перейду к тому что же я сделал.
Сначало примечание.
В нашем городе с материалом скудно, не все было в наличии. Просто не популярная вещь и за каким-то, мне пришлось ехать в Казань, а что-то придумывать и выкручиваться самому.
1. Первый слой - Термозвукоизол


Цена рулона 5 000 хватает на 15 квадратов, у меня было 16. Пришлось покупать два рулона. По наличию был в городе.
Еще одно примечание, ни одного вибро крепежа не было в наличии.
Крепил пластиковыми дюбилями с большой шляпкой. ВАЖНО! без саморезов, просто забивал дюбиля. Дабы не было акустического мостика
.
2. Обклеил по контуру стены, пол и потолок акустической демпферной лентой. Ширина ленты 10см, на нее и крепится весь каркас. Сажал на акустический герметик (Вещь! Не воняет и работать одно удовольствие)

Фото самой ленты к сожалению нет. Почему то не снял.
3. Второй слой, каркас. С начинкой роквул акустик батсс (есть в наличии, в Мегастрое)


И сразу возникла первая проблема - это вибро подвесы, на которые крепится сам каркас. Стоимость одной штуки 250-400 рублей и по наличию в городе у нас нет. Мне же нужно было 27 штук. А это, честно дорого. Но ставить простые подвесы нельзя и пришлось искать варианты, что можно сделать.
Нашел вариант с простой демпферной лентой и двумя подвесами.

Сомнительно? Да, но выхода небыло. Сажал к стене на пластиковые дюбиля и кровельные саморезы. Так как на них имелась пластиковая пресс шайба.
Направляющие также, дюбель, саморез с пластиковой шайбой.
4. Третий слой. Плиты с песком. В моем случае - это Соноплат Стандарт. Есть аналоги чуть подешевле. Но они были в Москве, мне ближе Казань.

Брал за 600 руб.шт. Понадобилось 27 плит. Все швы проклеивал герметиком. Герметик вышел на две-три тысячи. Так как я его не жалел.
5. Четвертый слой - гипсокартон. Тут ничего умного. Единственное прикручивается простыми саморезами не к каркасу, а к плитам с песком. Что бы опять же не было акустического мостика.

Опять же, стыки промазываются герметиком.
6. Розетки.
Специальные шумовые подразетники я не купил. Не было их у нас в городе. И денег оставалось мало.
Я нарастил провода, бывшее гнездо залил моим любимым герметиком, акуратно вырезал в гипсе и соноплате подразетник. А внутрь засунул, специально вырезанный кружок гипсы. И прогерметил там же швы.
7. Штукатурка.
Вот тут я показал всю свою дурость, отштукатурил хоть хорошо и ровно. Только сделал все это без перчаток.

Сначало серпянка и швы

А затем как подсохло, всю стену в два слоя.
8 До штукатурки.
Когда сделал одну стену, я бегал к соседу и прослушивал что получилось. И в моменты этих проверок я понял что боковая стена, работает как колонка. И передаёт все звуки от соседей снизу.
Благо материал остался и я проделал тот же процесс с ней.


Только вместо Соноплата использовал два слоя гипсакортона. Гипс был фирмы Кнауф, докупал потом два дешевых, так как за Кнауф надо было ехать. Лучшеб съездил. Да дороже, но того стоит.
9. Обои.


10. Эпилог.
И погрузился дом мой в тишину.
Если бы, но нет.
Стало тише. Даже не так.
Стало В Разы тише. Соседский телевизор - не слышно, разговоры - то же нет. Как размешивает чай! Тоже нет!
Слышно только если кто то кричит или слушает громко музыку. И то вполне терпимо. ( Это выяснили при проверке). Прошло два месяца, сон наладился, нервы успокоились. Цена за материалы вышло в районе 40к, ширина пирога 9 см.. Делал все сам. И знаете … Это того стоило.
Всем спасибо, заранее извиняюсь за ошибки. Пост вышел большой, надеюсь кому-то пригодится.
Какие основные сложности при жизни в двушке с семьей
Когда места в жилище немного , на счету каждый квадратный метр! Эти идеи помогут вам организовать хранение в небольшой комнате или квартире.
В небольшой квартире или маленькой комнате нередко возникают проблемы с местами для хранения. Советы и лайфхаки из этой подборки помогут вам оптимально организовать хранение и использовать с пользой каждый метр пространства.
Подборкаждёт вас по ссылке.
1. Экономим место в шкафу: тонкие вешалки
Если в гардеробе маловато места для одежды, попробуйте сменить вешалки на тонкие. Лучше, чтобы это были не проволочные «плечики», которые деформируются сами и могут вытягивать одежду, а более прочные, например, как на фото, при этом не занимающие лишнего места.
2. Используйте стены как место для хранения
Вертикальные поверхности и в первую очередь стены — отличный способ оптимизировать хранение. Конечно, хранение на открытых стенах придётся как следует продумать, чтобы результат был не только удобным, но и выглядел эстетично.
Идеи по — в подборке по ссылке.
3. Храните мелочи в корзинах
Интерьерные корзины — незаменимые приспособления для хранения разнообразных мелочей, которые могут создавать визуальный шум в помещении.
4. Сиденье + хранение
Пуфы, диваны и другие предметы мебели с отделениями для хранения — отличное решение для небольших помещений.
12 гениальных идей для — в подборке по ссылке.
5. Журнальный столик с местом для хранения
Журнальный столик тоже может послужить местом для хранения разных вещей, от книг и журналов до пледов и подушек.
6. Используйте внутренние поверхности дверей шкафов и шкафчиков
Если конструкция шкафов и шкафчиков это позволяет, постарайтесь задействовать для хранения их дверцы с внутренней стороны.
— в подборке по ссылке.
7. Используйте вращающиеся подставки
Круглые вращающиеся подставки удобны для хранения припасов на кухне. Также подобные приспособления могут помочь в хранении бытовой химии, косметики и так далее.
8. Установите вторую штангу
В небольшой шкаф можно установить вторую штангу, нижним уровнем над верхней. Понятно, что, например, длинные пальто тут уже хранить будет неудобно, но для рубашек или других плечевых изделий такое хранение подойдёт.
— вечная проблема! Идеи из подборки по ссылке помогут вам в её решении.
Как улучшить акустику в двушке
Двухкомнатные квартиры – одни из самых покупаемых на рынке недвижимости. Люди приобретают в собственность жилье в новостройках, ищут более или менее приличные варианты во вторичном фонде. Первое, что делают счастливые владельцы, – стараются привести квартиру в идеальное, с их точки зрения, состояние. Так как «двушки», даже новые, имеют ряд недостатков, это крайне необходимый шаг.
Первое, с чем сталкиваются владельцы – это ограниченная площадь квартиры. Комнаты редко превышают 9-15 м2. Часто зал является походным, а кухня имеет крохотные размеры в 6-8 квадратов. Чтобы правильно распорядиться доступным объемом квартиры, обеспечить для всех домочадцев комфортное проживание, требуется нестандартный подход, внимание к деталям.
Для этого разрабатывают дизайн-макет самостоятельно или нанимают профессионала. Стараются использовать каждый свободный сантиметр площади, согласовывают перепланировки. Тщательно подбирают отделочные материалы, детально продумывают обстановку, количество и габариты крупной бытовой техники.
Даже если в квартире будет жить семья из 4-5 человек, все проблемы можно решить с помощью современных методов зонирования пространства и перепланировок. Дополнив результат превосходным интерьерным дизайном и стильной мебелью, можно получить на выходе квартиру своей мечты.
Перепланировка двухкомнатной квартиры: да или нет
Если семья состоит всего из двух человек, и прибавления в семействе в ближайшие лет десять не предвидится, то стандартной планировки более, чем достаточно. У семейной пары будет отдельная спальня, уютная гостиная и небольшая кухня.
Тем более, современныепозволяют сделать «конфетку» даже из крохотной кухоньки площадью в 5 квадратных метров.
При желании, можно объединить кухню и зал, получив единое помещение с зонами для готовки, совместных трапез и отдыха. Но, это на любителя, так как далеко не всем нравится обонять кухонные запахи и слушать стук посуды во время просмотра любимого кино.
Впрочем, данная проблема легко решается с помощью стационарных перегородок с распашными или: из закаленного стекла, матового или прозрачного, дерева, пластика, гипсокартона. Такие перегородки требуются по правилам техники безопасности, если в дом проведен сетевой газ, и на кухне установлена газовая плита.
Если же владельцев совершенно не устраивает старая планировка, с ее крохотными кухнями, узкими коридорами, проходным залом, или в семье более трех человек, то перепланировке быть. У каждого домочадца должна быть собственная территория, где он может уединиться.
Требуется соответствующее количество спальных мест, площадки для работы, занятий спортом, учебы или творчества. Детям требуется хотя бы небольшая игровая зона. Именно поэтому комнаты делают многофункциональными, снося и устанавливая перегородки, перекраивая типовую планировку на собственный манер.

