Современная двушка хрущевка на 5х: как обустроить уютное гнездо
- Современная двушка хрущевка на 5х: как обустроить уютное гнездо
- Связанные вопросы и ответы
- Какие особенности планировки современной двушки хрущевки на 5х5 метров
- Как обустроить гостиную в современной хрущевке на 5х5
- Как выбрать стиль интерьера для современной двушки хрущевки
- Какие современные материалы лучше использовать для ремонта в хрущевке
- Как увеличить функциональность небольшой кухни в хрущевке
Современная двушка хрущевка на 5х: как обустроить уютное гнездо
Введение
Хрущевки — это неотъемлемая часть нашего жилищного фонда, и несмотря на их небольшую площадь, они продолжают привлекать жителей городов. В этой статье мы рассмотрим, как можно превратить двухкомнатную хрущевку в современное, уютное и функциональное жилое пространство.
Планировка: как сделать пространство более комфортным
Одним из главных преимуществ хрущевок является их компактность, но это же может стать и недостатком, если не подойти к планировке с умом. Давайте рассмотрим несколько вариантов, которые помогут сделать вашу двушку более просторной и удобной.
Объединение кухни и гостиной
Объединение кухни и гостиной — это классическое решение, которое позволяет создать единое пространство для отдыха и приготовления пищи. Такое решение не только визуально увеличивает площадь, но и делает квартиру более современной и удобной для жизни.
Использование transforming furniture
Transforming furniture — это отличное решение для небольших помещений. Кровати-шкафы, столы-трансформеры и складные стулья помогут сэкономить пространство и сделать квартиру более функциональной.
Зонирование пространства
Если вы не хотите объединять комнаты, можно использовать зонирование. Например, разделите гостиную и спальню с помощью штор, перегородок или мебели. Это позволит сохранить интимность и создать уютные зоны для отдыха.
Интерьер: как сделать квартиру современной и стильной
Интерьер — это то, что делает квартиру вашим домом. Давайте рассмотрим, как можно обустроить современную двушку хрущевку, чтобы она была и стильной, и комфортной.
Современные стили интерьера
Современные стили интерьера, такие как минимализм, лофт или скандинавский стиль, идеально подходят для небольших квартир. Они предполагают использование простых форм, натуральных материалов и минимума декора, что делает пространство более воздушным и современным.
Выбор цветов и материалов
Цвета и материалы играют важную роль в создании уютного интерьера. Используйте светлые тона для стен и потолков, чтобы визуально увеличить пространство. Натуральные материалы, такие как дерево, добавят тепла и комфорта.
Освещение
Освещение — это важный элемент интерьера, который может кардинально изменить восприятие пространства. Используйте комбинацию верхнего, напольного и настольного освещения, чтобы создать уютную и функциональную атмосферу.
Функциональность: как сделать квартиру более удобной
Функциональность — это ключевой аспект, который нужно учитывать при обустройстве небольшой квартиры. Давайте рассмотрим, как можно сделать вашу двушку более удобной для жизни.
Хранение
В небольшой квартире важно правильно организовать хранение. Используйте встроенные шкафы, полки и контейнеры для хранения вещей. Это поможет сохранить порядок и освободить дополнительное пространство.
Мебель
Выбирайте мебель, которая одновременно функциональна и компактна. Например, диван с хранением или стол с встроенными ящиками. Это поможет сэкономить пространство и сделать квартиру более удобной.
Бытовая техника
Современная бытовая техника может значительно упростить вашу жизнь. Выбирайте компактные модели, которые займут меньше места, но обеспечат все необходимые функции.
Экстерьер: как оформить входную дверь и балкон
Экстерьер вашей квартиры также важен, так как он создает первое впечатление. Давайте рассмотрим, как можно оформить входную дверь и балкон, чтобы они выглядели современно и стильно.
Входная дверь
Входная дверь — это лицо вашей квартиры. Выбирайте современные модели с надежной защитой и эстетичным дизайном. Добавьте к ней красивую фурнитуру и украшения, чтобы она выделялась.
Балкон или лоджия
Балкон или лоджия — это дополнительное пространство, которое можно использовать для отдыха или хранения. Обустройте его уютно, добавив стильную мебель и растения, и он станет вашим любимым местом для отдыха.
Заключение
Обустройство современной двушки хрущевки требует внимания к деталям и правильного подхода к планировке и интерьеру. Используя советы из этой статьи, вы сможете создать уютное и функциональное жилое пространство, которое будет радовать вас и ваших близких.
Связанные вопросы и ответы:
1. Какие особенности планировки современной двушки хрущевки на 5х
Современная двушка хрущевка на 5х имеет компактную планировку, которая позволяет максимально эффективно использовать пространство. В такой квартире обычно есть две спальни, кухня, ванная и коридор. Основное отличие от классической хрущевки заключается в современном подходе к дизайну и функциональности. Например, можно объединить кухню с гостиной, создав единое пространство для отдыха и приготовления пищи. Также популярно использование встроенных шкафов и transforming furniture, чтобы сэкономить место.
2. Какие варианты ремонта подходят для современной двушки хрущевки на 5х
Для современной двушки хрущевки на 5х идеально подходят варианты ремонта, которые сочетают функциональность и эстетическую привлекательность. Можно использовать светлые оттенки стен и потолков, чтобы визуально увеличить пространство. Установка современных дверей, напольных покрытий и сантехники также играет важную роль. Не забудьте про энергосберегающие окна и современные системы освещения. Важно учесть все нюансы, чтобы ремонт был качественным и долговечным.
3. Как оформить интерьер современной двушки хрущевки на 5х
Оформление интерьера современной двушки хрущевки на 5х требует внимания к деталям и выбору подходящих материалов. Используйте минималистский стиль с акцентами на современные текстуры и цвета. В спальнях можно установить встроенные шкафы, а в гостиной – современную мебель с.transforming функциями. Не забудьте про декоративные элементы, такие как картины, растения и текстиль, которые добавят уюта и индивидуальности. Также важно правильно подобрать освещение, чтобы создать комфортную атмосферу.
4. Какие материалы для ремонта лучше использовать для современной двушки хрущевки на 5х
Для ремонта современной двушки хрущевки на 5х лучше использовать качественные и экологичные материалы. Например, для стен можно выбрать гипсокартон или штукатурку, а для пола – ламинат или инженерную доску. Сантехника и двери должны быть современными и надежными. Также важно использовать энергосберегающие материалы, такие как термостойкие окна и утепленные двери. Не забудьте про безопасность и выберите материалы, соответствующие современным стандартам.
5. Какие современные технологии можно внедрить в двушку хрущевку на 5х
В современную двушку хрущевку на 5х можно внедрить множество современных технологий, чтобы повысить комфорт и удобство. Например, установить умную систему домашнего управления, которая позволяет управлять освещением, отоплением и бытовой техникой через смартфон. Также можно установить системы вентиляции и очистки воздуха, чтобы улучшить качество воздуха в квартире. Не забудьте про современные бытовые приборы с энергоэффективными характеристиками.
6. Какие варианты для семьи из трёх человек подходят для современной двушки хрущевки на 5х
Для семьи из трёх человек современная двушка хрущевка на 5х может быть комфортным вариантом, если правильно организовать пространство. В одной спальне можно разместить двуспальную кровать, а в другой – детскую кроватку или рабочий уголок. На кухне можно установить обеденный стол для трёх человек, а в гостиной – уютный уголок для отдыха. Также важно предусмотреть место для хранения вещей, используя встроенные шкафы и полки.
7. Какова стоимость ремонта и дизайна современной двушки хрущевки на 5х
Стоимость ремонта и дизайна современной двушки хрущевки на 5х может варьироваться в зависимости от материалов и сложности проекта. В среднем, ремонт может стоить от 500 000 до 1 500 000 рублей, в зависимости от выбора материалов и технологий. Дизайн интерьера может добавить ещё 100 000 – 300 000 рублей к общей сумме. Важно составить подробный план и смету, чтобы избежать лишних расходов.
8. Какие плюсы и минусы у современной двушки хрущевки на 5х
Современная двушка хрущевка на 5х имеет множество плюсов, таких как компактная планировка, возможность современного дизайна и относительно доступная цена. Однако есть и минусы, например, ограниченное пространство и необходимость тщательного планирования. Также стоит учитывать, что такая квартира может быть не самой удобной для больших семей или для тех, кто любит просторные помещения. В целом, это хороший вариант для молодых пар или небольших семей.
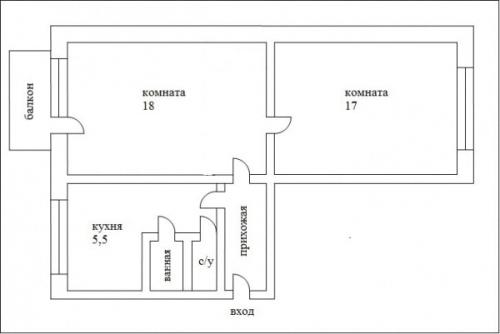
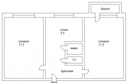
Какие особенности планировки современной двушки хрущевки на 5х5 метров
Нельзя начать ремонт двухкомнатной квартиры хрущевки без понимания ее особенностей.
Кухня с небольшим метражом (5–6 метров).
Низкие потолки.
Одна из комнат – проходная.
Санузел и ванна совмещенные, при этом у комнаты небольшой метраж, который не позволяет смонтировать стандартную ванную.
Если отдельная кладовка.
Если квартира расположена не на первом этаже – есть балкон или лоджия.
Еще две грустные особенности «хрущевок» – очень малый метраж прихожей и плохая шумоизоляция. Впрочем, практически все недостатки квартиры можно нивелировать современным ремонтом.

Скажем еще пару слов об особенностях планировок в домах разных серий, а потом дадим рекомендации по улучшению ситуации.
Метражи и особенности планировки двухкомнатных хрущевок
Встречаются разные варианты планировок:
«Книжки». Квартиры этой планировки имеют площадь в 42–43 м2. Их главная особенность – кухня, спальня и гостиная идут друг за другом. Проходная комната должна выполнять роль столовой. Если семья больше двух человек, придется в ней же спать, что очень неудобно. Жирный минус такой планировки – проходная комната останется проходной, как бы и что вы ни запланировали. Самый распространенный вариант изменения в такой комнате – снос перегородок между кухней и столовой (комната превращается в уверенную студию).

«Трамваи» (они же «Павровозики») – квартиры с метражом в 47 метров. В такой планировке две спальные комнаты располагаются смежно. При этом одна из них угловая, а вторая – проходная. Чаще всего при такой планировке «отрезается» часть проходной комнаты, достраивается стена и создается своеобразный коридор (в котором дополнительно размещают системы хранения вещей).

«Бабочки» (они же «Распашонки») – квартиры с метражом в 46 м2. Сразу за прихожей размещается кухня и санузел, комнаты располагаются по бокам. Достаточно удобный вариант, главный минус – санузел находится практически на кухне.

Неважно, какая именно планировка у вашей квартиры – с помощью продуманного ремонта ее можно превратить в дом вашей мечты.
Комплексный ремонт квартир под ключ
Всё включено
В стоимость ремонта входит всё: работы, материалы, документы.
Без вашего участия
После согласования проекта мы беспокоим хозяев только при сдаче ремонта.
Цена известна заранее
Стоимость ремонта фиксируется в договоре.
Фиксированный срок ремонта
Ремонт квартиры под ключ за 3,5 месяца. Срок закреплен в договоре.
Как обустроить гостиную в современной хрущевке на 5х5
assets/from_origin/upload/resize_cache/iblock/20d/600_450_2/20d228c94830d7b41a5cf3dbe2f560aa.jpgИз этой статьи вы узнаете:
- Каковы трудности ремонта ванной в хрущевке
- Какие стили подойдут для ванной в хрущевке
- Каковы варианты освещения ванной в хрущевке при ремонте
- Какие варианты материалов считаются лучшими для ремонта ванной комнаты в хрущевке
Многие россияне живут в маленьких квартирках советской постройки, или, как их еще называют, в хрущевках. Особенностью таких квартир являются крохотные кухни (4,9–7 ,1 м2) и санузлы (не более 5 м2). Из-за небольших площадей у людей возникают трудности при планировании ремонта, особенно в ванной. В статье мы покажем вам варианты ремонта ванной в хрущевке, расскажем о трудностях, которые могут возникнуть в процессе ремонта, о том, как удачно расставить мебель в ванной комнате, и поможем вам выбрать стиль и материалы.
Трудности ремонта ванной в хрущевке
Маленький размер ванной комнаты в хрущевках не дает вашей фантазии разгуляться, поэтому нужно сделать каждую деталь будущего интерьера максимально полезной и функциональной.
Планируя ремонт, делайте упор на многофункциональность и совмещайте несколько задач в каждом элементе интерьера. Избавьтесь от ненужного в вашей ванной комнате.

Хрущевки построены по одному типу, и если вы задумываете ремонт, то наверняка уже понимаете, что все возможные варианты проблем кроются именно в изначально неверной планировке квартиры.
Из-за нее в ванной не хватает пространства, и число вариантов размещения нужного количества предметов интерьера очень ограниченно. Еще больше осложняет ситуацию раздельный санузел, когда площади еще сильнее уменьшаются и ремонт, соответственно, также затрудняется.
Именно поэтому мы советуем сделать в вашей хрущевке объединенный санузел. Да, это повлечет за собой дополнительные затраты на демонтаж, но зато сможет значительно облегчить ремонт и расширить список возможностей для продумывания вариантов оформления ванной комнаты.
Еще одна проблема, которая может возникнуть при выборе вариантов ремонта ванной в хрущевке, – неудачно расположенные коммуникаций. Обычно сантехнику в хрущевках ставят далеко от главных стояков, из-за чего во время ремонта приходится делать дополнительную разводку труб, причем в ходе этой работы надо еще и максимально сэкономить и так ограниченное пространство.
Можно высвободить немного площади, спрятав трубы внутри стен ванной комнаты. При выборе этого варианта решения вам придется потрудиться над выравниванием стен в вашей хрущевке, а возможно, и вовсе над их возведением заново. Скажем честно, что те, кто строили хрущевки, не сильно заботились о ровных стенах или удобном расположении коммуникаций, поэтому об этом придется подумать уже вам во время ремонта.
Если вы живете в хрущевке, то наверняка сталкивались с проблемой появления грибка и плесени в санузле. Это легко объяснить, ведь условия повышенной влажности идеальны для роста и размножения этих организмов. Плесень оседает в квартире надолго, и вывести ее – достаточно трудоемкая задача. Однако всех этих проблем легко избежать, если заранее правильно спроектировать ремонт вашей будущей ванной, выбирая водостойкие материалы и обеспечивая нормальную вентиляцию.
Как выбрать стиль интерьера для современной двушки хрущевки
Для маленькой кухни-хрущевки подходят следующие варианты планировки кухонной мебели:
1. Линейная планировка, она же однорядная
Прямая кухня-хрущевка подходит для небольших площадей, так как предполагает размещение техники и шкафов вдоль одной из стен. Подходит для семьи из нескольких человек.
Многие устройства не подходят для такой планировки, поэтому здесь лучше выбрать встроенный вариант. В идеале дизайн кухни в хрущевке с холодильником – предполагает, что всё должно быть выстроено в линию, но это не всегда возможно.
С противоположной стороны можно разместить обеденную зону, если места достаточно. В противном случае переместите его в гостиную.

Фото из источника: inmyroom.ru
2. Угловая кухня в хрущевке
В данном случае мебель и технику обычно располагают вдоль стены с окном и прилегающей к ней стеной. Такой вариант позволяет удачно использовать углы комнаты.
Обычно под раковиной располагается прямой или наклонный геометрический шкафчик. Угловое расположение удобно для домовладельцев, так как сокращает ненужные перемещения по кухне. Он также хорошо работает на квадратных кухнях.
Фото из источника: inmyroom.ru
О столешницах угловых кухонь в хрущёвках: какую выбрать?
В угловых гарнитурах будут очень уместны столешницы от фабрики «Кедр» с угловым соединением под углом 90º - так называемый, еврозапил. Что это такое? Одна столешница запиливается вглубь, а другая с торца, под один профиль. С нижней стороны столешницы проделываются углубления для расположения специальных стяжек. При этом спилы обрабатываются герметиком или клеем, цвет которого соответствует лицевой поверхности, после чего столешницы стягиваются друг с другом. Шов получается практически невидимым.
Идеальный выбор декора столешницы для кухни в хрущёвке – светлый и минималистичный. Огромное разнообразие декоров представлено в каталоге столешниц фабрики «Кедр»!
3. П-образный кухонный гарнитур для маленькой кухни в хрущевке – не лучшее решение для планировки, так как она занимает три смежные стены. Поэтому кухня будет тесной, и даже обеденный стол не поместится.

Какие современные материалы лучше использовать для ремонта в хрущевке
Начну рассказ с самого начала — в 2016 году мне потребовался удаленный сбор показаний квартирных счетчиков.Для этого, чтобы не устанавливать «считывающие накладки», в любом случае, была необходима замена обычных счётчиков воды и электроэнергии на счетчики с соответствующим интерфейсом. И вариантов этого интерфейса было доступно всего два:
- Цифровой RS485.
- Импульсным выход.
Счётчики на воду с импульсным выходом сразу после установки и опломбирования Следующим моим шагом стал выбор счетчика электрической энергии — и здесь тоже надо иметь ввиду, что он тоже должен обладать всеми необходимыми бумагами и сертификатами для постановки на учёт — ведь я слышал, что иногда ставят даже два счётчика:- Первый — «отчётный» — для учёта, перед поставщиком электроэнергии.
- Второй — без российских документов с популярного китайского сайта, который устанавливают сразу после первого для использования в целях домашней автоматизации — чтобы можно было удаленно считывать показания. Обычно через цифровой интерфейс RS485.
Однофазный однотарифный счетчик Меркурий 201.5 сразу после установки и опечатывания В 2016 году я выбрал однотарифный счётчик с импульсным выходом, потому что я не понимал, как можно из командной строки сервера считывать показания счетчика электроэнергии по RS485 и пушить их в единую панель управления умным домом, которую я собирался собрать.Как оказалось позже — однофазные электросчетчики Меркурий достаточно популярны для домашней автоматизации и при цене счетчика, сопоставимой с аналогичными счетчиками других производителей можно получить устройство, которое полностью совместимо с современными системами домашней автоматизации. Для этого надо лишь иметь, стоимость которого составляет менее 100 рублей (в Китае). Этот адаптер может работать с любым микрокомпьютером у которого есть USB-порт, например, из линейки Raspberry Pi, которые часто используются в качестве сервера для домашней автоматизации, для запуска Home Assistantпрограммного хаба.Сам скрипт опроса электросчетчика Меркурий написан энтузиастами и выполняется из командной строки, а также может быть интегрирован в любую систему домашней автоматизации. Мой конкретный пример интеграции для RS485 в другой квартире, где установлен Меркурий 200, который я сделал уже позже, можно посмотреть, например,или просто поискать варианты. Элемент скрипта для получения данных с электросчетчика Меркурий 200 Однако в 2016 году после установки счетчиков без цифрового RS485 мне понадобилось устройство считывания этих импульсов.Как увеличить функциональность небольшой кухни в хрущевке
Комната в «хрущевке» обустраивается прежде всего исходя из особенностей планировки. Вне зависимости от того, однокомнатная или двухкомнатная квартира имеется в вашем распоряжении, нужно, кроме площади, оценить размер и расположение окна, с балконом ли комната или без, как и где расположены двери, насколько узкая комната нуждается в оформлении.
Спальня-гостиная или отдельная спальня в 2-комнатной квартире в любом случае потребуют продумывания функционального и красивого дизайна. Места в «хрущевке» очень мало – это главный недостаток подобного типа квартир. Кроме того, неудачная планировка, невысокие потолки тоже доставят немало проблем.

Необходимо все очень хорошо продумать и подойти к оформлению с необычной точки зрения. Цель дизайна заключается в визуальном увеличении пространства . Если подойти к выбору каждой мелочи осознанно, можно наполнить самую маленькую комнату светом, добавить функциональности.
Даже самая маленькая спальня должна сочетать в себе практичность, красоту и создавать расслабляющее настроение.

Чтобы выбрать подходящую планировку, нужно решить для себя, что бы вы хотели включить в данное помещение. Отдельная спальня чаще всего содержит минимум мебели: кровать, тумбочки, шкаф, правильное освещение.

Объединенный вариант спальня-гостиная требует другого подхода. Здесь иногда требуется разместить рабочую зону, стеллажи, место отдыха. Особенно сложно воплотить все необходимые вещи, если в небольшой квартире живет семья с детьми. Каждый метр становится практически золотым.

Важно знать определенный набор дизайнерских приемов, которые позволяют обыграть маленькую площадь правильно. Это и увеличение места, включение функционала нестандартным способом:
- минимум предметов – не стоит перегружать комнату мебелью и деталями;
- грамотное расположение мебели;
- однотонные стены;
- светлые оттенки в оформлении;
- много зеркал;
- хорошо продуманное освещение, искусственное и естественное;
- замена обычных дверей раздвижными;
- исключение ковровых покрытий.
Все эти приемы можно использовать при оформлении маленькой комнаты, сделав ее максимально удобной и красивой.
