Как правильно установить металлический сайдинг на фасад дома
- Как правильно установить металлический сайдинг на фасад дома
- Связанные вопросы и ответы
- Что такое металлический сайдинг
- Какие материалы используются для производства металлического сайдинга
- Какие факторы влияют на выбор металлического сайдинга
- Какие виды монтажа металлического сайдинга существуют
- Какие инструменты и материалы необходимы для монтажа металлического сайдинга
- Как правильно подготовить стену к монтажу металлического сайдинга
- Как правильно установить первый ряд металлического сайдинга
Как правильно установить металлический сайдинг на фасад дома
Сайдинг - декоративные металлические панели, предназначенные для облицовки фасадов и подшивки карнизов. Возможно изготовление трёх типов профиля:
«Корабельная доска», «Lбрус», «Woodstock®», а также Софиты «Lбрус».Панель изготавливается из тонколистовой оцинкованной стали с полимерным покрытием различных цветов, в том числе и с имитацией под различные натуральные материалы.

Сайдинг «Корабельная доска» – классический наиболее популярный профиль сайдинга. Благодаря своей форме прост в монтаже и удобен в эксплуатации. Чаще всего используется для облицовки стен. Исходный материал: рулонная оцинкованная сталь с полимерным покрытием.

Сайдинг «Lбрус». Канавка на сайдинге напоминает форму известной горы, а буква «L» означает Light, подчеркивая преимущество стальной имитации бруса перед деревянным аналогом по весу и лёгкости его монтажа. Применяется как облицовка стен (в вертикальном или горизонтальном расположении) и подшивка карнизов зданий при комплектации кровель.

Стальной сайдинг Woodstock®-28х330, обладая всеми преимуществами стального сайдинга, отличается оригинальной формой и привлекательным внешним видом, имитирующим оцилиндрованное бревно. Woodstock® позволит придать вашему дому вид натурального сруба и создаст ощущение уюта и комфорта. Woodstock® от Металл Профиль точно имитирует профиль бревенчатой кладки и имеет глубокую геометрию профиля, полностью воссоздающую текстуру натурального дерева. От коррозии, механических повреждений и выгорания на солнце материал защищен цинковым и полимерным покрытием. Стальной сайдинг Woodstock® является экологически чистым материалом. В отличие от дерева он не горит, не гниёт, не подвержен воздействию насекомых и вместе с тем позволяет сохранить эстетику деревянного строения.
Связанные вопросы и ответы:
Вопрос 1: Что такое металлический сайдинг
Ответ: Металлический сайдинг - это материал, который используется для защиты фасадов зданий от атмосферных воздействий, таких как дождь, снег, ветер и солнце. Он представляет собой листы металла, которые могут быть изготовлены из различных металлов, таких как алюминий, сталь или медь.
Вопрос 2: Какие факторы необходимо учитывать при выборе металлического сайдинга
Ответ: При выборе металлического сайдинга следует учитывать его качество, прочность, долговечность и эстетику. Также важно учитывать тип металла, из которого изготовлен сайдинг, его толщину и способ обработки. Кроме того, следует учитывать условия окружающей среды, в которых будет использоваться сайдинг, такие как температура, влажность и солнечная радиация.
Вопрос 3: Как выбрать правильный тип металлического сайдинга
Ответ: Выбор типа металлического сайдинга зависит от многих факторов, таких как тип здания, его архитектурный стиль, цвет и дизайн. Также важно учитывать условия окружающей среды, в которых будет использоваться сайдинг. Например, в районах с высоким содержанием соли в воздухе лучше использовать алюминий или нержавеющую сталь, а в районах с высокой влажностью лучше использовать медь или медный сайдинг.
Что такое металлический сайдинг
Такой популярный фасадный материал, как металлосайдинг, имеет свои преимущества и недостатки.
Для начала стоит рассмотреть, в чем же заключаются его плюсы.
- В первую очередь стоит выделить температуроустойчивость металлосайдинга. Ему не страшны перепады температурных значений. Даже в условиях сильных морозов такой материал не деформируется и не теряет формы.
- Металлический сайдинг отличают хорошие прочностные характеристики. Этот облицовочный материал довольно трудно повредить. Некоторые производители дают на свою продукцию гарантию до 50 лет.
- Подобные материалы устанавливаются достаточно быстро и легко. Монтаж вполне возможно произвести своими руками, экономя средства на бригаде отделочников.
- Металлический сайдинг является износостойким материалом. Ему не страшны дожди, снега, изморозь и механические внешние воздействия.
- За этим материалом не нужно постоянно ухаживать, тратя большие деньги на специальные чистящие средства. С поверхности металлосайдинга любые загрязнения удаляются очень легко.
- Подобная облицовка легко поддается ремонту, если он необходим.
- Монтаж металлического сайдинга можно производить в любых климатических зонах нашей страны.
- Металлосайдинг не подвержен образованию мха, плесени или грибка..
- Фасады, отделанные металлосайдингом, являются пожаробезопасными. Этот материал не является горючим и воспламеняемым.
- Металлический сайдинг не подвержен коррозии. Кроме того, насыщенность его цвета, как правило, сохраняется на долгие годы и не теряет первозданной яркости. Данные характеристики обусловлены многослойностью подобных материалов.
- Металлический сайдинг отличается универсальностью размеров. Производится также индивидуальное изготовление подобных покрытий, которые ориентированы на конкретные параметры.
- Ассортимент разноцветных листов сайдинга отличается большим разнообразием.
- Подобные облицовочные материалы являются экологически чистыми. В их составе отсутствуют вредные и опасные соединения, пагубно влияющие на здоровье человека.
- Ни в процессе установки, ни после нее металлосайдинг не источает неприятных запахов.
Современный металлический сайдинг может похвастаться множеством преимуществ. Однако данному материалу присущи и некоторые недостатки.
Рассмотрим их подробнее.
- Металлический сайдинг не может похвастаться высокой механической прочностью. При сильном ударе он обязательно помнется и деформируется.
- Если этот материал получил механическое повреждение, то отремонтировать его и вернуть прежний вид вряд ли удастся.
- Металлосайдингу присущ низкий коэффициент теплоизоляции.
- Многие потребители к минусам металлосайдинга относят его внушительный вес. По заявлениям домашних мастеров, из-за этого работать с подобным материалом бывает довольно трудно.
- Материалы на основе оцинкованной стали стоят недешево.
Как можно заметить, недостатков у металлического сайдинга гораздо меньше, чем преимуществ. Главное, подобрать качественный материал, который не доставит никаких неудобств во время монтажа и эксплуатации.
Источник: https://360doma.ru/novosti/vse-chto-nuzhno-znat-o-metallicheskom-saydinge-dlya-doma
Какие материалы используются для производства металлического сайдинга
Как уже говорилось в материалах о металлосайдинге на нашем сайте — в качестве сырья для производства металлического сайдинга используют холоднокатаную горячеоцинкованную сталь с различными видами полимерных покрытий производства НЛМК, ММК (Россия), Arcelor (Германия), Corus (Великобритания), Ruukki (Финляндия) и др. Им и посвящена эта страница.
Для изготовления металлического сайдинга и комплектующих могут быть использованы множество вариантов цветов (по каталогам RAL, RaColor, Corus, SSAB) и видов покрытий. Наши консультанты помогут Вам выбрать наиболее подходящий тип покрытия в зависимости от его потребительских качеств и стоимости.
Посмотрим на лист металлосайдинга «в разрезе» (рисунок ниже).
- Стальной лист
- Цинковое покрытие (минимум 275
г/м ) - Пассивирующий слой (антикоррозийное покрытие)
- Грунтовочный слой
- Полимерное покрытие (полиэстер, пластизол и др.)
- Защитный лак
Материал для металлосайдинга — стальной оцинкованный лист (поз.1 и 2) покрывается фосфатным антикоррозионным слоем (поз.3). Затем на него наносится грунтовка (поз.4), а тыльная сторона листов покрывается защитным лаком (поз.6). Лицевая наружная сторона панели покрывается защитным полимерным покрытием (поз.5) — полиэстер, матовый полиэстер, пластизол, пурал, ПВДФ.
Рассмотрим разные виды полимерных покрытий для металлосайдинга.
Полиэстер, полиэфир (ПЭ)
Относительно недорогое покрытие толщиной 25 мкм с глянцевой поверхностью для крыш и стен , подходящее для любых климатических условий. Основа покрытия — полиэфирная краска, обладающая хорошей стойкостью цвета. Материал обладает высоким уровнем гибкости и формуемости.
МАТОВЫЙ ПОЛИЭСТЕР (ПЭМА)
Полиэфирное покрытие толщиной 35 мкм с матовой поверхностью. Материал обладает высокой цветостойкостью и механической стойкостью, сохраняет свои свойства в любом климате.
Пластизол (ПЛ)
Наиболее толстое покрытие (200 мкм), имеет тиснёную поверхность. Основа покрытия — ПВХ (поливинилхлорид). Одно из самых устойчивых к механическим повреждениям, к атмосферным воздействиям, другим неблагоприятным факторам. Выбирая пластизол для использования в жарких регионах, ориентируйтесь на светлые цвета. Они лучше отражают свет, меньше нагреваются и выгорают.
Пурал (ПУ)
Новое финское покрытие толщиной 50 мкм на основе полиуретана. Покрытие не боится больших суточных перепадов температуры, низких и высоких температур (до +120° С). Единственный вид покрытия, позволяющий работать даже при температуре -15° С. Это покрытие придает материалу высокую коррозионную стойкость, практически не выгорает, стойкое к царапинам. Лучший вид полимерного покрытия для кровли .
ПВДФ
Покрытие толщиной 27 мкм, состоящее из поливинилдифторида (80%) и акрила (20%). Имеет глянцевую поверхность, может быть цвета типа «металлик». ПВДФ обладает самоомываемостью, высокой стойкостью к механическим повреждениям. Этот материал самый стойкий к ультрафиолетовому излучению, практически не выцветает. Самое долговечное покрытие, применяется даже в условиях агрессивных сред, таких, как морское побережье. Идеально для стен.
Источник: https://360doma.ru/stati/otdelka-doma-metallicheskim-saydingom-prochnyy-i-stilnyy-sposob-zashchity
Какие факторы влияют на выбор металлического сайдинга
Металлический сайдинг производителя Металл Профиль - это современный фасадный материал для облицовки частных домов и промышленных зданий. Габаритные размеры панелей зависят от серии сайдинга. Длина панели варьируется от 0,5 до 6 метров.
Виды сайдинга
В ассортименте производителя Металл Профиль представлено всего четыре вида панелей металлосайдинга:
- "Lбрус". Это бюджетный строительный материал. Железо имитирует классический тип деревянного бруса. Литера "L" обозначает, что сайдинг имеет легкий вес по сравнению с природным аналогом. Монтаж ведется в горизонтальном или вертикальном положении;
- "Lбрус XL". Вид сайдинга с увеличенной шириной панели. Хорошо смотрится на фасаде большого дома или заборе;
- "Корабельная доска". Еще один бюджетный вариант для облицовки фасадов дома. Напоминает доски, которыми обшивают каюты корабля;
- "WoodStock". Высокая волна профиля создает имитацию бревна. Производитель выпускает изделия в четырех видах рельефа: трапеция, волна, накатка, гладкая.
Антикоррозийные свойства металла зависят от типа покрытия.
Какие виды монтажа металлического сайдинга существуют
Сайдинг из металла выбирают те, кто хочет красивую и надежную отделку фасада. Он отличается прочностью и долговечностью, а самое главное —внешний вид останется привлекательным долгое время (до 50 лет) без дополнительного ухода и покраски. Очень важно при этом правильно выполнить монтаж, чтобы сохранить эксплуатационные свойства материала.
Лучший вариант —обратиться к профессиональным установщикам. Но если вы, по какой-либо причине, хотите осуществить обшивку самостоятельно, настоятельно рекомендуем соблюдать все правила и поэтапно следовать инструкции. В статье мы подробно рассмотрим технологию установки металлического сайдинга.

Подготовка материалов и инструмента.
Сайдинговые панели.
Обычно на полосах имеется защитная пленка, которую нужно снять до начала работ.
Доборные элементы.
Кроме самого сайдинга понадобятся планки различного назначения для отделки углов, проемов, крепления и соединения рядовых панелей. Можно изготовить доборные элементы на заказ по вашим размерам. Важный момент - на деталях должна быть завальцовка, она придаст жесткости и убережет от травм.
Крепеж.
Предпочтительнее использовать оцинкованные саморезы. Если необходимо закрепить панель насквозь —воспользуйтесь метизом с резиновым уплотнителем, который не пропустит влагу в места среза и предотвратит появление ржавых подтеков. Допустимо применение оцинкованных гвоздей. Шляпку обычно подбирают в тон покрытия.
Ремонтная краска.
Места спила и легкие царапины верхнего покрытия следует закрасить в процессе монтажа специальный краской, которую приобретают вместе с сайдингом. Краска защитит металл от коррозии. Наносят ее только на поврежденный участок, для удобства можно воспользоваться ватной палочкой.
Инструменты:
Для резки сайдинга.
Ножницы или электропила по металлу.
Запрещено применять болгарку и шлифмашинку, так как при этом повреждается защитный наружный слой и впоследствии металл ржавеет.
Для просверливания дополнительных отверстий крепления.
Перфоратор или пуансон (штампует отверстия с загибом материала).
Для крепления.
Молоток или шуруповерт, а также дрель со специальной насадкой для метизов с уплотнителем. Не рекомендуется крепить металлический сайдинг при помощи скоб.
Для измерений.
Рулетка с измерительной лентой из ткани, пластмассовый или деревянный угольник, отвес, строительный или любой другой уровень.
Для защиты.
Пластиковые очки, хлопковые перчатки.
Как крепить металлический сайдинг
Корабельная доска, Брус, Бревно —инструкция.
Крепление осуществляют на обрешетку из металлического профиля. Направляющие фиксируют с шагом 40-50 см. на предварительно подготовленные поверхности стен. Возможна укладка утеплителя между профилями, в этом случае теплоизоляцию закрывают пароветрозащитной мембраной.
Сайдинг монтируется в следующем порядке:
1. Стартовый профиль.
2. Угловые элементы сложной конструкции, Н-планка для сложного соединения.
3. Наличники.
4. Рядовые панели.
5. Простые углы и Н-планки.
6. Софит.
1. Фиксация стартовой рейки.
Для начала определяют нижнюю точку на обрешетке. От нее вверх на 30-40 мм., с учетом ширины планки, проводят линию по всему периметру здания, точно выверяя горизонтальность. По этой линии устанавливают стартовый профиль, крепеж выполняют на 30-40 см. друг от друга.
В случае, когда панели монтируют над цоколем, сначала ставят водосливную рейку, над ней стартовую.
Температурные зазоры не предусматривают, так как коэффициент расширения у металла незначительный - в 10 раз меньше, чем у пластика.

2. Крепление угловых и соединительных профилей.
Сложные элементы:
Элементы имеют усложненную форму и устанавливаются сразу после стартовой рейки. Саморезы фиксируют с шагом 20-30 см. Как правило, такие доборные планки используют редко, чаще применяют обычные. Их стоимость гораздо меньше, монтировать проще и есть возможность заменить деталь, так как установка выполняется после монтажа рядовых панелей.
Простые элементы:
Монтаж выполняется на лицевую сторону сайдинга. Крепят элементы насквозь с шагом 40-50см. нержавеющими метизами с уплотнителем. Чтобы впоследствии можно было легко выкрутить саморез, ставят вытяжные заклепки 6мм. Заклепки крепят в предварительно просверленные отверстия. Простые углы изготавливают на заказ нужных размеров, максимальная длина составляет 200см.

Какие инструменты и материалы необходимы для монтажа металлического сайдинга
О том, что такое сайдинг и почему его выбирают для обшивки частных домов, мы рассказывали в статье про виды сайдинга . Расскажем о том, что нужно подготовить перед установкой панелей своими руками.
Подготовка к монтажу сайдинга включает несколько шагов. Приведем основные рекомендации специалистов перед монтажом:
Изучите инструкции . Ознакомьтесь с инструкциями производителя сайдинга, чтобы понять особенности монтажа, необходимые инструменты и материалы, а также последовательность работ. Составьте план установки, учитывая размеры и форму вашего дома, а также особенности стен и углов.
Подготовьте поверхности . Оцените состояние стен. По возможности, обеспечьте ровную, чистую и прочную поверхность для установки сайдинга.Устраните повреждения и трещины. Если требуется, обработайте поверхность противогрибковыми или противоплесневыми средствами.
Приготовьте инструменты и материалы . Убедитесь, что у вас есть все инструменты и материалы для монтажа сайдинга.
Например, для установки виниловых панелей понадобятся:
стартовые, финишные, J-профили, наружные углы, околооконные планки, доборные элементы и т.д.;
деревянные бруски влажностью не более 20% или металлический профиль для каркаса;
утеплитель под сайдинг — минеральная вата (если требуется обновить только внешнюю часть фасада, утеплитель не нужен);
УШМ, нож для резки, строительный уровень, просекатель отверстий для панелей ПВХ, нож-резак, шуруповерт;
дюбели, саморезы с дожимной манжетой и т.д.
Для крепления сайдинга и комплектующих используются оцинкованные саморезы длиной 25–30 мм, толщиной 2,5–3 мм со шляпкой 8 мм в диаметре.
Могут понадобиться специальные инструменты. Например, ремувер для сайдинга — инструмент, который помогает снять панель, если ее повредили или неправильно установили.
Рассчитайте количество материалов и комплектующих . Оцените количество сайдинга и комплектующих с учетом размеров стен, окон и проемов. С этим поможет проект дома или замеры с лазерным дальномером. Учтите запас на отрезки и возможные ошибки при монтаже в размере 10-15%. Следуйте рекомендациям производителя по расчету количества материалов.
Закажите материал и подготовьтесь к установке . Рекомендуется покупать материал у производителей, которые предоставляют гарантию на свою продукцию.
Как правильно подготовить стену к монтажу металлического сайдинга
Панели сайдинга Корабельная доска монтируются от нижней части фасада к верхней. Участок перфорации для крепления панели (замок) должен находиться вверху (рис 14). Замок на краю панелей может быть слегка зажат, что помешает следующей панели войти в зацеп. Рекомендуется слегка отогнуть замок до штатного положения отверткой.
- Первый ряд металлосайдинга установите в начальную J планку, обеспечив замковое сцепление.
- Прижмите панель к обрешетке и закрепите саморезами. Прикручивайте панель от центра к краям. Не крепите сайдинг слишком плотно. Оставьте расстояние примерно 1 мм между нижним краем шляпки самореза и панелью, так чтобы она имела свободный ход по горизонтали (рис. 15).
- Саморез вкручивайте в центр перфорированного отверстия.
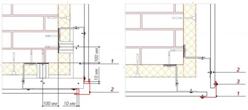
- Между панелями сайдинга и вертикальными доборными элементами следует оставлять зазор около 10 мм – нельзя устанавливать рейки встык или внахлест.
- Вторую панель заведите в пазы доборных элементов, зацепите нижний выступ за замок предыдущей панели, выравнивайте и крепите по аналогии с первой.
- Расстояние между саморезами должно составлять 300-400 мм. Отверстия в панелях сайдинга для выхода электропроводки, труб делаются на 5 мм больше, это позволяет панелям свободно «сжиматься-расширяться».
- Верхняя часть последней панели сайдинга вставляется в завершающую J планку, нижняя вставляется в предпоследнюю панель, и только затем происходит окончательное крепление панелей путем их защелкивания. Если верхняя панель сайдинга по размерам не совпадает с необходимым, то панель обрезается под нужный размер, затем панель заводится под завершающую планку и защелкивается в нижнюю панель. Оформляются места примыкания фасада к свесам кровли, а также оконные и дверные проемы.
Как правильно установить первый ряд металлического сайдинга
Применение металлического сайдинга призвано не только защитить фасад от разрушительных воздействий окружающей среды, но и обеспечить приятный внешний вид поверхности. Покрытие сайдингом позволяет жилищу простоять не меньше полусотни лет, и в процессе работы с ним надо применять не только полосы, но и доборные элементы.
Следует выбирать конструкции с завальцовкой, поскольку они жестче механически и менее опасны в плане нанесения травм.
- «Корабельная доска» именуется так неслучайно, ведь ее внешний вид похож на материал, служащий для обшивки деревянных судов. Преимуществом подобной конструкции специалисты считают простой монтаж и облегчение последующей эксплуатации. Панели неплохо сопротивляются воздействию пламени и экологически безопасны, в длину составляют до 6 м. Исходный слой – облегченный каркас вертикального типа.
- «Блок-хаус» внешне напоминает качественные бревна, причем воспроизводится не только цвет и форма, но и текстура натурального материала. В отличие от природного сруба нет необходимости обрабатывать материал антисептиками или окрашивать. Монтаж поверх обрешетки дает возможность утеплить конструкцию дополнительно; конструкция легкая и нагрузка на стену, а также фундамент сравнительно мала. Установка возможна в любой сезон года.
- «Евробрус» является металлическим аналогом профилированного бруса и далеко превосходит его по уровню пожарной безопасности. Можно ставить такой тип блоков и вертикально, и горизонтально. Выпуск по индивидуальным заказам помогает экономить деньги, потому что исключается нарезка, подгонка панелей под точные размеры и напрасная утилизация срезанных частей.
- Вариант «Венец» выделяется повышенной механической крепостью и отменной устойчивостью к воздействию огня. Он позволяет корректировать любые дефекты сооружений, и даже когда погода постоянно испытывает поверхность дома на прочность, внешний вид сохраняется очень хорошо.