Как правильно устанавливать окна: роль зазоров в герметичности
- Как правильно устанавливать окна: роль зазоров в герметичности
- Связанные вопросы и ответы
- Почему зазоры важны при установке окон
- Какие оптимальные размеры зазоров рекомендуется при установке окон
- Как правильно измерять зазоры между окном и стеной
- Как зазоры влияют на герметичность и энергопотребление
- Какие материалы лучше использовать для уплотнения зазоров
- Какие ошибки при установке зазоров могут привести к проблемам
- Как устранять большие зазоры между окном и стеной
Как правильно устанавливать окна: роль зазоров в герметичности
Для установки нужно заказать окна и комплектующие соответствующих размеров, а для этого требуется правильно и точно выполнить замеры. Оконный проем для получения точных результатов замеряют после демонтажа старого окна, подоконника, откосов, отлива. Замеряют высоту и ширину окна, длину и ширину подоконника, откосов.
Оконные проемы могут быть ровным (ширина снаружи и изнутри одинаковая), с четвертью (наружная часть уже на 6 см, что соответствует четверти кирпича). Проемы с четвертью предотвращают выпадение окна.
Замеры ровного проема:
- Измерение ширины (горизонтальное расстояние между стенами А) в нескольких местах, от полученного значение отнимают 3 см (по 1,5 см слева и справа) для зазора под монтажную пену.
- Измерение высоты (H), от полученного значения отнимают 5 см (1,5 см сверху под зазор, 3,5 см снизу под подоконник).
Замеры проема с четвертью:
- Измерение ширины узкой части (А), к полученному значению прибавляют 2-3 см.
- Измерение высоты (реальной).
Ширина подоконника измеряется с учетом ширины оконной конструкции (изнутри – от поверхности рамы). Желательно, чтобы подоконник выступал на 5-6 см от внутренней плоскости стены. Длина подоконника обычно на 10 см больше длины проема.
С отливом аналогично, но измерения проводят с наружной стороны с учетом ширины окна. К полученному результату добавляют 10 см на загиб. Точно замерить ширину отливов можно после установки рамы со створками, поэтому при заказе указывают значение «с запасом» – проще отрезать излишки на месте.
Учтите, что:
- самостоятельные замеры лишают гарантии производителя окон ПВХ, поэтому во всех компаниях на объект выезжает замерщик (если из-за ошибки замерщика потребуется установка доборных элементов или изготовление нового окна, то все расходы несет производитель, если ошибки допустил владелец квартиры, то и ответственность лежит целиком на нем);
- оконные проемы как в домах старого фонда, так и новостройках не имеют идеальную геометрию – выполняют несколько замеров одного параметра, выбирают наименьшее значение.
Связанные вопросы и ответы:
Вопрос 1: Для чего нужны зазоры при установке окон
Зазоры при установке окон необходимы для обеспечения правильного монтажа и дальнейшей эксплуатации окна. Они позволяют компенсировать тепловое расширение материалов, из которых изготовлено окно и стены здания, предотвращая их деформацию. Кроме того, зазоры обеспечивают необходимую герметичность и предотвращают проникновение влаги и холодного воздуха. Наличие зазоров также способствует правильной работе открывающихся элементов окна, таких как створки и двери. Недостаток или избыток зазоров может привести к серьезным проблемам, таким как протечки, сквозняки или даже разрушение конструкции.
Вопрос 2: Какой оптимальный размер зазоров при установке окон
Оптимальный размер зазоров при установке окон зависит от нескольких факторов, включая материал, из которого изготовлено окно, и условия эксплуатации. Обычно зазоры между окном и стеной не должны превышать 1-2 см. Более зазоры могут привести к проникновению холодного воздуха и влаги, а слишком маленькие зазоры могут ограничить нормальное функционирование окна. Перед установкой важно проконсультироваться с специалистом, который сможет определить оптимальный размер зазоров для конкретного случая. Также необходимо учитывать рекомендации производителя окон.
Вопрос 3: Как правильно устанавливать зазоры при монтаже окон
Установка зазоров при монтаже окон требует внимательного подхода и соблюдения технологии. Сначала необходимо подготовить откосы, очистив их от мусора и старых материалов. Затем, с помощью уровня, проверяется горизонтальность и вертикальность окна. После этого устанавливаются регулируемые упоры или клинья, которые позволяют точно подобрать размер зазоров. Далее, между окном и стеной укладывается уплотнительный материал, такой как резиновая прокладка или монтажная пена. Последний шаг – фиксация окна в правильном положении с помощью анкеров или других крепежных элементов.
Вопрос 4: Какой материал лучше использовать для уплотнения зазоров
Для уплотнения зазоров при установке окон лучше всего использовать материалы, которые обладают высокой эластичностью и устойчивостью к влаге. Наиболее популярные варианты включают резиновые прокладки, монтажную пену и герметики на основе силикона. Резиновые прокладки легко монтировать и обеспечивают хорошую герметичность, но могут потерять свои свойства при воздействии влаги. Монтажная пена прочна и долговечна, но требует осторожности при нанесении, чтобы избежать излишков. Герметики на основе силикона идеально подходят для наружных зазоров, так как они устойчивы к влаге и морозу.
Вопрос 5: Как проверить зазоры после установки окон
Проверка зазоров после установки окон является важным этапом, который позволяет убедиться в правильности монтажа. Для этого можно использовать несколько методов. Первый метод – визуальный осмотр: зазоры должны быть равномерными по всему периметру окна. Второй метод – проверка на герметичность: можно использовать свечу или лист бумаги, поднесенные к зазорам, чтобы убедиться, что воздух не проходит. Третий метод – измерение зазоров с помощью линейки или щупа, чтобы убедиться, что они соответствуют рекомендуемым размерам. Также можно пригласить специалиста для более точной проверки.
Вопрос 6: Какие последствия могут возникнуть при неправильных зазорах
Неправильные зазоры при установке окон могут привести к серьезным последствиям. Слишком большие зазоры могут стать причиной проникновения холодного воздуха и влаги, что может привести к образованию конденсата и плесени. Это не только испортит внешний вид помещения, но и может нанести вред здоровью жильцов. Слишком маленькие зазоры могут ограничить нормальное функционирование окна, что приведет к трудностям при открывании и закрывании створок. Кроме того, неправильные зазоры могут вызвать деформацию окна или стены, что потребует дорогостоящего ремонта.
Вопрос 7: Как устранить зазоры, если они образуются со временем
Если зазоры образуются со временем, их устранение требует внимательного подхода. Сначала необходимо определить причину появления зазоров: это может быть оседание здания, деформация окна или износ уплотнительного материала. Если зазоры небольшие, можно использовать герметики или уплотнительные ленты для их устранения. В более серьезных случаях может потребоваться демонтаж окна и повторная установка с учетом всех необходимых зазоров. Также важно регулярно осматривать окна и своевременно устранять небольшие дефекты, чтобы избежать более серьезных проблем.
Вопрос 8: Как измерить зазоры при установке окон
Измерение зазоров при установке окон – это важный этап, который требует точности и внимания. Для этого можно использовать линейку или щуп – специальный инструмент, который позволяет точно определить размер зазоров. Измерения должны проводиться по всему периметру окна, чтобы убедиться, что зазоры равномерны. Также важно учитывать рекомендации производителя и советы специалистов. Если вы не уверены в своих силах, лучше пригласить профессионала, который сможет точно измерить зазоры и убедиться в правильности установки окна.
Почему зазоры важны при установке окон
Вопрос о зазорах для монтажного шва, очень часто фигурирует в интернет. Очень многие сами ставят окна, снимают замеры и при заказе окна на заводе, нужно учесть зазор на монтажный шов. В принципе задача не сложная. Конечно, нужно понимать, что сам проем не будет прямоугольным, плюс вопрос размещения окна относительно элементов отделки фасада или внутренней отделки откосов. Условно, мы эти особенности не буем учитывать и примем, что проем у нас идеально ровный. Сколько делать зазор на шов ? Обратимся к нормативу ГОСТ30971-2012. Тут есть специальная таблица №2 "Размеры монтажного зазора". Указан зазор 20-60мм для белых изделий, габаритами менее 2000мм.
Вот тут самый главный момент. Почему зазор определен 20-60мм? Сколько делать 30, 40, 25мм ? Многие источники (мастера эксперты) рекомендуют зазор 25-35мм, но от чего реально зависит этот зазор? Как рассчитать размер зазора ? Зачем вообще зазор, если можно поставить без зазора (в некоторых странах окна ставят на силиконовый герметик с зазором 2-3мм). Все очень просто. Каждая оконная рама имеет свою конфигурацию и свои значения рабочих деформаций при изменении температуры. Пластиковая рама очень не любит перепады температур и меняет свои размеры зима /лето (алюминиевые или деревянные окна на температуру реагируют значительно меньше). Основная задача монтажного зазора компенсировать температурные деформации конструкции (ветровые нагрузки мы условно не считаем), в противном случае, рама расширяясь упрется в проем, что может привести к разрушению стеклопакетов и самой рамы. Соответственно шов должен быть деформационным, менять свои размеры и сохранять свои свойства по герметичности и тепловой защите.
Что дальше ? Определяем расчетные деформации рамы. Для этого нам нужны ее габариты и значения усадки. К примеру мы определили. что это 30мм на 2 стороны. Учитываем время года когда будет установлена конструкция и получаем конкретное значение монтажного зазора. (деформации ПВХ рамы можно упрощенно считать 1мм на 10 градусов перепада на каждый метр рамы. Если у нас зимой -30, летом +30, 60 градусов перепада т.е 6мм на метр длинны конструкции) ВАЖНО. Конкретное значение деформации конструкции зависит от марки профиля и используемого стального армирования, уточняйте это значение у поставщика окон. Из опыта это может быть цифра от 0,7 -1,4мм/метр на каждый 10 градусов)
Когда мы получили конкретное значение, учитываем рекомендации ГОСТ и фиксируем конкретное значение зазоров.
Кстати, учитывая предыдущие расчеты мы можем подобрать монтажные материалы и необходимую схему монтажа. Тут 2 этапа.
1 этап. Подбираем соответствующие материалы имеющие параметры по расчетной деформации. Это к вопросу какую пену брать и какие герметики использовать.Характеристики материалов должны покрыть возможные деформации монтажного шва.
2 этап. После чего подбираем тип крепежа, исходя из конфигурации и материала стен. Крепеж тоже должен учитывать деформации конструкции и жесткое крепление может привести к изгибу рамы и продуванию. Тут нужно отметить, что монтаж на пластины дает нагрузку на срез самореза, а прямой крепеж дает нагрузку на срез и изгиб ( не исключено расшатывание при импульсных нагрузках) и вырывание из стены при зимней усадке рамы. (тут тип крепежа нагель или рамный анкер играет очень большую роль). Рамный анкер это сквозной крепеж но позволяющий двигаться раме, а вот нагель (который режет резьбу в стальном усилителе внутри рамы) жестко фиксирует раму, что может приводить к изгибанию профиля при нагрузках. (сразу скажу, что при подборе крепежа необходимо учитывать и значения ветровых нагрузок, особенно это важно для конструкций более 2,5 м.кв с установкой на высотах более 15 метров и местах с высокими ветровыми нагрузками).
Учитывая данные рекомендации вы сможете определить значение монтажного зазора и правильно посчитать размеры конструкций которые вы будете заказывать на заводе.
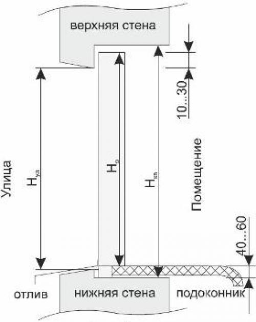
Какие оптимальные размеры зазоров рекомендуется при установке окон
Замер проема без четверти.
Сначала измеряем ширину проема (Wпр), т.е. расстояние между боковыми стенами. Для вычисления размера окна (Wо) необходимо из полученного значения Wпр вычесть зазоры под монтажный шов (Wм). Как правило, под монтажную пену оставляют 20-30 мм с каждой стороны.
Wо = Wпр – 2*Wм
Рис. 3: Расчет ширины окна для бесчетвертного проема.
![]() | Замер ширины оконного проема без четвертиЗатем приступаем к измерению высоты проема (Нпр), т.е. расстояния между нижней и верхней стеной. Из полученной высоты вычитаем зазоры 20-30 мм сверху под монтажный шов (Нмв) и 40 мм снизу для установки подоконника (Нмн). В результате получаем высоту окна (Но): Но = Нпр – Нмв – Нмн |
| Рис. 4: Расчет высоты окна для бесчетвертного проема. |
Замер проема с четвертью.
В отличие от безчетвертного варианта, в данном случае измерения производятся и со стороны улицы, и в помещении.
Измеряем проем со стороны улицы (Wул) и проемную ширину в квартире (Wкв). Ширина пластикового окна (Wо) должна быть на 20-50 мм больше Wул и на 40-60 мм меньше Wкв.
Рис. 5: Расчет ширины окна для четвертного проема.
Высоту проема также измеряем со стороны улицы (Нул) и в помещении (Нкв).
![]() | ![]() |
Как правильно измерять зазоры между окном и стеной
УДК 621.512
АНАЛИЗ ДОПУСТИМЫХ РАДИАЛЬНЫХ ЗАЗОРОВ В ЦИЛИНДРОПОРШНЕВОМ УПЛОТНЕНИИ
А. Г. Никифоров1, Л. А. Муслова2
'Смоленская государственная сельскохозяйственная академия, Россия, 214000, г. Смоленск, Большая Советская ул., 10/2 2Санкт-Петербургский университет МВД, Россия, 198206, г. Санкт-Петербург, ул. Лётчика Пилютова, 1
В данной научно-исследовательской работе рассмотрено влияние радиального зазора на коэффициент герметичности рабочей камеры при различном диаметре цилиндров. Приведена основная расчетная схема с принятыми допущениями. В результате проведенного исследования даны рекомендации по выбору допустимого радиального зазора при проектировании и расчете поршневого компрессора.
Ключевые слова: поршневой компрессор, утечки, радиальный зазор, коэффициент подачи, ци-линдропоршневые уплотнения.
Введение
Рабочая камера поршневого компрессора имеет неплотности — зазоры в закрытых клапанах и цилиндропоршневых уплотнениях. Разность давлений в рабочей камере и за указанными элементами приводит к массообмену, что значительно влияет на эффективность рабочего процесса. При этом исследователи стремятся повысить герметичность рабочей камеры. Путями повышения герметичности цилиндропоршневого узла может стать подбор соответствующих материалов и увеличение количества уплотняющих элементов. Однако при этом должен быть соблюдён баланс герметичности и затрат на её обеспечение. В клапанах путем повышения герметичности может быть подготовка поверхностей прилегания, то есть обеспечение минимальной шероховатости. В последнее время идут по пути замены запорного металлического на неметаллический, установкой резиновых вставок на седло и т.п. Поэтому актуален вопрос об обеспечении требуемого зазора, который был бы достаточным для получения требуемых интегральных характеристик компрессора.
В поршневых компрессорах многоступенчатого сжатия перетечки рабочей среды осуществляются между соседними рабочими ступенями. В цилиндрах двойного действия существуют перетечки газа между отдельными полостями одной ступени, разделенными уплотнением дискового поршня, также возможны утечки рабочей среды в атмосферу через уплотнения штока.
При использовании тронкового поршня газ перетекает из рабочей камеры в атмосферу. Поршневые и штоковые уплотнения должны быть изготовлены таким образом, чтобы обеспечить достаточную герметичность рабочей камеры, но при этом сохранить малые затраты мощности на преодоление сил трения возвратно-поступательных элементов, а также обеспечить высокую долговечность и надежность работы.
Утечки, как и перетечки, значительно влияют на эффективность рабочего процесса, однако влия-
ют по-разному. Утечки приводят к снижению коэффициента подачи, то есть к уменьшению производительности. Также наличие газа, выталкиваемого через неплотности, приводит к снижению коэффициента полезного действия. Перетечки из полости нагнетания в полость всасывания приводят к повышению температуры сжимаемого газа в последней, что в итоге приводит к ухудшению интегральных характеристик поршневого компрессора.
Допустимые утечки через цилиндропоршневые уплотнения лежат в диапазоне 0,5 — 3 % от всего объема всасываемого газа . В уплотнении штока, по данным исследования , потери через сальники с чугунными разрезными кольцами при разности давлении 10 МПа не превышают 0,1 % производительности компрессора и ими можно пренебречь.
При исследовании массовых утечек через зазоры самосмазывающегося цилиндропоршневого уплотнения в расчет принимается условная (эквивалентная) площадь, которая включает в себя площадь сечения на контактных поверхностях колец с цилиндром и канавкой. В работе было предложено разделить массовые утечки через цилиндро-поршневое уплотнение на три потока: на поверхности контакта кольца и цилиндра, в замке кольца, по поверхности контакта кольца с торцом поршневой канавки (рис. 1).
Суммарный газовый расход газа С. через 1-е уплотнительное кольцо равен:
С = С + С + С
(1)
где С. — массовый расход газа через зазор в стыке кольца, кг/с; С , С. — массовые расходы газа через зазоры между контактирующими поверхностями кольца, цилиндра и канавки поршня соответственно, кг/с.
Как зазоры влияют на герметичность и энергопотребление
С целью устранения недостатков льна как уплотнителя, его пропитывают различными составами, к которым относят пасты. Нормативы СНиП предусматривают применение смеси на основе густотертого свинцового сурика или белил на натуральной олифе. Это вещество в готовом виде не продается, поэтому его готовят самостоятельно: в определенное количество белил или сурика добавляют немного олифы и тщательно перемешивают до консистенции жирной сметаны. Такая паста должна быть достаточно плотной, чтобы при намазывании не растекалась.Сфера использования свинцового сурика определена его химическими свойствами, которые при взаимодействии с железом окисляют его до нерастворимого в воде оксида FeO. Также это вещество не пропускает кислород и процесс уплотнения аналогичен методу воронения стали. В бытовой практике при таком герметизации применяется состав из льна и масляной краски. При уплотнении черных металлов данный способ не защищает их от процессов коррозии, но в качестве гидроизоляции достаточно надежен.Главные достоинства льна, как уплотнительного материала:- Применение для уплотнения соединений разного вида.
- Набухание волокон льна в процессе намокания, что способствует его увеличению в объеме и лучшей герметизации соединений. Даже при небольшой течи после проведения работ по уплотнению резьбы, просачивание воды быстро прекращается.
- Устойчивость волокон льна к механическим воздействиям, что позволяет корректировать действия в процессе проведения работ в пределах полного оборота при вращении резьбы с сохранением абсолютной герметичности.
- При взаимодействии с воздухом в условиях повышенной влажности уплотнительные материалы для сантехники из льна склонны к гниению. Чтобы предотвратить такие процессы необходимо применять специальные материалы (масляная краска, литол и др.), которые впоследствии усложняют разборку сантехнических элементов, так как повышают склеиваемость соединений.
- Льняные уплотнительные материалы требовательны к соблюдению технологии применения, поэтому их использование должно осуществляться опытными мастерами высокой квалификации.
- Несмотря на отмеченные недочеты, прядь из льна остается наиболее популярным уплотнительным элементом для монтажа сантехники. Это обусловлено постоянным наличием и выгодной ценой такого материала.
- При монтаже сантехники уплотнительную льняную прядь скатывают в нить, которую наматывают на резьбовую спираль. Чтобы нитка не выкрутилась по виткам, необходимо использовать смазывающие материалы, способствующие ее более плотному прилеганию. Это увеличит силу трения между льняным уплотнительным материалом и резьбовым соединением (к примеру, на трубе). Эту методику используют квалифицированные специалисты по монтажу сантехники. Для ее эффективности важно уметь подобрать правильную смазку.
Какие материалы лучше использовать для уплотнения зазоров
Тепловые зазоры. Мало кто обращает внимание на эту, казалось бы, мелочь. однако в двигателе мелочей нет. В этой статье я расскажу о влиянии тепловых зазоров на работу и ресурс двигателя.
В самом конце есть

Причины, по которым тепловые зазоры выходят из допусков давно известны.
Для впускных клапанов это износ металла кулачка и толкателя. Износ происходит очень медленно.
С выпускными клапанами ситуация интереснее. Так как рабочую фаску клапана и его седло постоянно омывают раскаленные выхлопные газы - происходит выгорание этих плоскостей, и весь клапан приподнимается вверх в направлении распределительного вала, тем самым уменьшая тепловой зазор. Процесс лавинообразный и, часто, машины приезжают с полностью отсутствующим зазором на выпускных клапанах. В этой ситуации чаще всего регулировка уже не спасает и требуется восстановление рабочих плоскостей клапана и седла а то и их замена.
Кроме механического разрушения, которое является крайним случаем, изменение тепловых зазоров влияет на наполнение цилиндров и фазы открытия клапанов.
Рассмотрим этот момент более подробно.
На рисунке ниже показаны фазы при нормальном зазоре. Именно от этой картинки мы и будем отталкиваться далее.

Как можно видеть - при каком-то зазоре X, который мы принимаем за нормальный, клапан начнет открываться на угле поворота распредвала 113 градусов. Таким образом фаза открытия этого клапана будет равняться 134 градуса. Расчет очень простой - вычитаем из полного оборота распредвала (360 градусов) фазу закрытого состояния клапана (113*2 =226 градусов) и получаем фазу открытого состояния в 134 градуса.

Теперь рассмотрим вариант с увеличенным зазором. Такая ситуация типична для впускных клапанов. За время межсервисного интервала зазор, как правило, увеличивается на половину номинального значения.


Как видим - фаза сместилась в сторону запаздывания и теперь клапан начинает открываться уже не на 113 градусе, а на 119ом. Таким образом фаза открытия клапана будет составлять уже не заводские 134 градуса, а все лишь 122, то есть уменьшится на 10 процентов.
То есть увеличенный тепловой зазор впускного клапана уменьшил его фазу открытия на 10%, соответственно, ухудшилось наполнение цилиндра свежим зарядом топливовоздушной смеси. Логичными последствиями такой неисправности будут пониженная тяга двигателя и, соответственно, повышенный расход топлива.
Теперь рассмотрим "зажатый" клапан. Эта неисправность типична для группы выпускных клапанов.

Как я уже говорил - клапан, вследствие износа рабочей фаски и износа седла, приближается к кулачку распределительного вала, уменьшая тем самым тепловой зазор.

Клапан начинает открываться уже на 107-ом градусе, а фаза открытого состояния составит целых 146 градусов. Напомню, что при нормальном зазоре фаза открытого состояния должна составлять 134 градуса.
Открываясь раньше клапан получает огромную термическую нагрузку, от выхлопных газов. Из-за того, что клапан меньшее время находится прижатым к седлу, ухудшается теплообмен клапана с ГБЦ. То есть он начинает еще больше перегреваться. Процесс продолжается с нарастающей скоростью и, в конце концов, приводит к прогару клапана

Вот так примерно обстоят дела с этой, казалось бы, мелочью. Хочется отметить что речь идет об изменении зазора в пределах 0,1 мм. Одна "десятка" приводит к вот таким последствиям.
Какие ошибки при установке зазоров могут привести к проблемам

До начала массовой установки пластиковых окон деревянные рамы приходилось готовить к каждой зиме - красить, утеплять, затыкать щели для предотвращения сквозняков. Современные стеклопакеты в этом не нуждаются. Однако и у них осталось слабое место, порой требующее повышенного внимания. Сами оконные профили и места их стыков со стеклами собираются герметично и остаются таковыми много лет. Проблемы могут возникать в месте соединения рамы и стены - щели приводят к появлению все тех же сквозняков и требуют удаления.

Пространство между ПВХ рамой и проемом заполняется монтажной пеной. Эта процедура не всегда выполняется качественно, обычно по вине монтажников, но иногда и по объективным причинам, например, из-за сложности конструкции. Образовавшиеся щели и пустоты становятся источником сквозняков, в них скапливается влага, появляется плесень, а в некоторых случаях начинают жить насекомые. При обнаружении таких дефектов их нужно сразу же устранять.
На подготовительном этапе щели очищаются от попавшего мусора и загрязнений. Часть потерявшей свои качества пены из них тоже удаляется, чтобы новый заполняющий состав получил лучшее сцепление со старым. Его структура должна быть монолитной.
Чаще всего сквозняк проникает под подоконником. В таком случае находящийся снаружи отлив снимается, пространство очищается от остатков пены и снова более качественно заполняется тем же монтажным составом. После высыхания пены ее излишки срезаются.
При кажущейся простоте описанных работ к ним следует тщательно подготовиться. В первую очередь, надо разобраться в свойствах пены и научиться работать с этим материалом. При монтаже пластиковых окон используются только профессиональные заполняющие составы, и их нанесение осуществляется строительным пистолетом.
Все знают, что пена после выдавливания из тубы расширяется, но далеко не каждый представляет насколько. Чтобы не ошибиться в этом моменте, предварительно надо сделать тест. Для него немного пены наносят на лист бумаги и смотрят, как она себя ведет при отвердевании.

Монтажная пена удерживает элементы оконной конструкции, уплотняет и утепляет ее. Однако она не является герметиком, так как способна пропускать влагу, особенно в местах среза. По этой причине после обрезания поврежденные места обрабатываются краской. Так заполняющий состав защищается от проникновения влаги и разрушительно действующих на него солнечных лучей.
Снаружи в местах примыкания рамы к стене дома после монтажа нередко остаются видимые щели, не закрытые откосами. Их тоже надо ликвидировать, чтобы влага и пыль не проникали внутрь и не портили пенный уплотнитель. Эту работу стоит провести в превентивном порядке, даже если никаких сквозняков не наблюдается.
Щели с уличной стороны замазываются привычным акриловым герметиком (выбирается его морозостойкий вариант). Можно пользоваться составами на основе битума, но они имеют черный цвет, в то время как для работы с оконными проемами предпочтительнее все же белый.
Герметик тоже наносится пистолетом и после заполнения промежутков разравнивается шпателем.

Если не закрытые откосами щели слишком большие, то сначала их следует заполнить все той же пеной, предварительно удалив старый уплотнитель. Герметик в таком случае наносится уже после высыхания, обрезки и обработки затвердевшего пенного состава.
При соблюдении описанных правил защитный слой отлично справится со своими задачами. Однако со временем он разрушается, и процедуру придется повторять. Чтобы избавиться от этой необходимости и создать более надежную защиту, стоит установить откосы по всему наружному периметру окна. При наличии определенного опыта сделать это можно, в том числе, и своими силами.
Как устранять большие зазоры между окном и стеной
- Зазор в кладке теряет смысл, если не предусмотрены входы и выходы из него. В нижней части стены, сразу над цоколем, требуется встроить в лицевую кладку вентиляционные решётки, суммарная площадь которых должна быть не менее 1/5 площади горизонтального сечения зазора. Обычно устанавливают решётки 10×20 см с шагом 2–3 м (увы, решётки не всегда украшают фасад и требуют периодической замены). В верхней части зазор не закладывают и не заполняют раствором, а закрывают полимерной кладочной сеткой, ещё лучше – перфорированными панелями из оцинкованной стали с полимерным покрытием.
- Вентиляционный зазор должен иметь ширину не менее 30 мм. Его не следует путать с технологическим (около 10 мм), который оставляют для выравнивания кирпичной облицовки и в процессе кладки, как правило, заполняют раствором.
- В вентилируемой прослойке нет никакой необходимости, если стены затянуты изнутри пароизоляционной плёнкой с последующей отделкой ГКЛ или иным материалом. В данном случае для комфортного микроклимата в здании требуется наличие принудительной приточно-вытяжной вентиляции .


