Как превратить небольшую двушку-хрущевку в уютный дом
- Как превратить небольшую двушку-хрущевку в уютный дом
- Связанные вопросы и ответы
- Какие ключевые особенности хрущевки влияют на дизайн интерьера
- Как можно максимально эффективно использовать пространство в небольшой двушке
- Какие цветовые схемы помогут визуально увеличить пространство
- Какие стили мебели лучше всего подходят для интерьеров хрущевки
- Как использовать освещение, чтобы сделать пространство больше
Как превратить небольшую двушку-хрущевку в уютный дом
Нельзя начать ремонт двухкомнатной квартиры хрущевки без понимания ее особенностей.
Кухня с небольшим метражом (5–6 метров).
Низкие потолки.
Одна из комнат – проходная.
Санузел и ванна совмещенные, при этом у комнаты небольшой метраж, который не позволяет смонтировать стандартную ванную.
Если отдельная кладовка.
Если квартира расположена не на первом этаже – есть балкон или лоджия.
Еще две грустные особенности «хрущевок» – очень малый метраж прихожей и плохая шумоизоляция. Впрочем, практически все недостатки квартиры можно нивелировать современным ремонтом.

Скажем еще пару слов об особенностях планировок в домах разных серий, а потом дадим рекомендации по улучшению ситуации.
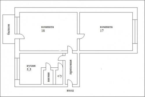
Метражи и особенности планировки двухкомнатных хрущевок
Встречаются разные варианты планировок:
«Книжки». Квартиры этой планировки имеют площадь в 42–43 м2. Их главная особенность – кухня, спальня и гостиная идут друг за другом. Проходная комната должна выполнять роль столовой. Если семья больше двух человек, придется в ней же спать, что очень неудобно. Жирный минус такой планировки – проходная комната останется проходной, как бы и что вы ни запланировали. Самый распространенный вариант изменения в такой комнате – снос перегородок между кухней и столовой (комната превращается в уверенную студию).

«Трамваи» (они же «Павровозики») – квартиры с метражом в 47 метров. В такой планировке две спальные комнаты располагаются смежно. При этом одна из них угловая, а вторая – проходная. Чаще всего при такой планировке «отрезается» часть проходной комнаты, достраивается стена и создается своеобразный коридор (в котором дополнительно размещают системы хранения вещей).

«Бабочки» (они же «Распашонки») – квартиры с метражом в 46 м2. Сразу за прихожей размещается кухня и санузел, комнаты располагаются по бокам. Достаточно удобный вариант, главный минус – санузел находится практически на кухне.

Неважно, какая именно планировка у вашей квартиры – с помощью продуманного ремонта ее можно превратить в дом вашей мечты.
Комплексный ремонт квартир под ключ
Всё включено
В стоимость ремонта входит всё: работы, материалы, документы.
Без вашего участия
После согласования проекта мы беспокоим хозяев только при сдаче ремонта.
Цена известна заранее
Стоимость ремонта фиксируется в договоре.
Фиксированный срок ремонта
Ремонт квартиры под ключ за 3,5 месяца. Срок закреплен в договоре.
Связанные вопросы и ответы:
Вопрос 1: Какие основные принципы дизайна интерьера подходят для двухкомнатной квартиры в хрущевке
Основные принципы дизайна интерьера для двухкомнатной квартиры в хрущевке включают максимальное использование доступного пространства, минимализм и функциональность. Важно выбирать мебель компактных размеров и с встроенным хранением, чтобы не загромождать помещение. Также рекомендуется использовать светлые цвета для стен и потолков, чтобы визуально увеличить пространство. Простые геометрические формы и отсутствие излишних декоративных элементов помогут создать современный и уютный интерьер. Кроме того, важно учитывать естественное освещение и использовать зеркала для его усиления.
Вопрос 2: Как зонировать пространство в двухкомнатной квартире, чтобы создать уютные зоны
Зонирование пространства в двухкомнатной квартире можно осуществить с помощью различных техник. Например, в гостиной можно выделить зону отдыха с диваном и телевизором, а также зону для приема гостей с обеденным столом. В спальне можно обустроить зону для сна и зону для хранения одежды. Использование штор, перегородок или полок может помочь разделить пространство на функциональные зоны. Также важно учитывать освещение: для каждой зоны можно использовать разные источники света, чтобы создать уютную атмосферу.
Вопрос 3: Какие цвета лучше всего использовать для стен в небольшой квартире
Для стен в небольшой квартире лучше всего использовать светлые и нейтральные цвета, такие как белый, серый, бежевый или мягкий синий. Эти цвета помогают визуально увеличить пространство и сделать комнату светлее. Избегайте темных и насыщенных цветов, так как они могут сделать комнату еще меньше. Также можно использовать пастельные оттенки, которые добавят нежности и уюта в интерьер. Если вы хотите добавить яркости, можно использовать акцентные стены или декоративные элементы в более насыщенных тонах.
Вопрос 4: Как выбрать мебель для небольшой квартиры
Выбор мебели для небольшой квартиры требует тщательного подхода. Важно отдавать предпочтение компактным и многофункциональным моделям, таким как диваны с встроенным хранением, обеденные столы с расширением или-transformers, а также шкафы-купе. Мебель должна быть пропорциональна размеру комнаты и не загромождать пространство. Также стоит обратить внимание на материалы: легкие и прозрачные материалы, такие как стекло или металл, помогут визуально облегчить интерьер. Не забывайте о комфорте и функциональности – мебель должна быть удобной и соответствовать вашему образу жизни.
Вопрос 5: Как использовать естественное освещение в хрущевке
В хрущевках часто маленькие окна, поэтому важно максимально эффективно использовать естественное освещение. Для этого можно использовать светлые цвета для стен и потолков, а также минимизировать количество тяжелых штор. Легкие тюли или жалюзи помогут пропустить больше света. Также можно добавить зеркала, которые отражают свет и создают иллюзию большего пространства. Если естественного света недостаточно, можно использовать дополнительные источники освещения, такие как напольные лампы или встроенные светильники.
Вопрос 6: Как обустроить кухню в хрущевке, чтобы она была функциональной и современной
Обустройство кухни в хрущевке требует внимания к деталям и рациональному использованию пространства. Можно использовать компактную кухонную мебель с встроенным хранением, такую как шкафы-купе или выдвижные ящики. Важно выбирать технику, соответствующую размеру кухни, и использовать каждый сантиметр рабочего пространства. Также можно добавить современные элементы, такие как кварцевый столешница или стеклянная плитка, чтобы создать современный вид. Не забывайте о хорошем освещении – использовать встроенные светильники или подвесные лампы, чтобы сделать кухню более уютной.
Вопрос 7: Как организовать хранение вещей в небольшой квартире
Организация хранения вещей в небольшой квартире требует творческого подхода. Можно использовать встроенные шкафы и полки, а также мебель с встроенным хранением, такую как диваны или обеденные столы с ящиками. Также можно использовать вертикальное пространство, устанавливая высокие полки или крючки на стенах. Важно регулярно сортировать вещи и избавляться от ненужного, чтобы избежать загромождения. Кроме того, можно использовать контейнеры и корзины для хранения мелочей, что поможет сохранить порядок и сделать интерьер более аккуратным.
Какие ключевые особенности хрущевки влияют на дизайн интерьера
Прежде чем переходить к советам по ремонту в хрущевках , необходимо озвучить особенности строений, которые подпадают под данное название. Ведь общего у них собственно только маленькие габариты, часто объединенный санузел и невысокие потолки, а вот в плане конструкции различия довольно существенные, что следует учитывать при планировании ремонта, как капитального, так и легкого декоративного. Объединяет их также период строительства – 60-80 года прошлого века. В то время была разработана и внедрена в массовое строительство целая группа проектов. Среди них:
- Панельные дома из железобетонных панелей с несущими продольными внешними стенами;
- Дома с внешними кирпичными стенами, внутренним каркасом из ж/б колон;
- Панельные дома из железобетона с несущими продольными и поперечными стенами.

Основной конструктивной особенностью является наличие внутри конструкции несущих колонн и ригелей, на которые опираются плиты перекрытия. Во всех типах домов перекрытия выполнялись с использованием 220 мм железобетонных плит с пустотами.
Внутренние перегородки могут существенно различаться по материалу. Так, в панельных домах чаще всего использовались тонкие, всего в 40 мм толщиной, стены, выполненные из пенобетона и гипсобетона. Другим вариантом исполнения были деревянные перегородки, которые обшивались дранкой и оштукатуривались.
Компоновка квартир предполагает наличие проходных комнат малого размера, объединенный санузел и малогабаритную кухню, которая в лучшем случае могла иметь площадь до 7 м2.
Вентиляция организована централизованно с выводом воздуховодов в кухню и санузел. В панельных вариантах на оконных проемах отсутствуют подоконники.
Теплоизоляция внешних стен в большинстве случаев недостаточная. Особенно это заметно для центральных и северных районов страны.
Как можно максимально эффективно использовать пространство в небольшой двушке
Как с помощью цвета визуально увеличить пространство: 5 полезных советовГрамотно подобранная цветовая схема для каждой комнаты поможет не только украсить интерьер, но и зрительно расширить пространство или скорректировать его неудачные пропорции. Эти 5 полезных советов расскажут, как с помощью цвета изменить ощущение пространства и сделать его свободнее.
Оттенки белого цвета для стен и потолка хорошо справятся с задачей визуального расширения пространства. Белый цвет размывает границы и наполняет помещение светом и воздухом. Однако не все готовы покрасить стены в чисто белый цвет из-за страха сделать комнату похожей на стерильную больничную палату. Избежать такого эффекта помогут два простых решения.
Первое – сделать одну из стен акцентной. Какой цвет для нее выбрать – дело вкуса, белый сочетается с любым цветом, ошибиться здесь нельзя.
Если выбрать темный насыщенный цвет для акцентной стены в сочетании с остальными белыми стенами, это поможет скорректировать пропорции помещения, к примеру, сделать слишком длинную и узкую комнату более квадратной.
Второе решение – колеровать белый ненавязчивым пастельным тоном, чтобы получить легкий, едва заметный оттенок. Этот способ избавит комнату от ощущения стерильности, но при этом оптически сделает ее просторнее.
2. Легкие оттенки голубого
Визуально сделать маленькую комнату просторнее помогут холодные оттенки голубого – они раздвигают пространство, делая его свободнее. Теплые оттенки – особенно это касается тонов с присутствием теплых оттенков розового и красного – имеют обратный эффект, сближая стены и зрительно уменьшая размеры помещения.
3. Нежный желтый
Еще один цветовой прием для оптического расширения пространства – использовать для стен легкий светло-желтый оттенок. Более насыщенные оттенки желтого с этой задачей не справятся.
4. Цвет стен в маленькой квартире
Прием, который поможет сделать просторнее маленькую квартиру – схожая цветовая схема в оформлении стен, пола и потолка во всех помещениях. Если для пола и потолка здесь лучше выбрать идентичные цвета – например, цвет плитки в ванной повторяет цвет коврового покрытия в гостиной – то для стен можно оставить небольшую разницу в оттенках. Так вся квартира будет казаться более просторной, но не станет при этом слишком единообразной.
5. Полосы на полу и стенах
Чередование цветов – полосы на полу и стенах – поможет исправить пропорции комнаты. Полосатый ковер с продольными полосами контрастных цветов визуально удлинит коридор или комнату.
Горизонтальные широкие полосы на стене сделают ее шире, но при этом чуть ниже, а вертикальные полосы наоборот помогут зрительно приподнять низкий потолок.
Какие цветовые схемы помогут визуально увеличить пространство
Стиль нужно выдержать в интерьере каждой комнаты квартиры. Определенному дизайнерскому решению должно соответствовать все, начиная от мебели и заканчивая освещением. А простор для творчества открывается очень большой. Для «хрущевки» подойдет любой стиль, соответствующий характеру жильцов.
Классический
Натуральные материалы, качественный свет, изысканность интерьера – это то, что отличает классику. Такой универсальный дизайн годится не только для большого дома, но и для однокомнатной «хрущевки». Строгость и аристократизм стиля одинаково хорошо подчеркнут соответствующие рисунки на обоях и шторах, картины в крупных рамах, акценты в виде молдингов.
Модерн
Для него характерно наличие большого количества цветочных узоров на мебели и в отделке, плавные формы и неяркие оттенки. Если есть желание обставить «хрущевку» в таком стиле, лучше подобрать негромоздкую мебель. Это модульные гарнитуры с невысокими секциями, мягкая мебель с изящными ножками и плавными линиями подлокотников. Комплект для гостиной дополнит журнальный столик, выполненный из глянцевого пластика или стеклянный. В модерновый интерьер хорошо впишутся функциональные раздвижные двери и натяжной потолок в несколько уровней.
Скандинавский
Скандинавский стиль характеризуется легкостью, простотой и естественностью в оформлении интерьера. Это как раз то, что нужно для «хрущевки». Комнаты отделываются в пастельных тонах, над которыми главенствует белый цвет. Живости обстановке придают яркие акценты, как правило, в синих, красных и зеленых тонах.
Можно использовать в интерьере обшивку деревянными панелями, которые добавят уюта квартире. Для пола подойдет ламинат или паркет светлых оттенков. Хорошим дополнением будет мягкий однотонный ковер.
Лофт
Это стиль для экспериментаторов, стремящихся не отставать от моды. Он в большей степени подходит для просторных помещений, напоминающих производственные цеха. Нарочитой заброшенностью отдельных элементов интерьера подчеркивается домашний уют. Зачастую это противопоставление задается контрастом оформления пола и потолка.
В «хрущевке» стиль лофт вполне способен найти свое воплощение. Во многом это достигается объединением смежных помещений. Лоджию можно сделать частью гостиной, а ту, в свою очередь, объединить с кухней. Санузел при этом можно увеличить за счет коридора, ведущего в кухню. Такое объединенное пространство легче оформить в лофте, используя в интерьере светлые тона, темные придадут квартире мрачность.
Прованс
Этот стиль в «хрущевке» очень к месту. Его оценят любители естественных материалов, состаренной мебели, декоративных элементов ручной работы. Старина, простота и ненавязчивая роскошь придадут такой квартире очаровательный вид.
Если объединить комнату с балконом, можно сделать панорамное окно, соответствующее стилю прованс. Комната при этом получит дополнительные квадратные метры, в ней появится больше света и воздуха.
Для стиля прованс подойдет мягкая мебель белого, бежевого или светло-серого цвета. А если хочется более ярких красок – синяя, голубая или зеленая. Современная техника не должна бросаться в глаза, а быть встроена в мебель, успешно ею маскируясь.
Какие стили мебели лучше всего подходят для интерьеров хрущевки
Зачастую хозяева старых квартир оставляют после себя обширное наследие в виде старой мебели, десятков слоев напольных и настенных покрытий, вбитых в стены гвоздей и прочих неприятных неожиданностей. Для того чтобы в полной мере осознать масштаб предстоящих ремонтных работ и потенциал помещений, необходимо очистить квартиру от всего ненужного.
К демонтажу нужно подходить с умом, обращая внимание на особенности квартиры. Не забывайте, ваша цель – сделать бюджетный ремонт в хрущевке, а, значит, необходимо воспользоваться всеми возможностями этого вида жилья.
Сохраните встроенные конструкции
Отличительной особенностью хрущевок является наличие встроенных шкафов и антресолей. Оцените состояние данных конструкций. Возможно, вы стали счастливым обладателем квартиры с хорошо сохранившейся системой хранения. Если это не так – обдумайте возможность ее восстановления и приведения в достойный внешний вид. Подумайте, хватит ли вам места для размещения всех необходимых вещей, если убрать эти элементы.
Имейте в виду, что антресоли, расположенные над дверьми, не получится убрать без демонтажа всей дверной конструкции. Это может повлечь за собой большие расходы в виде монтажа новой дверной коробки и заказа двери. Кроме того, сохранение встроенных шкафов и антресолей избавит вас от надобности покупки громоздких и дорогостоящих шкафов.
Реставрируйте старые двери
В хрущевках дверные проемы имеют нестандартный размер – их ширина обычно не превышает 55 сантиметров. Это значит, что нельзя просто заменить старую дверь на дешевый аналог из ближайшего магазина. Существует и обратный случай, когда в гостиную или единственное жилое помещение однокомнатной квартиры ведет огромный дверной проем, рассчитанный на распашные двери. Замена таких дверей тоже требует немалых денежных вложений.
Словом, бюджетный ремонт квартиры в хрущевке не предполагает установки новых дверей. Однако, в случае с широким дверным проемом существуют варианты. Зачастую дверные полотна убирают и на их месте организуют арку, тем самым делая помещение визуально легче. Это достаточно бюджетный вариант решения данной задачи. Если необходимо сохранить комнату изолированной, то возможно уменьшение проема до стандартных размеров при помощи дополнительной конструкции. Однако самым бюджетным вариантом является реставрация старых дверей.
Для того чтобы обновить краску на дверях, необходимо убрать старый слой, отшлифовать и обезжирить поверхность. После этого нужно нанести грунтовку и краску, добиваясь ровного покрытия.
Проводите подготовительные работы самостоятельно
Приступив к отчистке стен многие владельцы хрущевок сталкиваются сразу с несколькими проблемами.
Во-первых, избавиться от старых обоев бывает сложно. Советский ремонт не предполагал зачистку стен перед обновлением покрытия. Отсюда множество слоев, среди которых могут быть газеты, фотообои и даже самоклеящаяся бумага. Вопрос о том, как сделать ремонт в хрущевке дешево, стоял уже тогда, поэтому для поклейки использовались самодельные составы, которые по прошествии времени крепко прилепили бумагу к стене.
Может показаться, что без профессиональных средств в таком случае не обойтись. Не спешите идти в строительный магазин. Для начала обильно смочите стены теплой водой. Вполне возможно, что этот способ избавит вас от лишних трат.
Во-вторых, под последним слоем могут обнаружиться неровные стены с множеством отверстий. На таких стенах будет сложно состыковать обои, а краска и вовсе не ляжет ровно. Придется задаться вопросом о выравнивании. Сделать стены идеальными можно двумя способами: обшить их древесно-стружечными плитами или создать ровную поверхность при помощи шпатлевки и штукатурки.

Как использовать освещение, чтобы сделать пространство больше
Минимализм, компактная мебель, отсутствие дверей, открытые оконные проемы и светлая отделка поверхностей – это основные приемы, с помощью которых можно преобразить любую квартиру-хрущевку без перепланировки. Достаточно грамотно выполнить косметический ремонт , чтобы сделать ее более комфортной для проживания.
В однокомнатной квартире дополнительно требуется правильное зонирование, особенно при проживании в ней семьи с детьми. В зависимости от исходной планировки и количества жильцов разделить пространство на зоны можно разными способами:
- выделением цветом и/или освещением;
- легкими стационарными перегородками;
- мобильными ширмами;
- предметами мебели.
Для малогабаритного жилья требуется рациональная мебель, позволяющая использовать пространство в высоту, а также экономящая площади за счет возможности трансформации. Кроме того, она должна быть многофункциональной и объединять в себе несколько предметов одновременно. Например, диван с подъемным механизмом, который будет использоваться как кровать, место для хранения и зона отдыха.
Шкафы и стеллажи под потолок, двухъярусные кровати, ниши с антресолями – все это позволит максимально использовать высоту помещения. Отличным решением может стать подиум с встроенной в него выдвижной кроватью. Такой вариант обеспечит наличие полноценного спального места, которое не будет занимать лишней площади. На самом подиуме можно обустроить любую зону по необходимости. Лучше всего сюда впишется игровая для детей, рабочее или учебное место. Дополнительные кровати можно сделать откидными или складывающимися.
При выборе перегородок для зонирования следует отдавать предпочтение стеклянным конструкциям или просматриваемым стеллажам. Они пропускают свет, не загромождают и при этом отделяют зоны. Если на ночь нужно закрыть какую-то из них от проникновения света, то подойдут складные ширмы, обычные шторы или жалюзи.